70 000 €2 435 m²

Torikatu 13, Peltoinlahti, Savitaipale

Velaton hinta
70 000 €
Tontin pinta-ala
2 435 m²
Kaupunginosa
Peltoinlahti
Kaupunki
Savitaipale

Savitaipaleen kuntakeskus, kahden paritalon huipputontti, loistava sijainti puhtaan Kuolimojärven läheisyydessä.

Loivassa rinteessä oleva rakennustontti sijaitsee vain 300 metrin etäisyydellä Saimaan vesistön puhtaasta Kuolimojärvestä. 2435 m2 tontilla rakennusoikeutta noin 420 m2. Rauhallinen sijainti elinvoimaisen maaseutukunnan ydinkeskustassa.

Savitaipale on tunnettu runsaista palveluistaan sekä lapsiperheille, nuorisolle että senioreille. Kunta on päättänyt pysyä jatkossakin itsenäisenä ja panostaa erityisesti asukkaidensa hyvinvointiin ja harrastusmahdollisuuksiin. Lähiaikoina ovat valmistuneet uusi Europaeus koulukeskus, Liikuntakeskukseen jää- ja curlinghallin lisäksi uusi jalkapallo- ja urheilukenttä sekä skeitti- ja frisbeepuisto. Parhaillaan on valmistumassa uusi hyvinvointiasema.

Savitaipale kuuluu Etelä-Karjalan maakuntaan ja sijaitsee Valtatie 13 varrella 40 km Lappeenrannasta länteen. Helsinkiin on matkaa 200 km. Lisätietoja löydät osoitteista: https://www.savitaipale.fi/ https://www.visitsavitaipale.fi/

Perustiedot

Sijainti
Torikatu 13, 54800 Savitaipale
Kaupunginosa
Peltoinlahti
Kohdenumero
15919425
Tonttityyppi
Muu tontti
Tontin pinta-ala
2 435 m²
Pinta-alojen lisätiedot
Sovi näyttöaika mille päivälle haluat p. 0400 769 358 Veijo Kylliäinen.
Kalastusoikeudet
Kalastusluvat paikalliselta kalastuskunnalta.
Palvelut
Terveyskeskus, Lääkäriasema, Päiväkoti, Ala-aste, Yläaste, Lukio ja Kirjasto lähellä.

Hinta

Velaton hinta
70 000 €
Myyntihinta
70 000 €
Neliöhinta
28,75 € / m²

Talon ja tontin tiedot

Rakennuksen tyyppi
Muu tontti
Harrastusmahdollisuudet
Kuntosali, jäähalli, uimahalli, uimaranta, urheilu- ja jäähalli sekä jalkapallo- urheilukenttä lähellä. Ulkoilu- ja pyöräreittejä useita lähietäisyydellä. Puhdas Kuolimojärvi ympäristöineen tarjoaa monipuolisia liikunta ja harrastusmahdollisuuksia.
Liikenneyhteydet
Bussipysäkki 100 m, taksiasema 100 m, maksuton pysäköinti, juna- ja lentoasema Lappeenrannassa.
Rakennusoikeus
420 m2
Lisätietoa rakennusoikeudesta
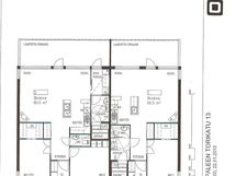
Kahdelle paritalolle (4 huoneistoa) on olemassa vaimiit piirrustukset ja rakennuslupa. Tontti soveltuu myös omakotitalolle.
Rasitteet ja oikeudet
Tontilla on valmis sähköliittymä ja valokuituliittymä, jotka siirtyvät uudelle omistajalle. Rasitteita ei ole.