72 500 €66 m²

Parviaisentie 88 a, Jurmu, TaivalkoskiLomarakennus + rantasauna + varasto/työhuone+kahden auton talli/varasto+kota+halkovaja+ halkoliiteri+lato+varasto

Myyntihinta
72 500 €
Asuinpinta-ala
66 m²
Kerros
1 / 1
Rakennusvuosi
1979
Rakennuksen tyyppi
Mökki tai huvila
Kaupunginosa
Jurmu
Kaupunki
Taivalkoski

Iijoki Taivalkoski hyväkuntoinen vapaa-ajanpaikka!

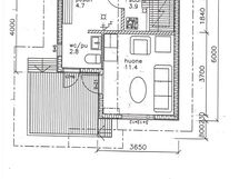
Talviasuttava päärakennus on 66 m2, joka vuonna 1996 peruskorjattu ja laajennettu. Siinä on olohuone, tupa, keittiö, makuuhuone ja pesuhuone/wc. Rakennuksen edessä on iso katettu terassi ja sisääntuloväylältä pääsee kylmään ulkovarastoon. Terassilta avautuu upea maisema Iijoelle.

Rannassa on erillinen mukavuuksilla varustettu 29,5 m2 v 2001 rakennettu rantasauna. Saunassa aina valmis sähkökiuas, suihku ja wc, , erillinen lämmin saunatupa ja sisääntulon yhteydessä lasitettu terassi n. 8 m2, kattolämmittimillä.

Kokonaisuutten kuuluu v.1999 rakennettu 30 m2 kahden auton autotalli varustettuna nosto-ovilla ja erillinen 12 m2 varasto. Lisäksi varasto/työhuone 13 m ja katettu terassi n. 8 m2, kota 10 m2, halkovaja n.12 m2, vanha halkoliiteri n. 20 m2, vanha lato n. 16 m2 ja laudasta tehty varasto n. 13 m2

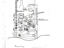
Nurmipintainen 4559 m2 tontti laskeutuu loivasti Iijoelle. Tontin halki johtaa hiekkapintainen tie Parviaisentieltä päärakennuksen eteen. Pihassa on istutuksia ja ulkovalaistus.

Kohteella on sähkö, Jurmun vesiosuuskunnan vesijohto ja jätevesistä huolehtii Iisi Kivi pienpuhdistamo. Lisäksi kohteella on valokuituliittymä.

Ostajan vastattavaksi tulevat kustannukset kaupanvahvistajan palkkio, varainsiirtovero 3 % kauppahinnasta ja lainhuutokustannus.

Kysy tarvitessasi lisätietoja ja sovi esittely Matti Huhtala puh. 0400 267179 tai matti.huhtala@rantamokki.fi

Katso kaikki kuvat ja liitteet

Perustiedot

Kaupunginosa
Jurmu
Kohdenumero
20928597
Kerros
1 / 1
Loma-asunnon tyyppi
Mökki tai huvila
Asuinpinta-ala
66 m²
Tontin pinta-ala
4 559 m²
Kokonaispinta-ala
66 m²
Pinta-alojen lisätiedot
tarkistusmitattu - päärakennus n. 66 m2 ja katettu terassi ja varasto
-rantasauna/pesuhuone/Wc/huone 29,5 m2, lasitettu terassi n. 8 m2
- varasto/työhuone 13 m2, katettu terassi n. 8 m2
-kahden auton talli+varasto n. 30,0 m2
-kota 10 m2
-halkovaja n. 12 m2
-halkoliiteri vanha n. 20 m2
-vanha lato n. 16 m2
-varasto n. 13 m2
Huoneiston kokoonpano
Lomarakennus + rantasauna + varasto/työhuone+kahden auton talli/varasto+kota+halkovaja+ halkoliiteri+lato+varasto
Kunto
Hyvä
Kunnon lisätiedot
hyvä kuntoinen remontoitu kohde
Lisätietoa vapautumisesta
sopimuksen mukaan
Keittiön varusteet
Liesi: keraaminen. Työtasot: laminaatti, metalli. Kylmäsäilytys: jääkaappi, pakastin. Varustus: astianpesukone, kiinteät valaisimet, liesituuletin / hormi.
Kylpyhuoneen varusteet
Pesutilojen kuvaus: yhdistetty pesu+wc tila. Varustus: wc-istuin, peilikaappi, kylpyhuonekaapisto.
Säilytystilat
ulkovarasto
Rannan (vesistön) tyyppi
Joki
Rannan pituus
30
Rannan omistus
Oma ranta
Asunnossa sauna
Kyllä
Saunan lisätiedot
Kuvaus: saunassa: suihku, wc, lavuaari, kaapistot. heti valmis -sähkökiuas
Asumistyyppi
Omistus
Lisätiedot
Sähköliittymä. Muuta kauppaan kuuluvaa: irtaimistosta sovitta erikseen
Kohde on
Kiinteistö
Kiinteistötunnus
832-403-9-13
Tietoliikennepalvelut
valokuitu

Hinta

Myyntihinta
72 500 €

Muut maksut

Kiinteistövero
298,44 €/v

Talon ja tontin tiedot

Uudiskohde
Ei
Tilan nimi
Sepänpelto
Rakennuksen tyyppi
Mökki tai huvila
Rakennusvuosi
1979
Kerroksia
1
Rakennusmateriaali
päärakennus vanha puoli pelkkahirsi, lämpöeristys, sisäpaneeli katto ja seinät uusi puoli sisä/ ulkopuoli paneeli ja lämpöeristys betonilaatta, huopakate puu, hirsi
Kattomateriaali
huopa
Kattotyyppi
harja
Energialuokka
E2018
Energiatodistus
Kyllä
Tontin koko
4 559 m²
Kaavatilanne
Kaavoittamaton
Liikenneyhteydet
Oma auto
Rannan (vesistön) tyyppi
Joki
Lämmitys
Puu, Sähkö, Ilmalämpöpumppu
Lämmönjakelu
Uuni/takka, Sähköpatterilämmitys, Sähköinen lattialämmitys, Ilmalämpöpumppu
Lisätietoja lämmityksestä
hyvä
Tontin omistus
Oma

Tilat ja materiaalit

Muut tilat
-katettu terassi
Pintamateriaalit
Lattia: Keittiössä: laminaatti. Pesutiloissa: laatta. Olohuoneessa: laminaatti. Makuuhuoneessa: laminaatti. Saunassa: laatta. Seinät: Keittiössä: kaakeli, puu. Pesutiloissa: kaakeli. Olohuoneessa: puu. Makuuhuoneessa: tapetti. Saunassa: puu.

Tekniset tiedot

Viemäröinti
oma, saostuskaivo, pienpuhdistamo