58 500 €62 m²

Kalevantie 11 A, Sorvakko, Uusikaupunki2h+k

Velaton hinta
58 500 €
Hoitovastike
217 € / kk
Asuinpinta-ala
62 m²
Huoneita
2
Kerros
3 / 5
Rakennusvuosi
1967
Rakennuksen tyyppi
Kerrostalo
Kaupunginosa
Sorvakko
Kaupunki
Uusikaupunki

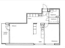
Heti vapaa valoisa ja siisti kaksio suositulla Sorvakon alueella. Iso kaksio jossa vaaleat seinäpinnat. Eteisessä korkeat peililiukuovikaapistot, jossa hyvin säilytystilaa vaatteille sekä siivouskaappi; lisäsäilytystilaa on isossa vaatehuoneessa joka on kylpyhuoneen vieressä. Hyvän kokoiset makuuhuone ja olohuone, josta käynti lasitetulle parvekkeelle etelään. Keittiössä siistit valkoiset kaapistot, jotka on uusittu 2010-luvulla. Tässä yhtiössä on tehtynä isot remontit viimeisimpänä viemäreiden sukitus loppukesästä 2025. Tässä muuttovalmis koti kävelymatkan päässä keskustasta, läheltä merenrantaa ja lenkkeily-/ulkoilumaastoja. Esittely ja myynti Kari Toivonen p. 0400502700

Perustiedot

Sijainti
Kalevantie 11 A, 23500 Uusikaupunki
Kaupunginosa
Sorvakko
Kohdenumero
20551267
Kerros
3 / 5
Asuinpinta-ala
62 m²
Tontin pinta-ala
6 021 m²
Kokonaispinta-ala
62 m²
Pinta-alojen lisätiedot
yhtiöjärjestyksen mukainen, isännöitsijäntodistuksen mukainen
Huoneiston kokoonpano
2h+k
Huoneita
2
Kunto
Hyvä
Lisätietoa vapautumisesta
heti
Keittiön varusteet
Liesi: sähköliesi. Työtasot: laminaatti. Kylmäsäilytys: jääkaappi/pakastin. Varustus: kiinteät valaisimet.
Parveke
Kyllä
Parvekkeen lisätiedot
Tyyppi: lasitettu, ulostyönnetty. Suunta: etelä
Kylpyhuoneen varusteet
Pesutilojen kuvaus: Varustus: patteri, kaappitilaa, bidee, lavuaari, suihkuverhovalmius. Varustus: pesukoneliitäntä, wc-istuin, suihku, peili, kiinteät valaisimet.
Säilytystilat
Kuvaus: Jokaiseen huoneistoon kuuluu häkkivarasto.kellarikomero, muu erillinen varasto
Tulevat remontit
Viisvuotissuunnitelma 2025: Porraskäytävien kerrostaso-ovet, lattiapinnat. Kylmähuoneiden käytön lopettaminen. Saunaosastojen saneeraus. Parvekekaiteiden huoltomaalaus. Parvekelasien huoltotarkastus. Aluevarusteiden kunnostus. Hiekkapintaisten pihaosuuksien kallistusten korjaus (asfaltti). Viemärilinjojen sukitus tehdään kaikkiin linjoihin kerralla (tehty 2025).
Tehdyt remontit
TALOYHTIÖSSÄ: Parvekekunnostus 2001. Saunojen kunnostus 2003. Ikkunoiden uusiminen 2008. Liitytty kaukolämpöön 2009. ilmnvaihtojärjestelmän puhdistus ja säätö, porraskäytävien kattoikkunat uusittu 2010. Viemärien ruiskuvalupinnoitus 2011. Tuulikaappien lattioiden laatoitus 2012. Lukkojen uusiminen ja sarjoitus 2013. Kattojen korjaus 2013. Putkistosaneeraus ja sähköt 12/2018. Hissien uusiminen 2019. Ulko-ovien ulko-oviseinien uusiminen ja ala-aulan esteettömyys 2020. Vuokratontin lunastaminen omaksi 2021. Parvekeovien ja ikkunoiden vaihto, IV-nuohous ja tasapainotuksen säätö sekä porraskäytävien maalaus 2022. 2023 B-talon yhden viemärilinjan sukitus (B 28 asunnosta ylöspäin) ja kaukolämmön alajakokeskuksen uusiminen A-ja B-talon sokkeleiden maalaus. A-talon yhden viemärilinjan sukitus (A 3 asunnosta ylöspäin). 2025 loppujen viemärilinjojen sukitus.
Asumistyyppi
Omistus
Kohde on
Osakehuoneisto

Hinta

Velaton hinta
58 500 €
Myyntihinta
49 807,18 €
Lainaosuuden maksu
Kyllä
Neliöhinta
943,55 € / m²
Velkaosuus
8 692,82 €

Vastikkeet

Hoitovastike
217 € / kk
Pääomavastike
80,60 € / kk
Yhtiövastike yhteensä
297,60 € / kk

Muut maksut

Saunan kustannukset
3,00 e / kerta
Vesimaksun lisätiedot
oma mittari
Pysäköintimaksu
10.00 e / kk
Muut kustannukset
Muut maksut: Vesiennakkomaksu 10,00€/hlö/kk, tasaus kerran vuodessa. Sähkö kulutuksen mukaan asukkaan oman sopimuksen mukaisesti. Varainsiirtovero ostajalle, erääntyy kaupanteossa.

Talon ja tontin tiedot

Uudiskohde
Ei
Taloyhtiön nimi
Asunto-Oy Länsiranta
Rakennuksen tyyppi
Kerrostalo
Rakennusvuosi
1967
Huoneistojen lukumäärä
50
Kerroksia
5
Hissi
Kyllä
Taloyhtiössä on sauna
Kyllä
Rakennusmateriaali
tiili, betoni, teräs
Kattomateriaali
Huopakate
Kattotyyppi
Tasakatto
Energialuokka
F2013
Energiatodistus
Kyllä
Kiinteistön antennijärjestelmä
kaapeli-tv
Tontin koko
6 021 m²
Kiinteistönhoito
huoltoyhtiö
Isännöinti
Vakka isännöinti Henna Kutila henna.kutila@vakkaisannointi.fi p. 050 476 8080 Alinenkatu 21 23500 Uusikaupunki
Kaavoitustiedot
Uudenkaupungin kaupunki
Kaavatilanne
Asemakaava
Lämmitys
Kaukolämpö
Lisätietoja talosta
Siirry talosivulle
Tontin omistus
Oma

Tilat ja materiaalit

Pysäköintitilan kuvaus
piha-autopaikkoja: 25. autohallipaikkoja: 12.
Yhteiset tilat
sauna, talopesula, mankeli, urheiluvälinevarasto, askarteluhuone, Huoneistokohtaiset varastot. Taloyhtiössä muuta: häkkivarasto (=huoneistokohtaiset varastot), kylmäsäilytystila Pesutupa ja mankeli Kalevantie 9:ssä.
Muut tilat
Eteisessä korkeat peililiukuovikaapistot.
Pintamateriaalit
Lattia: Keittiössä: laminaatti. Pesutiloissa: laatta. Olohuoneessa: laminaatti. Makuuhuoneessa: laminaatti. Seinät: Keittiössä: maalattu. Pesutiloissa: kaakeli. Olohuoneessa: maalattu. Makuuhuoneessa: maalattu.
Olohuoneen varusteet
Olohuoneesta käynti lasitetulle parvekkeelle.