152 000 €43,5 m²

Isokuusenkatu 47, Vuores, Tampere2h + kt + kph/wc + lasitettu parveke

Velaton hinta
152 000 €
Hoitovastike
215,33 € / kk
Asuinpinta-ala
43,5 m²
Huoneita
2
Kerros
1 / 5
Rakennusvuosi
2020
Rakennuksen tyyppi
Kerrostalo
Kaupunginosa
Vuores
Kaupunki
Tampere

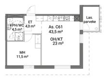
Vuoreksen Kosmos | 2h+kt+kph+lasitettu parveke

Valoisa ja toimivapohjainen kaksio upealla sijainnilla. Tervetuloa tutustumaan tähän kauniiseen ja hyvin suunniteltuun 43,5 neliön kaksioon. Asunto tarjoaa avaran ja valoisan 23 neliön olohuoneen sekä erillisen makuuhuoneen. Tilava kylpyhuone hurmaa modernilla, tummasävyisellä ilmeellään. Asunnossa on eteläsuuntainen suojaisa ja rauhallinen lasitettu parveke, joka toimii rentouttavana lisähuoneena keväästä syksyyn.

Taloyhtiössä asukkaiden arkea sujuvoittavat muun muassa pyörävarasto, lastenratasvarasto sekä oma häkkivarasto.

Asunnon kaupan yhteydessä myydään autopaikka erillisellä osakesarjalla hintaan 3500 euroa.

Yhteisöllisyyttä ja mukavuutta Taloyhtiön sydän on vehreä ja viihtyisä korttelipiha, joka tarjoaa puitteet niin lasten leikkeihin kuin rentoutumiseen. Pihasuunnittelussa on panostettu eri-ikäisten asukkaiden viihtyvyyteen. Lisäksi taloyhtiön saunaosasto, jossa on oma iso terassi ja grillausalue, sopii mainiosti niin arjen hemmotteluun kuin juhlahetkien viettoon.

Ekologista ja modernia asumista Taloyhtiössä on käytössä ympäristöystävällinen putkikeräysjärjestelmä jätteiden lajitteluun. Lisäksi yhteiskäyttöinen sähköauto tarjoaa ekologisen ja helpon tavan liikkua ilman omaa autoa.

Talo on kytketty Vuoreksen tietoverkkoon. Vastikkeeseen kuuluu 100/100M internetyhteys.

Asunnossa on tällä hetkellä hyvä ja pitkäaikainen vuokralainen. Sopimuksen voi siirtää uuden omistajalle tai sopia joustavasti asunnon vapautumisesta uuden omistajan käyttöön.

Perustiedot

Sijainti
Isokuusenkatu 47, 33870 Tampere
Kaupunginosa
Vuores
Kohdenumero
22829586
Kerros
1 / 5
Asuinpinta-ala
43,5 m²
Huoneiston kokoonpano
2h + kt + kph/wc + lasitettu parveke
Huoneita
2
Kunto
Hyvä
Lisätietoa vapautumisesta
Sovittavissa joustavasti
Keittiö
Avokeittiö
Keittiön varusteet
Induktioliesi, Jää-pakastinkaappi, Laminaattitasot, Astianpesukone
Parveke
Kyllä
Parvekkeen lisätiedot
Lasitettu parveke, Parveke
Kylpyhuoneen varusteet
Suihku, Pesukonevalmius, Peilikaappi, Allaskaappi, Laattaseinä, Lattialämmitys, Laattalattia
Ominaisuudet
Sälekaihtimet, Valoisa
Ikkunoiden suunta
Parveke ilta-aurinkoon, Ikkunoita länteen, Ikkunoita etelään
Asunnossa sauna
Ei
Saunan lisätiedot
Taloyhtiössä edustavat saunatilat
Asumistyyppi
Omistus
Vuokrattu
Kyllä
Kohde on
Osakehuoneisto
TV-palvelut
Kaapeli-TV (kuitu), Valokuitu, Ethernet
Tietoliikennepalvelut
Ethernet

Hinta

Velaton hinta
152 000 €
Myyntihinta
61 217,94 €
Neliöhinta
3 494,25 € / m²
Vuokratulo
803 € / kk

Vastikkeet

Hoitovastike
215,33 € / kk
Tontin vuokravastike
/ kk
Yhtiövastike yhteensä
215,33 € / kk

Muut maksut

Lämmityskustannukset
0
Saunamaksu
5 €

Talon ja tontin tiedot

Taloyhtiön nimi
Asunto Oy Vuoreksen Kosmos
Rakennuksen tyyppi
Kerrostalo
Rakennusvuosi
2020
Rakennusvuoden lisätiedot
Käyttöönotto Joulukuussa 2020
Liikehuoneistojen lukumäärä
0
Liikehuoneistojen pinta-ala
0 m²
Kerroksia
5
Hissi
Kyllä
Rakennusmateriaali
Betoni, Puu
Energialuokka
B2018
Ilmanvaihto
Koneellinen, lämmön talteenotolla
Kiinteistön antennijärjestelmä
Kaapeli
Kiinteistön laajakaistayhteys
Vuores-verkon peruspalveluna on nopea ja tasalaatuinen 100/100 M:n laajakaistayhteys jokaiseen asuntoon. Lisänopeutta voi hankkia aina 1000M:aan asti. Vuores Palvelu valitsee verkon palvelut tuottavan operaattorin kilpailutuksen pohjalta. Keväästä 2021 alkaen operaattorina on toiminut Lounea.
Isännöinti
Isännöinti Kärkkäinen Oy
Lämmitys
Kaukolämpö
Lämmönjakelu
Vesikiertoinen patterilämmitys
Lisätietoja lämmityksestä
Vesikeskuslämmitys, kylpyhuoneessa sähköllä toimiva mukavuuslattialämmitys
Lisätietoja talosta
Siirry talosivulle
Tontin omistus
Vuokralla

Tilat ja materiaalit

Pysäköintitilan kuvaus
Pistokkeellisia autopaikkoja, mahdollista omaksi sähkötolpallinen autopaikka hintaan 3 500 € (hoitovastike 14,85 €/kk)
Yhteiset tilat
Taloyhtiön saunatilat ja grillausterassi, pyörävarasto, lastenratasvarasto sekä oma häkkivarasto
Pintamateriaalit
Laminaatti