Hiljainen myynti - huomisen kohteet jo tänään!

Tulossa myyntiin -merkinnällä olevat asuntoilmoitukset ovat hiljaisessa myynnissä olevia asuntoja. Seuraamalla näitä asuntoja saat tietää aina ensimmäisten joukossa, mitkä asunnot ovat tulossa myyntiin. Ota yhteys ilmoittajaan ja kerro kiinnostuksestasi asuntoa kohtaan.

TULOSSA MYYNTIIN

105 900 €31,5 m²

Lipporannantie 5, Lipporanta, Oulu2h,kt,kh,las.parv.

Velaton hinta
105 900 €
Hoitovastike
153,10 € / kk
Asuinpinta-ala
31,5 m²
Huoneita
2
Kerros
1 / 7
Rakennusvuosi
2022
Rakennuksen tyyppi
Kerrostalo
Kaupunginosa
Lipporanta
Kaupunki
Oulu

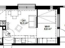
Kompakti kaksio hyvältä sijainnilta

Valoisa ja toimiva kaksio lasitetulla parvekkeella Asunto Oy Lipporannan Taimenessa. Asunto on talon 1 kerroksessa. Asunto vapautuu uudelle omistajalle 01.04.2026. Hyvä kohde sijoitukseen tai omaksi.

Talossa on erikoisuutena Kotikatu365 -nimen alla kulkeva palvelukonsepti. Asukkaiden käytössä on mm. tasokas kuntosali, olohuone- ja leikkihuone, työkaluja porakoneesta tikkaisiin, yhteiskäyttöpyörä, aikakausilehtiä yms. Lisämaksusta voi käyttää yhteiskäyttöautoa, saunaosastoa ja vieraiden käyttöön löytyy tasokas vierashuone. Yhteistilavastike on 17,88€/kk. Lisätietoa palveluista ja virtuaaliesittely yhteistiloista löytyy osoitteesta: https://www.kotikatu365.fi/.

Perustiedot

Sijainti
Lipporannantie 5, 90500 Oulu
Kaupunginosa
Lipporanta
Kohdenumero
24378510
Kerros
1 / 7
Asuinpinta-ala
31,5 m²
Huoneiston kokoonpano
2h,kt,kh,las.parv.
Huoneita
2
Kunto
Hyvä
Parveke
Kyllä

Hinta

Velaton hinta
105 900 €
Neliöhinta
3 361,90 € / m²

Vastikkeet

Hoitovastike
153,10 € / kk

Talon ja tontin tiedot

Rakennuksen tyyppi
Kerrostalo
Rakennusvuosi
2022
Kerroksia
7
Hissi
Kyllä
Lisätietoja lämmityksestä
Vesikeskuslämmitys
Lisätietoja talosta
Siirry talosivulle
Tontin omistus
Vuokralla