23 826 €73 m²

Toukokatu 2, Vihola, Nokia3h+k+s

Velaton hinta
23 826 €
Hoitovastike
851,57 € / kk
Asuinpinta-ala
73 m²
Huoneita
3
Kerros
2 / 4
Rakennusvuosi
2002
Rakennuksen tyyppi
Kerrostalo
Kaupunginosa
Vihola
Kaupunki
Nokia

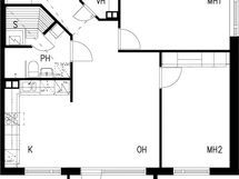
2. kerroksen kulma-asunto, jonka ikkunoista on näkymät kahteen ilmansuuntaan. Keittiö ja olohuone ovat avaraa yhtenäistä tilaa, joten ruoanlaiton lomassa voit seurailla esim. lasten touhuja olohuoneessa. Asumismukavuutta lisää oma sauna ja eteisen yhteydessä oleva vaatehuone. Asunnon parveke suuntautuu luoteeseen. Asunto vapautuu ja vastaanotto 1.6.2026 . Tälle asunnolle on vuokrattavissa autopaikka.

2002 valmistunut kerrostalo sijaitsee kulkuyhteyksien varrella Pyhäjärven rantamaisemissa. Kohteen välittömässä läheisyydessä mm. alakoulu, päiväkoti ja kylpylä. Lähistöltä löytyy myös yläkoulu. Kävelymatkan päässä Viholan kauppakeskuksen monipuoliset palvelut. Alueella erinomaiset lenkkeilymaastot. Huoneistokohtaiset lämpimät irtaimistovarastot ja kuivaushuone sijaitsevat talon pohjakerroksessa sekä ulkoiluvälinevarasto talousrakennuksessa. Kohteessa käynnissä pesutilojen remontointi v. 2024. Kiinteistö on savuton. Savuttomuus tarkoittaa, että tupakointi on kielletty koko kiinteistössä, sen huoneistoissa, parvekkeilla, piha-alueilla ja yhteisissä tiloissa.

Perustiedot

Sijainti
Toukokatu 2, 37120 Nokia
Kaupunginosa
Vihola
Kerros
2 / 4
Asuinpinta-ala
73 m²
Kokonaispinta-ala
73 m²
Huoneiston kokoonpano
3h+k+s
Huoneita
3
Vapautuu
01.06.2026
Parveke
Kyllä
Asunnossa sauna
Kyllä
Asumistyyppi
Asumisoikeus
Lemmikkieläimet sallittu
Kyllä
Lisätiedot
Alkup. asomaksu: 14 310,43 € indeksikorotus: 9 515,76 €
Postitoimipaikka
NOKIA

Hinta

Velaton hinta
23 826,19 €
Neliöhinta
326,39 € / m²

Vastikkeet

Hoitovastike
851,57 € / kk

Muut maksut

Vesimaksun lisätiedot
Vesimaksu 20,00 €/kk/hlö
Muut kustannukset
Vakuus: 1 484,34 €

Talon ja tontin tiedot

Uudiskohde
Ei
Rakennuksen tyyppi
Kerrostalo
Rakennusvuosi
2002
Kerroksia
4
Hissi
Kyllä
Taloyhtiössä on sauna
Ei
Energialuokka
D2007
Lämmitys
Kaukolämpö
Lisätietoja lämmityksestä
Kaukolämpö
Lisätietoja talosta
Siirry talosivulle