59 000 €95 m²

Vasunmäentie 1269, Tiistenjoki, Lapua

Myyntihinta
59 000 €
Asuinpinta-ala
95 m²
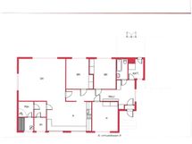
Huoneita
4
Kerroksia
1
Rakennusvuosi
1966
Rakennuksen tyyppi
Omakotitalo
Kaupunginosa
Tiistenjoki
Kaupunki
Lapua

Tiistejoen kylässä, viehättävä Siporex talo maalaismaisemissa n. 15 km etäisyydellä Lapuan kaupungin keskustassa. Pihapiirissä lisäksi ulkosauna.

Tämä kokonaisuus muodostuu kahdesta eri tilasta, pinta-alojen ollessa yhteensä 3450 m2. Lenkkeilymaastot mukavasti kivenheton päässä. Hyvät tieliikenneyhteydet lähellä.

Oletko aikeissa myydä kotisi? Pyydä ilmainen arvio 040 514 9439 / Anssi Helin tai anssi.helin@luxuskoditlkv.fi

Perustiedot

Sijainti
Vasunmäentie 1269, 62185 Lapua
Kaupunginosa
Tiistenjoki
Kohdenumero
80499625
Kerroksia
1
Asuinpinta-ala
95 m²
Tontin pinta-ala
3 450 m²
Kokonaispinta-ala
95 m²
Huoneita
4
Lisätietoa vapautumisesta
Heti.
Keittiön varusteet
Keittiön varusteet: Jääkaappi, liesi, liesituuletin ja astianpesukone. Liesi: Keraaminen liesi.
Parveke
Ei
Kylpyhuoneen varusteet
Pesutilojen varusteet: Suihkukaappi ja pesukoneliitäntä. Erillisten WC:n lukumäärä: 1. Erillisen WC:n varusteet: WC-istuin, peili, pesuallas ja allaskaappi.
Säilytystilat
Kaapistot
Asunnossa sauna
Kyllä
Asumistyyppi
Omistus
Vuokrattu
Ei
Palvelut
Keskustan palvelut n. 15 km
Kohde on
Kiinteistö
Kiinteistötunnus
408-408-13-2, 408-408-2-34
Postitoimipaikka
Lapua

Hinta

Myyntihinta
59 000 €

Muut maksut

Muut kustannukset
Lisätietoja maksuista: Vesiosuuskunnan vesimaksu

Talon ja tontin tiedot

Uudiskohde
Ei
Rakennuksen tyyppi
Omakotitalo
Rakennusvuosi
1966
Rakennuksen käyttöönottovuosi
1966
Kerroksia
1
Rakennusmateriaali
Betoni
Kattomateriaali
Pelti
Kattotyyppi
Harjakatto
Energiatodistus
Ei lain edellyttämää energiatodistusta
Ilmastointijärjestelmä
Painovoima
Kiinteistön antennijärjestelmä
Antenni
Tontin koko
3 450 m²
Kaavoitustiedot
Lapuan kaupunki.
Kaavatilanne
Haja-asutusalue
Liikenneyhteydet
Bussipysäkki lähellä ja sujuvat yhteydet omalla autolla
Lämmitys
Puu, Öljy
Lisätietoja lämmityksestä
Puu, Öljy
Tontin omistus
Oma

Tilat ja materiaalit

Kylpyhuoneen lattia
Laatta

Tekniset tiedot

Viemäröinti
Oma.