525 000 €108,5 m²

Torpantie 7, Kinnari, Järvenpää4-7h + tupak. + 2xkph + sauna + var + ak

Myyntihinta
525 000 €
Asuinpinta-ala
108,5 m²
Huoneita
7
Kerroksia
2
Rakennusvuosi
2027
Rakennuksen tyyppi
Omakotitalo
Kaupunginosa
Kinnari
Kaupunki
Järvenpää

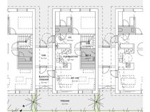
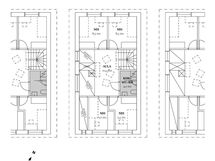
Kolmen uudisomakotitalon kohde Kinnarissa

Kolmen kytketyn omakotitalon kokonaisuus huippusijainnilla rauhallisella Kinnarin alueella Järvenpäässä. Näitä on harvoin tarjolla! 108,5 m² kahden kerroksen tilaratkaisuun mahtuu kaikki mitä kaupunkilaisperhe voi toivoa: asumisen helppoutta ja mukavuutta, kesäpihan vehreyttä, iloa isosta aurinkoisesta terassista sekä oman saunan löylyjä.

Tämä uudiskohde on kaupunkimaisesta pientalorakentamisesta, jossa yhdistyvät yksilöllisyys, toimiva design, hallittu kustannusrakenne sekä hyvä sijainti.

PARASTA TÄSSÄ KODISSA Keskeistä on valo ja muunneltavuus, erityistä huomiota on kiinnitetty luonnonvalon kulkuun. Suuret ikkunat ja oivaltavat tilaratkaisut tuovat päivän- ja vuodenaikojen kierron osaksi sisustusta.

Kaiken keskiössä on sinun valinnat. Et osta vain neliöitä vaan paikan, jonka suunnitteluun voit osallistua. Tämä on tilaisuutesi räätälöidä itsellesi ja perheellesi ylellinen pientalo aivan Järvenpään keskustan tuntumassa. Kodit ovat räätälöitävissä 4–7 huoneen kokonaisuuksiksi valmiiksi suunniteltujen tilakonseptien mukaan.

Toteutetaan avaimet käteen -periaatteella.

PIHAPIIRI Jokaisella asunnolla on oma suojaisa piha ja etelään/kaakkoon avautuva terassi. Pihapiiri on turvallinen ja viihtyisä ympäristö niin lasten leikeille kuin aikuisten oleskelulle. Vehreät istutukset ja harkittu sijoittelu luovat jokaiselle kodille oman rauhan, mutta mahdollistavat samalla mukavan naapuruston yhteisöllisyyden. Tontilla yhteensä 5 autopaikkaa, joista kolme autokatoksessa.

TOIMIVAT PERHEKODIT Alakerta on kodin sydän, jossa keittiö sekä oleskelutilat mitkä yhdistyvät valoisaksi tilaksi. Yläkerta tarjoaa rauhaa makuuhuoneille ja oleskeluaulatilan. Voit valita valmiiksi valituista laadukkaista sisäpintamateriaaleista mieleisesi tai keskustellaan mahdollisuuksista käyttää muita teille sopivia ratkaisuita. Laadukkaan keittiön toteuttaa Puustelli, missä on saarekkeeseen sijoitettu induktiotaso integroidulla liesituulettimella luoden tilasta tyylikkään kokonaisuuden. Keittiötä pääset suunnittelemaan ja muokkaamaan lisää yhdessä keittiöasiantuntijan kanssa.

MODERNIT VARUSTEET Lämmönlähteenä on energiatehokas ilma-vesilämpöpumppu. Vesikiertoinen lattialämmitys ja koneellinen ilmanvaihto lämmöntalteenotolla takaavat energiatehokkaan sekä miellyttävän asumisen.

KAUPUNGIN PALVELUT LÄHELLÄ Kohde sijaitsee noin kilometrin päässä Järvenpään keskustasta ja juna-asemasta. Läheltä löytyvät koulut, päiväkodit, päivittäistavarakaupat sekä Tuusulanjärven ulkoilu- ja kulttuurialueet.

LISÄTIETOJA Tilaa kohteen myynti sekä materiaaliesitteet ja pääset tutustumaan täsmällisemmin laadukkaisiin materiaali ja sisustustyyli ratkaisuihin.

Kysy lisää jo tänään! Iiro Piipponen 040 759 2477 iiro.piipponen@avenues.fi

Perustiedot

Kaupunginosa
Kinnari
Kohdenumero
24279132
Kerroksien lukumäärä
2
Asuinpinta-ala
108,5 m²
Tontin pinta-ala
1 016 m²
Pinta-alojen lisätiedot
Asuinpinta-ala 108,5m2
Varastot 6m2
Huoneiston kokoonpano
4-7h + tupak. + 2xkph + sauna + var + ak
Huoneita
7
Kunnon lisätiedot
Uusi
Keittiön varusteet
Puustelli -keittiö: Kalusteisiin integroidut jää-pakastinkaappi -yhdistelmä, induktioliestiuuletin -yhdistelmä taso, mikro, integroitu astianpesukone ja erillisuuni. Työtasot laminaattia.

Lattia vinyylilankku
Kylpyhuoneen varusteet
Alakerrassa erillis-wc sekä pesuhuone jossa sauna.
Yläkerrassa pesuhuone wc:llä, jossa kodinhoitonurkkaus.

Märkätiloissa 60x60 seinälaatat ja 10x10 lattialaatat
Erillis WC 10x10 lattialaatta
Säilytystilat
Kaapistot, lämmin oma varasto joka toimii myös teknisenä tilana.
Asunnossa sauna
Kyllä
Saunan lisätiedot
Alakerran pesuhuoneen yhteydessä sauna. Saunassa lasiovi sekä lasinen seinäke. Sähkökiuas. Puupaneelit tervaleppää. Lauteet lämpöhaapaa
Asumistyyppi
Omistus
Muut ehdot
Rakentamisesta tehdään erillinen urakkasopimus (kuluttajaviranomaisen tarkistama ja hyväksymä Rakennusalan töitä koskeva kuluttajasopimus), jossa noudatetaan kuluttajasopimusehtoja RYS-9 1998. Ostajasta tulee sopimuksen ehdoin maankäyttö- ja rakennuslain tarkoittama rakennuttaja. Huomiona että havainnekuvat ovat taitelijan näkemys sisustusmateriaaleista, jotka ovat saavutettavissa vakio- ja lisähintaisilla materiaaleilla. Tarkempi sisältö määrittyy materiaaliesitteiden ja toimitussisällön perusteella.
Kohde on
Kiinteistö
Kiinteistötunnus
186-005-0522-0012
TV-palvelut
Keskusantenni, varaukset valokuituliittymille

Hinta

Myyntihinta
525 000 €

Muut maksut

Muut kustannukset
Hinta pitää sisällään erikseen myytävän määräosan kiinteistöstä ja urakkasopimuksen. Määräosan hinta: Talo A 85 833,34 € etelä Talo B 90 833,34 € keskimmäinen Talo C 95 833,34 € pohjoinen Urakkasopimuksen hinta 434 166,66 €. Alv25,5% Talo A yhteensä 520 000 € Talo B yhteensä 525 000 € Talo C yhteensä 530 000 € Varainsiirtovero 3% maksetaan ainoastaan tontin hinnasta. Kaupanvahvistajan palkkion osuus.

Talon ja tontin tiedot

Valmistumisaika
kesä 2027
Uudiskohde
Kyllä
Rakennuksen tyyppi
Omakotitalo
Rakennusvuosi
2027
Rakennusvuoden lisätiedot
Rakentamisen aloitus kesällä 2026, valmistuminen kevät/alkukesä 2027
Rakennuksen käyttöönottovuosi
2027
Kerroksia
2
Rakennusmateriaali
Puu
Energialuokka
B2018
Kunnallistekniikka
Vesi ja viemäri: Rakennukset liitetään kaupungin vesijohto-, sadevesi- ja jätevesiverkostoihin. Veden mittaus asuntokohtaisesti. Rakennukset liitettään alueelliseen sähköverkkoon. Sähkön mittaus asuntokohtaisesti.
Ilmanvaihto
Koneellinen, lämmön talteenotolla
Tontin koko
1 016 m²
Kaavatilanne
Lainvoimainen asemakaava
Lämmitys
Ilmavesilämpöpumppu
Lämmönjakelu
Vesikiertoinen lattialämmitys
Tontin omistus
Oma

Tilat ja materiaalit

Pysäköintitilan kuvaus
Yhteisalueelle kuuluu kolmen auton katos sekä kaksi pihapaikkaa.
Muut tilat
Yhteisaluueelle kuuluu jätesuoja.
Pintamateriaalit
Kuivissa tiloissa lattia vinyylilankkua, seinät ja katto maalattuja Pesuhuoneissa märkäalueiden lattia 10x10 ja seinät 60x60 laatoitettuja, katto puupaneeli Erillis-WC tilassa lattia 10x10 laatoitettu, seinät ja katto maalattuja.