438 900 €98,5 m²

Peikkometsäntie 2 as, Himos, Jämsä5h,kt,s

Velaton hinta
438 900 €
Asuinpinta-ala
98,5 m²
Huoneita
5
Kerros
6 / 8
Rakennusvuosi
2027
Rakennuksen tyyppi
Kerrostalo
Kaupunginosa
Himos
Kaupunki
Jämsä

Huoneistohotelli Himos INN on nyt ennakkomarkkinoinnissa!

Uusi upea Himos INN rakennetaan Himoksen keskipisteeseen, monipuolisten palveluiden äärelle. Tämä kahdeksan kerroksinen huoneistohotelli tarjoaa yhteensä 42 tasokasta loma-asuntoa alueen parhaalla paikalla. Asunnoista avautuu upeita maisemia kohti laskettelurinteitä sekä Patalahden vesistöä.

Jatkuvasti kehittyvä Himos on Etelä- ja Keski-Suomen monipuolisin ja suurin hiihtokeskus, joka tarjoaa loistavien laskettelurinteiden lisäksi laajasti erilaisia harrastusmahdollisuuksia ja tapahtumia ympärivuoden, jonka ansiosta se on vakiinnuttanut myös paikkansa tuottoisana sijoituskohteena. Himos tunnetaan kesän kattavasta festarivalikoimasta, Areenakeikoista, harrastus-, liikunta- ja hyvinvointitapahtumista sekä golfkentästä.

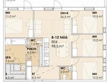
Himos INN rakennetaan uuden Willi Länsi huvikeskuksen naapuriin osoitteeseen Peikkometsäntie 2. Täältä lomailijalla on vain kävelymatka kaikkiin alueen tärkeisiin palveluihin kuten mm. ravintoloihin, huvikeskuksen aktiviteetteihin, Himos Centerille ja kauppaan sekä Himos Areenalle. Himos Golf ja Länsirinteet sijaitsevat myös vain noin 700 metrin päässä. Huoneistovalikoimasta löytyy 2-4 henkilön kaksioita, 4-6 henkilön kolmioita, 6-9 henkilön neliöitä sekä tilavia neljän makuuhuoneen huoneistoja, joissa majoittuu jopa 8-12 henkilöä. Kaikki asunnot varustetaan lasitetulla parvekkeella ja omalla saunalla. Huoneistoissa on myös täysin varustellut keittiöt sekä lämpöpumpullinen kuivauskaappi.

Kohde rakennetaan omalle tontille, rakennuksen lämmitysmuotona on poistoilmalämpöpumppu lattialämmityksellä. Ilmanvaihto on huoneistokohtainen, koneellinen tulo- ja poistoilmanvaihtojärjestelmä lämmön talteenotolla. Huoneistot varustetaan viilennyksellä, kaapelitelevisioverkolla ja datakaapeloinnilla. Jokaisen asunnon käyttöön on varattu yksi autopaikka. Pohjakerrokseen rakennetaan huoneistokohtaiset varastotilat esimerkiksi liikuntavälineille.

Himos INN tarjoaa helppoa ja huoletonta loma-asunnon omistusta ja hallinnointia, ostajalla on mahdollisuus ulkoistaa asunnon vuokraus ja ylläpito paikallisille toimijoille. Arvonlisäverovelvollinen ostaja voi hyödyntää oston yhteydessä ALV-palautuksen, joka annetaan kertaluontoisena alennuksena myyntihinnasta.

Himos INN asunnot myy OP Koti, joten ole rohkeasti yhteydessä ja kysy lisätietoja asuntovalikoimasta ja lisäpalveluista. Asuntojen varaus on aloitettu!

Perustiedot

Kaupunginosa
Himos
Kohdenumero
611710
Kerros
6 / 8
Asuinpinta-ala
98,5 m²
Tontin pinta-ala
828 m²
Kokonaispinta-ala
98,5 m²
Huoneiston kokoonpano
5h,kt,s
Huoneita
5
Kunto
Uusi
Lisätietoa vapautumisesta
kun kohde valmistuu
Keittiön varusteet
Jääkaappipakastin, erillisuuni, liesitaso, astianpesukone.
Parveke
Kyllä
Kylpyhuoneen varusteet
Sauna, sähkökiuas, kylpyhuone, erillinen wc, peilit, allaskaappi, lattialämmitys Sähköinen mukavuuslattialämmitys, Pyyheteline, pesuhuoneissa.
Säilytystilat
Huoneistokohtainen varasto liikuntavälineille
Asunnossa sauna
Kyllä
Asumistyyppi
Omistus
Kohde on
Osakehuoneisto
Ensiesittelyssä
Ei
Postitoimipaikka
JÄMSÄ

Hinta

Velaton hinta
438 900 €
Myyntihinta
214 878 €
Neliöhinta
4 455,84 € / m²
Velkaosuus
224 022 €
Kohde on yhtiölainoitettu
Taloyhtiölainasta on vastuussa jokainen osakas. Jos lainaa koskevia pääomavastikkeita ei saada joidenkin asuntojen osalta muutoin perittyä, maksuvelvollisuus voi langeta viime kädessä muille osakkaille.

Vastikkeet

Hoitovastike
374,30 € / kk
Pääomavastike
/ kk
Yhtiövastike yhteensä
374,30 € / kk

Muut maksut

Vesimaksun lisätiedot
Mittarin mukaan
Muut kustannukset
Vesimaksu kulutuksen mukaan: Kylmävesi 7,00€/m³, lämminvesi 12,00€/m³.Kaapeli tv ja laajakaistavastike 3,00€/kk. Kohde on ennakkomarkkinoinnissa, rahoitusvastikekustannukset tarkentuvat kun kohteen RS-aineisto on saatavilla.

Talon ja tontin tiedot

Uudiskohde
Kyllä
Taloyhtiön nimi
Kiinteistö Oy Himos INN
Rakennuksen tyyppi
Kerrostalo
Rakennusvuosi
2027
Huoneistojen lukumäärä
42
Liiketilojen pinta-ala
0 m²
Liikehuoneistojen lukumäärä
0
Rakennuksen käyttöönottovuosi
2027
Kerroksia
8
Hissi
Kyllä
Taloyhtiössä on sauna
Kyllä
Rakennusmateriaali
Betoni. teräsbetoni
Kattomateriaali
Pelti
Kattotyyppi
Harja
Tontin koko
828 m²
Kiinteistönhoito
Huoltoyhtiö
Kaavoitustiedot
Jämsän kaupunki, kaavoitusosasto
Kaavatilanne
Asemakaava.
Lämmitys
Muu
Lämmönjakelu
Vesikiertoinen lattialämmitys
Lisätietoja lämmityksestä
Ilmavesilämpöpumppu
Kunnan numero
182
Tontin omistus
Oma

Tilat ja materiaalit

Yhteiset tilat
Sauna, uima-allas, talopesula, kuivaushuone, mankeli, jäähdytetty kellari, vinttikomerot, kellarikomerot, urheiluvälinevarasto, lastenvaunuvarasto, pyörävarasto, askarteluhuone, väestösuoja, kaapeli-TV, satelliittiantenni, yhteisantennijärjestelmä, tietoliikenneyhteys, mahdollisuus autopaikkaan, , ,
Pintamateriaalit
Sauna: lattia kuivapuristelaatta, seinät puupaneeli. Kylpyhuone: lattia kuivapuristelaatta, seinät laatta. Eteinen: lattia kuivapuristelaatta, seinät maali. Wc: lattia kuivapuristelaatta, seinät maali/allastaustaseinät laatta. Asuinhuoneet: lattiat vinyylilankku, seinät maali.