29 732 €87 m²

Mustankivenaukio 3, Vuosaari, Helsinki4H+K+S

Velaton hinta
29 732 €
Asuinpinta-ala
87 m²
Huoneita
4
Kerros
5 / 7
Rakennusvuosi
1999
Rakennuksen tyyppi
Kerrostalo
Kaupunginosa
Vuosaari
Kaupunki
Helsinki

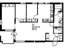
Asunnossa on kolme makuuhuonetta, jotka sijoittuvat kätevästi vierekkäin omalle rauhalliselle alueelleen. Jokaisessa huoneessa on hyvin säilytystilaa, ja tilat soveltuvat erinomaisesti niin lastenhuoneiksi, työtiloiksi kuin vierashuoneiksikin.

Keittiö on selkeälinjainen ja käytännöllisesti suunniteltu arjen sujuvuutta ajatellen. Sekä työskentelypintaa että säilytysratkaisuja on runsaasti.

Kylpyhuone on käytännöllinen ja tilava, ja sen yhteydessä sijaitseva sauna tarjoaa rentouttavat puitteet arjen keskelle. Asunnossa on myös erillinen WC.

Asunnon yhteydessä on lisäksi parveke, joka toimii miellyttävänä lisätilana oleskeluun.

Tutustu asuntoon ja jätä hakemus osoitteessa www.asuntosaatio.fi sekä sovi esittelystä sähköpostitse bertta.gylden@asuntosaatio.fi tai puhelimitse p. 020 161 2403

Mustankivenaukio 3 on keskeisellä paikalla Vuosaaressa sijaitseva kerrostalokohde. Kohde koostuu 69 asunnosta, joiden koot vaihtelevat yksiöistä neljän huoneen asuntoihin, 36,5–114 m². Useissa huoneistoissa ja kohteen yläkerroksissa avautuvat näkymät Mustankivenpuistoon ja jopa merelle asti. Asukkailla on käytössään sauna, pyykkitupa, kuivaushuone sekä kerhotila. Koulut, päiväkodit ja palvelut ovat kohteessa lähellä. Kauppakeskus Columbuksen päivittäispalvelut sekä Vuosaaren metro sijaitsevat alle kilometrin päässä kohteesta. Alue tarjoaa myös mahdollisuudet ulkoiluun ja liikuntaan, sillä lähettyvillä on useita urheilukenttiä, liikuntahalleja sekä ulkoilureittejä.

Tupakointi asunnoissamme: Kaikki uudet asuinkiinteistömme ovat olleet jo pitkään täysin savuttomia heti valmistumisestaan lähtien. Muutumme vähitellen savuttomiksi kaikkien asuntojemme osalta: uusien asukkaiden sopimukset kieltävät tupakoinnin huoneistoissa ja parvekkeilla 1.1.2021 alkaen. Kiinteistö ei ole välttämättä savuton muiden huoneistojen osalta, koska niissä voi olla vanhoja sopimuksia, joissa ei ole tupakointikieltoa.

Perustiedot

Kaupunginosa
Vuosaari
Kerros
5 / 7
Asuinpinta-ala
87 m²
Huoneiston kokoonpano
4H+K+S
Huoneita
4
Kunto
Hyvä
Lisätietoa vapautumisesta
sopimuksen mukaan
Parveke
Kyllä
Asunnossa sauna
Kyllä
Asumistyyppi
Asumisoikeus
Lisätiedot
Tupakointi sallittu: Ei.

Hinta

Velaton hinta
29 731,58 €
Myyntihinta
29 731,58 €
Neliöhinta
341,74 € / m²

Muut maksut

Vesimaksu
20 € / kk
Muut kustannukset
Asumisoikeusmaksu: 16788,69 €, Indeksikorotus: 12942,89 €, Muutostyöt: 0,00 €, Yhteensä: 29731,58 €.
Käyttövastike
1 301,53 € / kk

Talon ja tontin tiedot

Taloyhtiön nimi
Mustankivenaukio 3
Rakennuksen tyyppi
Kerrostalo
Rakennusvuosi
1999
Rakennusvuoden lisätiedot
1999
Kerroksia
7
Hissi
Kyllä
Taloyhtiössä on sauna
Kyllä
Rakennusmateriaali
Betoni
Energialuokka
E
Energiatodistus
Kyllä
Kiinteistönhoito
Turva- ja kiinteistöpalvelut Palmia Oy
Isännöinti
Asuntosäätiö - Isännöinti
Lämmitys
Kaukolämpö
Lisätietoja lämmityksestä
Kauko
Lisätietoja talosta
Siirry talosivulle