468 000 €85,5 m²

Kalasatamankatu 32, Verkkosaari, Helsinki4h + avok + p

Velaton hinta
468 000 €
Asuinpinta-ala
85,5 m²
Huoneita
4
Kerros
6 / 8
Rakennusvuosi
2023
Rakennuksen tyyppi
Kerrostalo
Kaupunginosa
Verkkosaari
Kaupunki
Helsinki

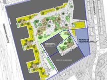
Asunto Oy Helsingin Capella

Läpitalonhuoneisto, erillinen wc ja kph, vaatehuone, lasitettu parveke kaakkoon, yksi makuuhuone olohuoneen yhteydessä pariovilla.

Kalasataman palveluiden äärelle, kivenheiton päähän merenrannasta on valmistunut Asuntosäätiön rakennuttama hitas-kohde, Asunto Oy Helsingin Capella. Monimuotoiseen asuinkortteliin sijoittuva rakennus on mukavasti suojassa vilkkaalta Hermannin rantatieltä. Katutasossa sijaitsee kaksi liiketilaa, jotka jäävät taloyhtiön hallintaan.

Kahdeksankerroksisessa talossa on yhteensä 32 hyvin suunniteltua kaupunkikotia. Toimivat pohjaratkaisut ja valoisat näkymät luovat kotiin viihtyisän tunnelman. Lasitetut parvekkeet, parketit, lattialämmitys, sälekaihtimet, astianpesukone ja induktioliesi kuuluvat asunnon varusteluun.

Asumisen helppoutta lisäävät talopesula kuivaushuoneineen, yhteinen kerhotila ja toimivat varastotilat sekä kaksi saunaosastoa, joista toinen on ylimmässä kerroksessa upein näkymin. Suojaisa korttelipiha viheralueineen kutsuu viihtymään naapureiden kanssa.

Pihakannen alle valmistuu yhteiskäytössä oleva parkkihalli. Ilmoituksen kuvat ovat malliasunnosta A 3. Pintamateriaalit vaihtelevat eri asunnoissa. Ota yhteyttä paivi.tulokas@asuntosaatio.fi ja sovi tutustuminen ja oma esittelyaika kohteessa.

Asunto Oy Helsingin Capellan kodit valmistuivat 30.5.2025.

Teemme yhteistyötä Sointuvat Neliöt Oy:n Antti Haatajan kanssa. Mikäli tarvitset apua nykyisen asuntosi myynnissä voit olla suoraan yhteydessä Anttiin/ +358 41 328 0203 / antti@sointuvatneliot.fi

Perustiedot

Kaupunginosa
Verkkosaari
Kohdenumero
17505299
Kerros
6 / 8
Asuinpinta-ala
85,5 m²
Kokonaispinta-ala
85,5 m²
Huoneiston kokoonpano
4h + avok + p
Huoneita
4
Kunto
Hyvä
Kunnon lisätiedot
uusi valmis kohde
Lisätietoa vapautumisesta
Kohde valmistunut 30.5.2025
Keittiö
Avokeittiö
Keittiön varusteet
Astianpesukone, Induktioliesi, Jääkaappi, Pakastin, Huoneistossa Novartin kalusteet, laminaattitasot, jääkaappi ja pakastekaappi, induktioliesi ja erillisuuni, astianpesukone.
Materiaalit löytyvät www.asuntosaatio.fi/hitas sivuilta
Parveke
Kyllä
Parvekkeen lisätiedot
Lasitettu parveke
Kylpyhuoneen varusteet
Suihku, Suihkuseinä, Pesukonevalmius, Peilikaappi, Allaskaappi, Laattalattia, Laattaseinä, Erillinen WC.
Säilytystilat
Vaatehuone, komeroita jokaisessa makuuhuoneessa.
Ominaisuudet
Valoisa, Sälekaihtimet
Ikkunoiden suunta
Kaakko-luode
Näkymät
Kadulle ja sisäpihalle.
Asumistyyppi
Omistus
Vuokrattu
Ei
Palvelut
Päiväkoti lähellä
Kohde on
Osakehuoneisto
Kiinteistötunnus
91-10-652-9
TV-palvelut
Kaapeli-TV (kuitu)
Linkit

Hinta

Velaton hinta
468 000 €
Myyntihinta
262 915 €
Neliöhinta
5 473,68 € / m²
Velkaosuus
205 085 €
Lunastuspykälä
Hitas-säännöt
Taloyhtiön tilat ja tuotot
Taloyhtiöllä on kaksi saunatilaa, kerhotila, uvv ja lvv varastot, pesula, kuivaushuone, huoneistokohteiset varastot. Taloyhtiöllä kaksi liiketilaa 139 m2 ja 38 m2.
Kohde on yhtiölainoitettu
Taloyhtiölainasta on vastuussa jokainen osakas. Jos lainaa koskevia pääomavastikkeita ei saada joidenkin asuntojen osalta muutoin perittyä, maksuvelvollisuus voi langeta viime kädessä muille osakkaille.

Vastikkeet

Hoitovastike
846,45 € / kk
Pääomavastike
488,21 € / kk
Yhtiövastike yhteensä
1 334,66 € / kk

Muut maksut

Vesimaksu
25 € / kk
Vesimaksun lisätiedot
huoneistossa on vesimittarit ja vesimaksuennakko on 25 €/henk/kk
Saunamaksu
25 €/kk
Muut kustannukset
Arvioitu yhtiövastike lyhennysten alkamisen jälkeen yhteensä 2370,06 €, riippuen sen hetkisestä korosta.

Talon ja tontin tiedot

Valmistumisaika
30.5.2025
Uudiskohde
Kyllä
Taloyhtiön nimi
Asunto Oy Helsingin Capella
Lisätietoa taloyhtiöstä
Asunto Oy Helsingin Capella on hitas-kohde, jossa on 32 huoneistoa Helsingin kaupungin vuokratontilla, taloyhtiössä on hissi ja parkkihalli
Rakennuksen tyyppi
Kerrostalo
Rakennusvuosi
2023
Liikehuoneistojen lukumäärä
2
Liikehuoneistojen pinta-ala
177 m²
Rakennuksen käyttöönottovuosi
2025
Kerroksia
8
Hissi
Kyllä
Taloyhtiössä on sauna
Kyllä
Rakennusmateriaali
Betoni, Tiili
Perustus
Alapohjana on tuulettuva ontelolaattarakenteinen alapohja ja vähäiseltä osin maata vasten valettu kantava betonilaatta. Rakennuksen rungon muodostavat betonielementtiseinät ja niihin tukeutuvat superlaatat.
Kattotyyppi
Kermieristetty lapekatto, joka on päällystetty pellillä.
Energialuokka
A2018
Ilmanvaihto
Koneellinen, lämmön talteenotolla
Kiinteistön antennijärjestelmä
Kaapeli
Kaavoitustiedot
Helsingin kaupungin kaavoitusosasto
Kaavatilanne
Asemakaava
Lämmitys
Kaukolämpö
Lisätietoja lämmityksestä
Kaukolämpö
Tontin vuokra päättyy
31.12.2085
Maanvuokraaja
Helsingin kaupunki

Tilat ja materiaalit

Pysäköintitilan kuvaus
Parkkihallissa on 18 nimeämätöntä autopaikkaa.
Yhteiset tilat
Kaksi saunatilaa, kerhohuone, pesuhuone, kuivaushuone, UVV, LVV, huoneistokohtaiset varastot
Pintamateriaalit
Parketti