Tarjouskauppakohde

165 000 €432,3 m²

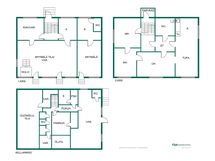
Vaahteratie 12, Oitti, HausjärviAsuinkrs: 3h, tupak, wc/varaus suihkulle, aula, et. Keskikrs: 2 myymälätilaa, 2 k, wc, khh/var. Kellarikrs: s, psh, oleskelutila, wc, tekn. tila, erillisellä sisäänkäynnillä varastotila, minikeittiö, wc

Velaton hinta
165 000 €
Asuinpinta-ala
432,3 m²
Huoneita
6
Kerroksia
3
Rakennusvuosi
1952
Rakennuksen tyyppi
Omakotitalo
Kaupunginosa
Oitti
Kaupunki
Hausjärvi

Monikäyttöinen kolme kerroksinen omakotitalo Oitissa – asumista ja liiketoimintaa samassa paketissa! Tervetuloa tutustumaan tähän ainutlaatuiseen kiinteistöön, joka tarjoaa erinomaiset puitteet sekä asumiseen että yritystoimintaan.

Yläkerrassa eli toisessa kerroksessa sijaitsevat viihtyisät asuintilat: 3 huonetta, tupakeittiö, aula, erillinen wc, jossa varaus suihkulle sekä eteinen. Keskikerros eli ensimmäinen kerros on suunniteltu yritystoimintaan, mutta muuntuu tarvittaessa myös muuhun käyttöön: 2 erillistä myymälätilaa, 2 keittiötä, wc, kodinhoitohuone/varastotila. Kellarikerros tarjoaa loistavat tilat vapaa-aikaan ja varastointiin: Sauna heti valmiilla kiukaalla, pesuhuone, oleskelutila, wc, tekninen tila. Erillisellä sisäänkäynnillä varustettu varastotila, jossa minikeittiö ja wc.

Kiinteistön pihalla on runsaasti elämyksiä: Tunnelmallinen grillikota, tynnyrisauna pukuhuoneella, saunassa puukiuas vesisäiliöllä (pesuvedet imeytetään kivipesän kautta maahan) ja sähköt, palju (vuodelta 2023), suihkulähteellä varustettu allas, leikkimökki, puutarhavaja (2015), kasvihuone, lasitettu oleskelutila sekä pergola.

Tämä kiinteistö tarjoaa harvinaisen yhdistelmän asumismukavuutta, liiketoimintamahdollisuuksia ja vapaa-ajan nautintoja – kaikki yhdessä osoitteessa.

Tarjouskauppakohde

Tarjouskaupassa tarjoukset tehdään lähtöhinnasta ylöspäin.

Lähtöhinta
165 000 €
Uusin kirjallinen tarjous
-

Perustiedot

Kaupunginosa
Oitti
Kohdenumero
1407502
Kerroksien lukumäärä
3
Asuinpinta-ala
432,3 m²
Tontin pinta-ala
2 288 m²
Kokonaispinta-ala
525 m²
Huoneiston kokoonpano
Asuinkrs: 3h, tupak, wc/varaus suihkulle, aula, et. Keskikrs: 2 myymälätilaa, 2 k, wc, khh/var. Kellarikrs: s, psh, oleskelutila, wc, tekn. tila, erillisellä sisäänkäynnillä varastotila, minikeittiö, wc
Huoneita
6
Kunto
Hyvä
Kunnon lisätiedot
Hyvä
Lisätietoa vapautumisesta
sopimuksen mukaan
Keittiön varusteet
Jää-viileäkaappi 2kpl, jääkaappi/pakastin 2kpl, sähköliesi, keraaminen liesi, induktioliesi, liesituuletin hormiin 3kpl, astianpesukone 3kpl
Kylpyhuoneen varusteet
Sauna, heti valmis kiuas, erillinen wc 3kpl, 2kpl sadesuihkuja, pesukoneliitäntä yläkerran wc
Tehdyt remontit
Vuonna 1999 salaojat uusittu runkolinjaan asti. Vuonna 1999-2000 käyttövesiputket ja viemärit uusittu muoviputkille, asuinkerroksen sähköt ja mittaritaulut uusittu, ulko-ovet uusittu. Vuonna 2010 vanha tiilikatto purettu, asennettu ruoteet ja aluskate, uusi tiilikate, kattoturvatuotteet uusittu, räystäskourut sekä syöksyt uusittu, hulevesiviemäröinti rakennettu, purku kunnan verkkoon. Vuonna 2010 asuinkerroksen ikkunat uusittu. Asuintilat remontoitu vuosien varrella.
Rannan omistus
Ei rantaa
Asunnossa sauna
Kyllä
Asumistyyppi
Omistus
Vuokrattu
Ei
Palvelut
lähin (etäisyys n. 0.3 km), lähin (etäisyys n. 0.15 km), lähin (etäisyys n. 0.1 km)

Hinta

Velaton hinta
165 000 €
Myyntihinta
165 000 €
Neliöhinta
381,68 € / m²
Lainalaskuri

Muut maksut

Lämmityskustannukset
Öljyn kulutus n. 3500 l/v
Keskimääräinen sähkönkulutus
Sähkö oman kulutuksen mukaan
Kiinteistövero
n. 503 €/v

Talon ja tontin tiedot

Uudiskohde
Ei
Rakennuksen tyyppi
Omakotitalo
Rakennusvuosi
1952
Rakennusvuoden lisätiedot
1952, käyttöönottovuosi: 1952
Kerroksia
3
Rakennusmateriaali
Puu, tiili
Kattomateriaali
Pelti
Kattotyyppi
Harjakatto
Energialuokka
Ei lain edellyttämää energiatodistusta
Ilmastointijärjestelmä
Painovoimainen
Tontin koko
2 288 m²
Kaavatilanne
asemakaava
Liikenneyhteydet
rautatieasema (etäisyys n. 0.5 km)
Muut rakennukset
Tynnyrisauna, grillikota, leikkimökki, puutarhavaja, kasvihuone
Lämmitys
Öljy, Ilmalämpöpumppu
Lisätietoja lämmityksestä
Öljylämmitys, 2x 1500 l muovia, öljysäiliön sijainti kellarissa, kattilan valmistumisvuosi 1999, ilmalämpöpumppu 4kpl (2kpl v. 2022 ja 2kpl v. 2015), vesikiertoinen patterilämmitys, vesikiertoinen lattialämmitys s, psh, oleskelutila, sähköinen lattialämmitys asuinkrs wc:ssä
Tontin omistus
Oma

Tilat ja materiaalit

Ominaisuudet
Irralliset kaapit, kiinteät valaisimet, sälekaihtimet, naulakko, pyykinpesukone 2kpl, kuivausrumpu 2kpl, lämminvesivaraaja 80 l kesäaikana tuotettu lämminvesi, jätesäiliö, TV-antenni

Tekniset tiedot

Puhtaanapito
Oman kulutuksen mukaan.
Vesi ja jätevesi
Oman kulutuksen mukaan 5,48 €/m³ + perusmaksu
Viemäröinti
Kunnan
Käyttövesi
Kunnan + vanha rengaskaivo pihakasteluun
Lainalaskuri