Tarjouskauppakohde

600 000 €104 m²

Vehkamäki 1, Mankkaa, Espoo5h, k, s, kph, khh, wc, var

Myyntihinta
600 000 €
Asuinpinta-ala
104 m²
Huoneita
5
Rakennusvuosi
2019
Rakennuksen tyyppi
Erillistalo
Kaupunginosa
Mankkaa
Kaupunki
Espoo

Unelmien koti Mankkaalla – Laadukasta asumista Espoossa

Tervetuloa tutustumaan tähän upeaan erillistaloon Espoon sydämessä, osoitteessa Vehkamäki 1. Turvallinen ja tyylikäs koti tarjoaa ainutlaatuisen mahdollisuuden asettua viihtyisälle alueelle, jossa yhdistyvät rauhallinen sijainti ja erinomaiset yhteydet.

Tämä erillistalo on suunniteltu elämää varten ja tuntuu neliömääräänsä reilusti tilavammalta. Tilojen avaruus ja tarkkaan harkittu pohjaratkaisu luovat kodikkaan tunnelman, joka hurmaa ensinäkemältä. Asunto tarjoaa erinomaiset puitteet arjen sujuvuudelle ja yhteisille hetkille. Aurinkoinen kattoterassi sekä suojainen piha terassin ja porealtaan kera tarjoaa keidaspaikkoja lapsista aikuisiin. Autokatos sähköauton latausasemalla tarjoaa autollesi parhaat olosuhteet.

Sijainti halutulla Mankkaan alueella on ihanteellinen perheelle tai laatua arvostavalle asukkaalle. Alue on tunnettu viihtyisyydestään, ja kaikki tarvittavat palvelut ovat lähellä. Tässä kodissa yhdistyvät laatu ja sijainti, joka tekee asumisesta nautinnollista päivästä toiseen.

Nyt on erinomainen aika tehdä päätös uudesta kodista, joka kantaa pitkälle tulevaisuuteen.

Tutustu kohteeseen tarkemmin katsomalla myös videoesittely, joka avaa kodin tunnelmaa ja tiloja entistä paremmin.

Tule ihastumaan tähän kokonaisuuteen paikan päälle!

Tarjouskauppakohde

Tarjouskaupassa tarjoukset tehdään lähtöhinnasta ylöspäin.

Lähtöhinta
600 000 €
Uusin kirjallinen tarjous
-

Perustiedot

Sijainti
Vehkamäki 1, 02180 Espoo
Kaupunginosa
Mankkaa
Kohdenumero
54160191
Asuinpinta-ala
104 m²
Tontin pinta-ala
324 m²
Kokonaispinta-ala
161 m²
Pinta-alojen lisätiedot
Tarkistusmitattu. Päärakennuksen rakennusluvan mukainen pinta-ala: 161 m²
Mikä pinta-ala on kyseessä: Kokonaisala 161 m2
kerrosala 94 m2
Tarkastusmitattu asuinpinta-ala 104 m2, autokatos 14,4 m2, kattoterassi/parveke 26 m2
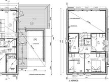
Huoneiston kokoonpano
5h, k, s, kph, khh, wc, var
Huoneita
5
Kunto
Hyvä
Kunnon lisätiedot
Vain 5 vuotta vanha Ainoa koti tarjoaa turvallista ja tyylikästä asumista kymmeniksi vuosiksi.
Lisätietoa vapautumisesta
Muu ehto. Sopimuksen mukaan / 1-3 kk kaupanteosta.
Keittiön varusteet
Varusteet: jääkaappipakastin, integroitu astianpesukone. Liesi: induktioliesi, erillisuuni, liesituuletin suodattimella, mikroaaltouuni. Tyylikäs tilaan harmonisesti integroituva avokeittiö.
Parveke
Kyllä
Parvekkeen lisätiedot
Kattoterassi 26 m2 autokatoksen päällä. Parvekkeen ilmansuunta: Etelä, Länsi, Itä, Kaakko, Lounas, Luode
Terassin kuvaus
Asunnossa on terassi. Terassin ilmansuunta: Itä, Etelä. 2-tasoinen suuri terassi, ylemmällä tasolla ulkoporeallas, alemmalla ruokailupatio
Kylpyhuoneen varusteet
Varusteet: lattialämmitys, kiinteät valaisimet, pesukoneliitäntä. Alakerran kph saunan yhteydessä, jossa 2 sadesuihkua. Samassa tilassa on kodinhoitotila.
Yläkerran kph: suihku, suihkuseinä, allas, kylpyhuonekalusteet, valaistu peili, bide-suihku. WC: Alakerran wc. Varusteet: lattiaan asennettu WC, bidee, lattialämmitys, peili, pesuallas, allaskaappi
Tehdyt remontit
Ilmastointilaitteen kondenssiovesiputken virheellinen asennus aiheutti rakennusvaiheessa 2019 vesivahingon. Yläkerran ja alakerran märkätilat korjattiin huolellisesti rakentajan toimesta. Dokumentaatio on myyjällä. Mitään virhettä asumisaikana ei ole havaittu.
Rannan omistus
Ei rantaa
Asunnossa sauna
Kyllä
Saunan lisätiedot
Varusteet: sähkökiuas, LED-valaistus. Harvia pilarikiuas upotettuna lauderakenteeseen. Seinämateriaali: paneeliseinä. Lattiamateriaali: laattalattia
Asumistyyppi
Omistus
Palvelut
Ruokakauppa: K-Supermarket 150 m
Koulu: Taavinkylän koulu 1,4 km
Mankkaanpuron koulu 1,8 km
Mankkaan koulu 1,9 km
Päiväkoti: Mankkaan päiväkoti 1,4 km
Purolan päiväkoti 1,6 km
Posti / palvelupiste: Postin noutopiste 1,5 km
Terveysasema: Kilon terveysasema 3,2 km. Kirjasto: Laajalahden kirjasto 2,5 km
Lisätiedot
Asunnolla on kaksi erillistä sähköauton latausasemapaikkaa, toinen autokatoksessa, toinen vieressä oleva pihapaikka. Talo on luotettava Ainoakoti. DEN on Suomen suurin pientalorakentaja ja tämän kohteen rakennuttaja. Ainoakoti on DEN Finlandin talobrändi. Rakennuttajan 10-vuotisvastuu tarkoittaa, että uudisrakennuksen rakennuttaja (perustajaosakas) vastaa virheistä 10 vuoden ajan rakennuksen valmistumisesta.
Kohde on
Kiinteistö
Kiinteistötunnus
49-26-70-1
Postitoimipaikka
Espoo
TV-palvelut
Kaapeli-TV, Elisa TV
Tietoliikennepalvelut
Kiinteä laajakaistasaatavuus, Valokuitu, Sisäverkon kaapelointi, Elisa Laajakaista 1000/1000 Mb (edellyttää oman sopimuksen)
Linkit

Hinta

Myyntihinta
600 000 €
Lainalaskuri

Muut maksut

Lämmityskustannukset
3 223 € / viimeinen kokonainen kalenterivuosi
Muut kustannukset
Veden kulutus (4 hlö) on ollut noin 130 m3/vuosi. Sähkön kokonaiskulutus: 26374 kWh / viimeinen kokonainen kalenterivuosi. Kulutus sisältää kahden sähköauton latauksen sekä porealtaan jatkuvan valmiustilan. Sähköliittymän koko 3 x 35 A!
Kiinteistövero
813.52 € / viimeinen kokonainen kalenterivuosi

Talon ja tontin tiedot

Rakennuksen tyyppi
Erillistalo
Rakennusvuosi
2019
Rakennuksen käyttöönottovuosi
2020
Rakennusmateriaali
Pääasiallinen rakennusmateriaali: Puu. Puurunkoiset seinärakenteet. Seinäpinnat ovat levyrappausta. Julkisivut on pinnoitettu rappauslevyjen päälle tehtävällä ohutrappauksella.
Kattomateriaali
Bitumikate
Kattotyyppi
Pulpettikatto. Vesikatteena on bitumikermikate.
Energialuokka
B2018
Ilmastointijärjestelmä
Koneellinen poisto, Koneellinen tulo, Lämmöntalteenotto
Tontin koko
324 m²
Kaavoitustiedot
Asemakaava. Espoon Kaupunki
Liikenneyhteydet
Linja-autopysäkki 50 m
Lisätietoa rakennusoikeudesta
Kaikki vapaa rakennusoikeus on käytetty. Rakennuslupa kiinteistölle saatu 21.8.2018 Käyttämätön rakennusoikeus: 0 m²
Muut rakennukset
Autokatos: Lisätietoa rakennuksesta: Talon yhteydessä on autokatos, jonka päällä on kattoterassi/parveke. Rakennusluvan/rakentamisluvan myöntämisvuosi: 2018 Rakentamisvuosi: 2019 Käyttöönottovuosi: 2020 Käyttöönottotarkastus (osittainen loppukatselmus): On tehty hyväksytysti Lopputarkastus (loppukatselmus): On tehty hyväksytysti Lopputarkastuksen vuosi: 2021 Lisätiedot: Autokatos on varustettu sähköauton latausasemalla, samoin vieressä oleva pihapaikka.
Pihan kuvaus
Suojaisa piha, josta noin puolet on nurmi- ja puolet terassialuetta., ulkoporeallas
Lämmitys
Poistoilmalämpöpumppu, Ilmalämpöpumppu
Lisätietoja lämmityksestä
Lämmitystapa: Poistoilmalämpöpumppu. Lämmönjakotapa: Vesikiertoinen lattialämmitys, Ilmalämpöpumppu. Lisätietoa asunnon lämmityksestä: Poistoilmalämpöpumppu: Nilan poistoilmalämpöpumppu. Sähkön kokonaiskulutus: 26374 kWh / viimeinen kokonainen kalenterivuosi. Kulutus sisältää kahden sähköauton latauksen sekä porealtaan jatkuvan valmiustilan. Sähköliittymän koko 3 x 35 A!
Tontin omistus
Oma

Tilat ja materiaalit

Muut tilat
Kodinhoitohuone: keskuspölynimuri, pyykkikaapit, pesuallas, lattialämmitys, pesukoneliitäntä. Kodinhoitotila saunaosaston yhteydessä.
Keittiön lattia
parkettilattia
Keittiön seinä
maalattu seinä
Makuuhuoneen lattia
parkettilattia
Makuuhuoneen seinät
maalattu seinä
Lisätietoja makuuhuoneen varusteista
1 mh alakerrassa, 3 yläkerrassa. Yläkerran makuuhuoneen yhteydessä on suuri kattoterassi.
Kylpyhuoneen lattia
laattalattia. WC: laattalattia
Kylpyhuoneen seinät
kaakeliseinä. WC: maalattu seinä
Olohuoneen varusteet
Korkea olohuone, jossa upeat sähkötoimiset verhot
Olohuoneen lattia
parkettilattia
Olohuoneen seinät
maalattu seinä
Ominaisuudet
Kiinteät valaisimet Sälekaihtimet Keskuspölynimuri Lämminvesivaraaja Istutukset Ulkoporeallas Sähköauton latauspiste x 2 Hälytinjärjestelmä. Sähköliittymä, Kaapeli-TV tai tietoliikenneliittymä. Sähköliittymä 3 x 35 A.
Muut materiaalit
Kodinhoitohuone: maalattu seinä, laattalattia

Tekniset tiedot

Vesi ja jätevesi
Kunnan vesijohto
Viemäröinti
Kunnan
Lainalaskuri