1 320 € / kk97 m²

Rasinkatu 5, Koivukylä, Vantaa4H+K

Vuokra/kk
1 320 € / kk
Asuinpinta-ala
97 m²
Huoneita
4
Kerros
3 / 3
Rakennusvuosi
1972
Rakennuksen tyyppi
Kerrostalo
Kaupunginosa
Koivukylä
Kaupunki
Vantaa

Kun vuokraat tämän kodin, sopimus on toistaiseksi voimassa oleva vuokrasopimus, jossa minimiasumisaika on vain 6 kk.

When you rent this home, the contract is an open-ended lease with a minimum stay of only 6 months.


Vuokrataan tilava neliö lasitetulla parvekkeella Koivukylästä!
 

Tämä Lumo-koti sijaitsee aivan Koivukylän hyvien palveluiden ja yhteyksien tuntumassa. Liikuit sitten autolla tai julkisilla kulkuvälineillä, tästä kohteesta on helppo liikkua. Ruokakaupat ja apteekki sijaitsevat vain pienen kävelymatkan päässä.

Olette sitten omasta turvasatamasta haaveileva perhe tai kimppakotia etsivät kaverukset, tämä saattaisi olla etsimänne ratkaisu. Asunto on helposti sisustettavissa oman maun ja tyylin mukaan.

Kodissa on harmaa muovimatto ja pääosin tapetoidut seinät. Erillinen wc on remontoitu ja siinä on valkoinen laatta seinissä ja lattiassa on harmaata massaa. Kylpyhuone on laatoitettu vaaleansinisellä sävyllä, pyykipesukoneeelle löytyy liitännät.

Keiittiössä on valkoiset kaapistot puureunuksin ja metallivetimin, välitalaatat ovat vaaleansiniset sekä työtasot puun sävyiset. Astianpesukoneelle on mahdollisuu. Luksusta arkeen tuo vaatehuone ja lasitettu parveke.

Vuokraa tämäkin koti verkkokaupastamme!

Rautkalliontie 1
Rautkalliontie 1 sijaitsee Vantaan Koivukylässä hyvien kulkuyhteyksien lähellä. Taloissa A-B, F-G, D-E ei ole hissiä, taloissa C, J-L on hissi. Pesutupa ja kerhohuone sijaitsevat D-E –talossa, Rasinkatu 5:ssä.

Tämä Lumo-talo sijaitsee Koivukylässä noin 500 metrin päässä asemasta. Palvelut sekä kulkuyhteydet ovat siis helposti saatavilla. Sijainti pääradan varressa takaa, että liikkuminen paikasta toiseen on mutkatonta. Aluetta ympäröivät laajat metsäalueet ja Sipoonkorven kansallispuisto, joten Koivukylässä sinulla on runsaasti luontoa ympärilläsi.
Lumo-asukkaana saat enemmän
Lumo-vuokrakodit tarjoavat turvallista ja ympäristöystävällistä asumista sekä parhaat asumisen palvelut.
Saat Lumo-palvelut ja Lumo-asukkaan edut käyttöösi My Lumo -palvelun kautta. Tutustu tarkemmin: lumo.fi/palvelut

Vuokraa nyt!

Helposti paras Lumo-koti: vuokravakuus 0 €, nopea netti sisältyy vuokraan, lemmikit tervetulleita, monipuoliset asukasedut ja lisäpalvelut. Tee siitä omasi!

Vuokraa tämä koti

Perustiedot

Sijainti
Rasinkatu 5, 01360 Vantaa
Kaupunginosa
Koivukylä
Kerros
3 / 3
Asuinpinta-ala
97 m²
Huoneiston kokoonpano
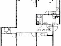
4H+K
Huoneita
4
Kunto
Hyvä
Kunnon lisätiedot
Hyvä
Lisätietoa vapautumisesta
Heti vapaa
Parveke
Kyllä
Asunnossa sauna
Ei
Asumistyyppi
Vuokra
Lemmikkieläimet sallittu
Kyllä
Palvelut
Lue lisää Lumo-palveluista: https://lumo.fi/palvelut/
Muut ehdot
Asunto on savuton. Tupakointi asunnossa ja parvekkeella/asuntopihalla on kielletty.
Lisätiedot
Lasitettu parveke, Vaatehuone, Lämmin irtainvarasto, Erillinen WC, Kylpyhuone ilman WC:tä, Henkilölukuun perustuva vesimaksu, Savuton asunto, Vuokraan sisältyvä DNA laajakaista 50 Mbit/s

Hinta

Vuokra/kk
1 320 € / kk
Vuokra-aika
Toistaiseksi. Sopimuksen minimikesto 6kk

Muut maksut

Vesimaksu
27 € / kk
Vesimaksun lisätiedot
hlö/kk
Muut kustannukset
Autopaikka- ja talon saunamaksut peritään erillisen hinnaston mukaisesti.

Talon ja tontin tiedot

Uudiskohde
Ei
Taloyhtiön nimi
Rautkalliontie 1
Rakennuksen tyyppi
Kerrostalo
Rakennusvuosi
1972
Kerroksia
3
Hissi
Ei
Taloyhtiössä on sauna
Ei
Energialuokka
F
Energiatodistus
Kyllä
Lisätietoja talosta
Siirry talosivulle
Tontin omistus
Oma

Tilat ja materiaalit

Yhteiset tilat
Pesutupa, Kerhohuone, Talouskellari