530 € / kk22,5 m²

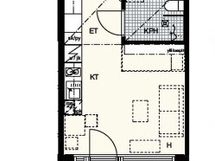
Rubiinikehä 4 B, Kivistö, Vantaa1h+kt+kph+parv.

Vuokra/kk
530 € / kk
Vapautuu
01.02.2026
Asuinpinta-ala
22,5 m²
Huoneita
1
Kerros
1 / 5
Rakennusvuosi
2020
Rakennuksen tyyppi
Kerrostalo
Kaupunginosa
Kivistö
Kaupunki
Vantaa

Parvekkeellinen ensimmäisen kerroksen yksiö Kivistöstä!

Tämän kompaktin kodin pohjaratkaisu on selkeä ja tilaan mahtuu sängyn lisäksi mm. pieni ruokapöytä ja vaikka nojatuoli. Asunnon lattiat ovat vaaleaa parkettia ja seinät raikkaan valkoiset. Keittiössä on mukavasti säilytystilaa ja astianpesukone helpottamassa arkea. Vaatteille kaappitilaa on eteisen yhteydessä ja huoneen puolella olevien yläkaappien ansiosta hyvin. Kylpyhuoneessa on paikka pyykinpesukoneelle tai vaikka pesutornille. Tilava lasitettu parveke on mahdollista kalustaa lisähuoneeksi. Tämä on katutason asunto, jonka parvekeikkunateippaukset suojaavat näkyvyyttä hyvin.

Huoneistolle kuuluu oma häkkivarasto.

Läheltä löytyy muutama ruokakauppa, ravintoloita, Kivis kauppakeskus sekä loistavat ulkoilumahdollisuudet. Kehärata vie sinut nopeasti ympäri pääkaupunkiseutua.

Vakuuden voit vaihtaa Takuuvapaa-palveluumme, jonka hinta on 20 eur/kk + avausmaksu 39 eur. Vuokrasopimus: Irtisanomisajan ensimmäinen mahdollinen alkamisajankohta on 11 kk hallinnan luovutuksesta.

Mikäli kiinnostuit, ole hyvä ja täytä lyhyt hakemus: www.asuntopehtoori.fi/hakemus

Perustiedot

Sijainti
Rubiinikehä 4 B, 01700 Vantaa
Kaupunginosa
Kivistö
Kohdenumero
21945832
Kerros
1 / 5
Asuinpinta-ala
22,5 m²
Kokonaispinta-ala
22,5 m²
Pinta-alojen lisätiedot
toimeksiantajan ilmoittama
Huoneiston kokoonpano
1h+kt+kph+parv.
Huoneita
1
Kunto
Hyvä
Vapautuu
01.02.2026
Lisätietoa vapautumisesta
01.02.2026 mennessä
Keittiön varusteet
Liesi: keraaminen, erillisuuni. Kylmäsäilytys: jääkaappi/pakastin. Varustus: liesikupu, astianpesukone.
Parveke
Kyllä
Parvekkeen lisätiedot
Tyyppi: lasitettu.
Kylpyhuoneen varusteet
Varustus: suihkuseinä, pesukoneliitäntä, wc-istuin, suihku.
Säilytystilat
kellarikomero
Asumistyyppi
Vuokra
Vuokralaistyyppi
Päävuokralainen
Muut ehdot
Tupakointi kielletty. Laaja kotivakuutus vaaditaan. Luottotiedot tarkastetaan.

Hinta

Vuokra/kk
530 € / kk
Lisätietoa vakuudesta
Kahden kuukauden vuokraa vastaava.
Vuokrankorotusperusteet
muu peruste: Elinkustannusindeksi tai enintään 5 %.
Vuokra-aika
Toistaiseksi voimassa oleva. Ensimmäinen mahdollinen irtisanomisajan alkamisajankohta on 11 kuukauden kuluttua vuokrasuhteen alkamisesta.

Muut maksut

Vesimaksu
25 € / kk
Vesimaksun lisätiedot
oma mittari

Talon ja tontin tiedot

Uudiskohde
Ei
Taloyhtiön nimi
Asunto Oy Vantaan Morelli
Rakennuksen tyyppi
Kerrostalo
Rakennusvuosi
2020
Huoneistojen lukumäärä
66
Kerroksia
5
Hissi
Kyllä
Taloyhtiössä on sauna
Kyllä
Energialuokka
C2013
Energiatodistus
Kyllä
Kiinteistön antennijärjestelmä
kaapeli-tv
Kiinteistönhoito
huoltoyhtiö
Lämmitys
Kaukolämpö

Tilat ja materiaalit

Yhteiset tilat
sauna, urheiluvälinevarasto, väestönsuoja, Huoneistokohtaiset varastot, lastenvaunuvarasto.
Pintamateriaalit
Lattia: Keittiössä: parketti. Pesutiloissa: laatta. Olohuoneessa: parketti. Seinät: Keittiössä: maalattu. Pesutiloissa: kaakeli. Olohuoneessa: maalattu.