1 050 € / kk72 m²

Peltolankaari 3, Peltola, Oulu3H+K+S

Vuokra/kk
1 050 € / kk
Asuinpinta-ala
72 m²
Huoneita
3
Kerros
7 / 7
Rakennusvuosi
1998
Rakennuksen tyyppi
Kerrostalo
Kaupunginosa
Peltola
Kaupunki
Oulu

Peltolan suositulta alueelta viihtyisä ylimmän 7./7.-kerroksen kolmio. Lähellä mm. Raksilan marketit ja Oys, keskustaan helppo kulku esim. citybussilla. Oma sauna ja parveke lisäävät asumismukavuutta.

7-kerroksinen hissillinen asuinkerrostalo. Asuntojen koot vaihtelevat saunallisista yksiöistä kaksioihin ja kolmioihin. Parvekkeet mukavasti omassa rauhassaan.

Peltolan kaupunginosa sijaitsee parin kilometrin etäisyydellä Oulun ydinkeskustasta Kajaanintien varressa, rauhallisella alueella. Marketit, koulu ja keskussairaala on lähellä. Kävelymatkan päässä Oulun joen rannalla uimaranta. Hyvät kulkuyhteydet eri liikennevälineillä, helppo kulku myös moottoritielle.

Tupakointi asunnoissamme: Kaikki uudet asuinkiinteistömme ovat olleet jo pitkään täysin savuttomia heti valmistumisestaan lähtien. Muutumme vähitellen savuttomiksi kaikkien asuntojemme osalta: uusien asukkaiden sopimukset kieltävät tupakoinnin huoneistoissa ja parvekkeilla 1.1.2021 alkaen. Kiinteistö ei ole välttämättä savuton muiden huoneistojen osalta, koska niissä voi olla vanhoja sopimuksia, joissa ei ole tupakointikieltoa.

Perustiedot

Sijainti
Peltolankaari 3, 90230 Oulu
Kaupunginosa
Peltola
Kerros
7 / 7
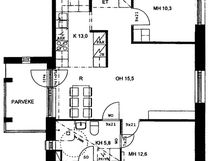
Asuinpinta-ala
72 m²
Huoneiston kokoonpano
3H+K+S
Huoneita
3
Kunto
Hyvä
Lisätietoa vapautumisesta
heti vapaa
Parveke
Kyllä
Asunnossa sauna
Kyllä
Asumistyyppi
Vuokra
Lisätiedot
Tupakointi sallittu: Ei.

Hinta

Vuokra/kk
1 050 € / kk
Lisätietoa vakuudesta
250

Muut maksut

Vesimaksu
13 € / kk

Talon ja tontin tiedot

Taloyhtiön nimi
Peltolankaari 3
Rakennuksen tyyppi
Kerrostalo
Rakennusvuosi
1998
Rakennusvuoden lisätiedot
1998
Kerroksia
7
Hissi
Kyllä
Taloyhtiössä on sauna
Ei
Rakennusmateriaali
Betoni
Energialuokka
E
Energiatodistus
Kyllä
Kiinteistönhoito
Lassila & Tikanoja, Oulu
Isännöinti
Asuntosäätiö - Isännöinti
Lämmitys
Kaukolämpö
Lisätietoja lämmityksestä
Kauko
Lisätietoja talosta
Siirry talosivulle