1 095 € / kk69,5 m²

Kolunkatu 1 b, Keskusta, Nokia3h+kt+s

Vuokra/kk
1 095 € / kk
Vapautuu
Heti vapaa
Asuinpinta-ala
69,5 m²
Huoneita
3
Rakennusvuosi
2023
Rakennuksen tyyppi
Kerrostalo
Kaupunginosa
Keskusta
Kaupunki
Nokia

Kohde sijaitsee asemanseudulla, joka on yksi kolmesta painopistealueesta Nokian kaupungin keskustavisiossa. Nokian asema on lyhyen matkan päässä ja sieltä hyvät yhteydet vaikka Tampereen keskustaan. Nokian keskustan palvelut ovat kävelymatkan päässä ja koulu ja päiväkoti ovat molemmat alle kilometrin matkan takana

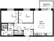
Tässä kolmiossa on mielestäni erinomainen pohjaratkaisu ja pyykkihuollolle on jopa oma reilu tilansa, johon mahtuu pyykinpesukone sekä tarvittaessa myös kuivausrumpu. Asunnon varusteluun kuuluu laminaattilattiat, maalatut seinät, laatoitettu kylpyhuone, oma sauna sekä lasitettu parveke. Keittiön kruunaa tilanjakajana toimiva saareke, kodinkoneina erillisuuni, induktioliesitaso, liesituuletin, astianpesukone sekä jääkaappipakastin. Arkea helpottaa erillinen pikku vessa, kylpyhuoneen yhteydessä olevan vessan lisäksi.

Asuntoon kuuluu oma häkkivarasto ja yhteistiloina ulkoiluvälinevarasto sekä pyörävarasto. Sähkötolpallisia autopaikkoja tai autokatospaikka löytyy myös erikseen vuokrattavaksi.

Perustiedot

Sijainti
Kolunkatu 1 b, 37100 Nokia
Kaupunginosa
Keskusta
Asuinpinta-ala
69,5 m²
Kokonaispinta-ala
69,5 m²
Huoneiston kokoonpano
3h+kt+s
Huoneita
3
Kunto
Hyvä
Vapautuu
Heti vapaa
Keittiö
Keittiö
Vuokrataan kalustettuna
Ei
Asumistyyppi
Vuokra
Vuokralaistyyppi
Päävuokralainen
Lemmikkieläimet sallittu
Ei
Määräaikainen vuokrakohde
Ei
Muut ehdot
Vuokralaiselta toivotaan puhtaita luottotietoja, yhden kuukauden sopimusvakuutta sekä laajaa kotivakuutusta.
Postitoimipaikka
Nokia

Hinta

Vuokra/kk
1 095 € / kk

Muut maksut

Vesimaksun lisätiedot
Vesiennakko 20e/hlö/kk, joka tasataan kulutuksen mukaisesti vuosittain
Keskimääräinen sähkönkulutus
Oma sähkösopimus.

Talon ja tontin tiedot

Taloyhtiön nimi
Asunto Oy Nokian Kolunkatu 1
Rakennuksen tyyppi
Kerrostalo
Rakennusvuosi
2023
Taloyhtiössä on sauna
Ei
Kiinteistönhoito
Nokian Kiinteistöhuolto 0102708050
Isännöinti
Asuntopehtoori Isännöinti Oy / Hanna Kyrölä Vaihde: 0447504321. Arkisin klo. 9-16.
Lämmitys
Kaukolämpö
Lisätietoja lämmityksestä
Kaukolämpö