729 € / kk38 m²

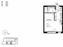
Sammonkatu 3-5 B, Keskusta, Lappeenranta1H+KT

Vuokra/kk
729 € / kk
Asuinpinta-ala
38 m²
Huoneita
1
Kerros
4 / 6
Rakennusvuosi
2016
Rakennuksen tyyppi
Kerrostalo
Kaupunginosa
Keskusta
Kaupunki
Lappeenranta

Kun vuokraat tämän kodin, sopimus on toistaiseksi voimassa oleva vuokrasopimus, jossa minimiasumisaika on vain 6 kk.

When you rent this home, the contract is an open-ended lease with a minimum stay of only 6 months.


Vuokrataan kompakti yksiö Lappeenrannan ydinkeskustasta! 

Tämä näppärä Lumo-koti on varustettu kätevällä pohjaratkaisulla ja sopii loistavasti yksinasuvalle tai jopa pariskunnalle! Ranskalaiselta parvekkeelta pääsette seuraamaan Sammonkadun vilskettä. Lasiseinä jakaa alkovin muusta tilasta ja antaa luonnon valoa alkovin puolelle. Säilytystilaa on asunnossa hyvin. Kaikki palvelut ovat äärellä.

Ikkunoissa on sälekaihtimet. Keittiön kaapistot ovat vaaleat, välitila on laatoitettu. Varustetasoon kuuluu keraaminen liesi, jääpakastinkaappi sekä astianpesukone. Kylpyhuone on laatoitettu vaalealla ja tummalla laatalla. Pyykinpesukoneelle on tilavaraus.

Kuvat on otettu vastaavasta asunnosta sen ollessa uusi.

Vuokraa tämäkin koti verkkokaupastamme!

Sammonkatu 3-5

Kuusikerroksinen kerrostalo Lappeenrannan keskustassa. Talossa on 52 korkealaatuista Lumo-kotia monenlaiseen tarpeeseen, asuntoja on yksiöstä neliöön.

Autopaikat sijaitsevat kellarikerroksen pysäköintihallissa. Lisäksi talosta löytyy yhteiskäyttöön tarkoitettu saunaosasto, ulkoiluvälinevarasto, pesutupa ja kuivaushuone. Huoneistokohtaiset irtainvarastot ovat kellarikerroksessa. Leikki- ja oleskelualue sijaitsee sisäpihalla alimman asuinkerroksen tasossa.

Tämä Lumo-talo sijaitsee aivan ydinkeskustassa monipuolisten palveluiden ja liikenneyhteyksien äärellä. Hissillä pääsee helposti liikkumaan talossa, mm. ruokakauppa löytyy alakerrasta, joten kauppakassien kantaminen on helppoa. Lähistön ravintoloissa ja vetykahviloissa on helppo käydä ruokailemassa tai kahvilla.
Lumo-asukkaana saat enemmän
Lumo-vuokrakodit tarjoavat turvallista ja ympäristöystävällistä asumista sekä parhaat asumisen palvelut.
Saat Lumo-palvelut ja Lumo-asukkaan edut käyttöösi My Lumo -palvelun kautta. Tutustu tarkemmin: lumo.fi/palvelut

Vuokraa nyt!

Helposti paras Lumo-koti: vuokravakuus 0 €, nopea netti sisältyy vuokraan, lemmikit tervetulleita, monipuoliset asukasedut ja lisäpalvelut. Tee siitä omasi!

Vuokraa tämä koti

Perustiedot

Sijainti
Sammonkatu 3-5 B, 53100 Lappeenranta
Kaupunginosa
Keskusta
Kerros
4 / 6
Asuinpinta-ala
38 m²
Huoneiston kokoonpano
1H+KT
Huoneita
1
Kunto
Hyvä
Kunnon lisätiedot
Hyvä
Lisätietoa vapautumisesta
Heti vapaa
Parveke
Kyllä
Parvekkeen lisätiedot
Ranskalainen parveke
Asunnossa sauna
Ei
Asumistyyppi
Vuokra
Lemmikkieläimet sallittu
Kyllä
Palvelut
Lue lisää Lumo-palveluista: https://lumo.fi/palvelut/
Muut ehdot
Asunto on savuton. Tupakointi asunnossa ja parvekkeella/asuntopihalla on kielletty.
Lisätiedot
Ranskalainen parveke, Alkovi, Lämmin irtainvarasto, Kylpyhuone + WC, Henkilölukuun perustuva vesimaksu, Astianpesukone, Savuton asunto, Vuokraan sisältyvä DNA laajakaista 50 Mbit/s

Hinta

Vuokra/kk
729 € / kk
Vuokra-aika
Toistaiseksi. Sopimuksen minimikesto 6kk

Muut maksut

Vesimaksu
27 € / kk
Vesimaksun lisätiedot
hlö/kk
Muut kustannukset
Autopaikka- ja talon saunamaksut peritään erillisen hinnaston mukaisesti.

Talon ja tontin tiedot

Uudiskohde
Ei
Taloyhtiön nimi
Sammonkatu 3-5 B
Rakennuksen tyyppi
Kerrostalo
Rakennusvuosi
2016
Kerroksia
6
Hissi
Kyllä
Taloyhtiössä on sauna
Kyllä
Energialuokka
C_2018
Energiatodistus
Kyllä
Tontin omistus
Oma

Tilat ja materiaalit

Yhteiset tilat
Pesutupa, Talosauna