989 € / kk75 m²

Yötarhantie 2 c, Jynkkä, Kuopio3h+k

Vuokra/kk
989 € / kk
Vapautuu
Heti vapaa
Asuinpinta-ala
75 m²
Huoneita
3
Kerroksia
2
Rakennusvuosi
1986
Rakennuksen tyyppi
Paritalo
Kaupunginosa
Jynkkä
Kaupunki
Kuopio

KAMPANJATARJOUS: Kahden viikon alennus vuokrasta ja vakuus 0 €! Vakuudeton sopimus edellyttää puhtaita luottotietoja. Kampanjat koskevat vain uusia sopimuksia. Kampanjoita ei voi yhdistää toisiinsa tai muihin tarjouksiin. Kampanjasopimuksen ensimmäinen mahdollinen irtisanomispäivä on 5 kk vuokrasopimuksen alkamisesta. Tervetuloa Jynkkään – rauhalliseen ja vehreään kaupunginosaan vain noin 10 minuutin ajomatkan päässä Kuopion keskustasta! Tämä perheystävällinen alue tarjoaa tilavia koteja, monipuoliset ulkoilumahdollisuudet sekä kattavat peruspalvelut aivan nurkan takana.

- Vakuus 250 euroa

- Lemmikit sallittu

- Vuokraan sisältyy DNA:n 50M laajakaistayhteys

Jynkkä on vanha asuntomessualue, jossa yhdistyvät luonnonläheisyys ja arjen helppous: valaistut lenkkipolut, uimaranta, koulut, päiväkodit, kirjasto ja kaupat löytyvät kaikki läheltä. Jynkkä on erityisesti lapsiperheiden ja rauhallista elinympäristöä arvostavien suosiossa. Tässä talossa asukkaiden yhteiskäytössä ovat pesutupa ja kuivaushuone, kerhohuone, talosauna sekä irtainvarasto.

Vuokrasopimus tehdään toistaiseksi voimassa olevaksi, jonka ensimmäinen irtisanomisaika 5 kk vuokrasopimuksen alkamisesta. Vakuus 250 euroa (luottotietomerkinnät voivat vaikuttaa vakuuden suuruuteen tai asunnon saantiin). Vesimaksu 25 €/hlö/kk. Vuokraan sisältyy DNA:n 50 M laajakaistayhteys. Vuokralainen tekee oman sähkösopimuksen ja sitoutuu ottamaan laajan koti- ja vastuuvakuutuksen. Taloyhtiö siirtyy vähitellen savuttomaksi. Uusien asukkaiden vuokrasopimukset kieltävät tupakoinnin huoneistoissa, huoneistojen parvekkeilla ja piha-alueilla. Huomioittehan, ettei kiinteistö ole vielä täysin savuton. Lemmikkieläimet sallittu.

Oikeudet muutoksiin pidätetään. ------------------------------------------------------------------------------------------ Welcome to Jynkkä – a peaceful, green neighbourhood located just a 10-minute drive from Kuopio city centre. This family-friendly area offers spacious homes, excellent outdoor recreation opportunities, and all essential services right around the corner.

Jynkkä is a former Finnish Housing Fair area where nature and everyday convenience come together. You’ll find illuminated jogging trails, a swimming beach, schools, daycares, a library, and shops all within easy reach. The neighborhood is especially popular among families with children and those who value a calm living environment.

Residents of this building have access to shared facilities including a laundry room and drying room, a club room, a communal sauna, and individual storage spaces.

Rental Terms: The rental agreement is valid until further notice, with the first possible termination date five months after the lease begins. The deposit is 250 € (credit history may affect the deposit amount or eligibility). Water is charged at 25 € per person per month. The rent includes a 50 Mbps broadband connection from DNA.

Tenants are responsible for their own electricity contract and must take out comprehensive home and liability insurance. Pets are allowed. The property is gradually transitioning to a smoke-free environment. The lease agreements for new residents prohibit smoking inside the apartment, balcony, and in the apartment's yard area. Please note that the property is not completely smoke-free.

The right to make changes is reserved.

Perustiedot

Sijainti
Yötarhantie 2 c, 70780 Kuopio
Kaupunginosa
Jynkkä
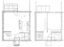
Kerroksia
2
Asuinpinta-ala
75 m²
Kokonaispinta-ala
75 m²
Huoneiston kokoonpano
3h+k
Huoneita
3
Vapautuu
Heti vapaa
Parveke
Ei
Terassin kuvaus
Terassi.
Asunnossa sauna
Ei
Asumistyyppi
Vuokra
Lemmikkieläimet sallittu
Kyllä
Muut ehdot
Tupakointi kielletty. Lemmikit sallittu
Lisätiedot
Huoneiston omistaa: Fusion Holdco Finland 2 Oy

Hinta

Vuokra/kk
989 € / kk
Vakuus
250 €

Muut maksut

Vesimaksun lisätiedot
25,00 €/hlö/kk
Rahoitusmuoto
vapaarahoitteinen

Talon ja tontin tiedot

Uudiskohde
Ei
Taloyhtiön nimi
Yötarhantie 2
Rakennuksen tyyppi
Paritalo
Rakennusvuosi
1986
Kerroksia
2
Hissi
Ei
Taloyhtiössä on sauna
Kyllä
Energialuokka
E
Energiatodistus
Kyllä

Tilat ja materiaalit

Yhteiset tilat
Yhteinen tila: Pesutupa.