529 € / kk58 m²

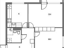
Tolkkilankatu 6, Eskolanmäki, Kouvola2h + k + p(l)

Vuokra/kk
529 € / kk
Asuinpinta-ala
58 m²
Huoneita
2
Kerros
6 / 6
Rakennusvuosi
1975
Rakennuksen tyyppi
Kerrostalo
Kaupunginosa
Eskolanmäki
Kaupunki
Kouvola

Kiva ylimmän kerroksen kulmahuoneisto

Nyt mahdollisuus tulla kivaan kaksioon asumaan Kouvolan Eskolanmäkeen... - kiva huone järjestys -iso keittiö johon mahtuu myös ruokapöytä - uudehkot: jääkaappipakastin yhdistelmä, keraaminen liesi -lasitettu parveke -ylin kerros kulmauksessa -avarat maisemat -ASUNTO ON VAPAA !

...lisää tietoja ja kuvia WWW.KOTIAVAIMET.NET

PS. kotisivujen kautta voit myös lähettää asuntohakemuksen, kiitoksia!

Perustiedot

Kaupunginosa
Eskolanmäki
Kohdenumero
24019046
Kerros
6 / 6
Asuinpinta-ala
58 m²
Kokonaispinta-ala
63 m²
Pinta-alojen lisätiedot
Asuinpinta-ala 58m2 + parveke n. 5m2
Huoneiston kokoonpano
2h + k + p(l)
Huoneita
2
Kunto
Hyvä
Kunnon lisätiedot
www.kotiavaimet.net
Lisätietoa vapautumisesta
1v määräaikainen jonka jälkeen muuttuu toistaiseksi !
Keittiö
Keittiö
Parveke
Kyllä
Lemmikkieläimet sallittu
Kyllä
Muut ehdot
Tupakointi kielletty, Kotivakuutus vaaditaan

Hinta

Vuokra/kk
529 € / kk
Lisätietoa vakuudesta
0€ KUN LUOTTOTIEDOT OK, muutoin 1-3 kk tapauskohtaisesti!
Vuokrauksen erityisehdot
www.kotiavaimet.net
Vuokra-aika
Määräaikainen 1.12.2025 - 30.11.2026

Muut maksut

Lämmityskustannukset
sis. vuokraan!
Vesimaksu
29 € / kk
Vesimaksun lisätiedot
29€/ hlö/ kk
Sähkömaksu
Vuokralainen tekee sähkösopimuksen

Talon ja tontin tiedot

Rakennuksen tyyppi
Kerrostalo
Rakennusvuosi
1975
Liikehuoneistojen lukumäärä
0
Kerroksia
6
Lisätietoja lämmityksestä
Vesikeskuslämmitys
Lisätietoja talosta
Siirry talosivulle
Tontin omistus
Oma