659 € / kk50 m²

Honkaharjuntie 14a B, Kukkumäki, Jyväskylä2h+kk

Vuokra/kk
659 € / kk
Vapautuu
Heti vapaa
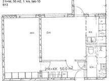
Asuinpinta-ala
50 m²
Huoneita
2
Kerros
1 / 3
Rakennusvuosi
1977
Rakennuksen tyyppi
Kerrostalo
Kaupunginosa
Kukkumäki
Kaupunki
Jyväskylä

KAMPANJATARJOUS: 500 € alennus vuokrasta ja vakuus 0 €! Vakuudeton vuokrasopimus edellyttää puhtaita luottotietoja. Kampanjat koskevat vain uusia sopimuksia. Kampanjoita ei voi yhdistää toisiinsa tai muihin tarjouksiin. Kampanjasopimuksen ensimmäinen mahdollinen irtisanomispäivä on 5 kk vuokrasopimuksen alkamisesta. Koti Kukkumäen rauhassa – mukavaa asumista lähellä palveluita: Honkaharjuntie 14a tarjoaa viihtyisää ja rauhallista asumista vehreällä alueella Kukkumäessä, vain kävelymatkan päässä Sairaala Novasta. Talossa on monipuolinen valikoima asuntoja yksiöistä kolmioihin – jokaisessa lasitettu parveke tuo lisämukavuutta arkeen.

Sijainti, joka tukee sujuvaa arkea: Jyväskylän keskustaan on noin kolme kilometriä, ja lähistöltä löytyvät päiväkoti, Kilpisen yhtenäiskoulu, oppimis- ja ohjauskeskus Valteri sekä Valorinteen liikuntakenttä. Ulkoilun ja harrastusten ystäville alue tarjoaa erinomaiset mahdollisuudet, ja Keljon Kauppakeskus palvelee monipuolisesti vain parin kilometrin päässä.

Yhteiset tilat hyvinvointiin ja arjen tueksi: Asukkaiden käytössä on maksuton pesutupa sekä kerhotila, jossa kuntoilulaitteet kutsuvat liikkumaan: kaikki mukavan ja toimivan asumisen puolesta.

Kiinteistöön on suunnitteilla käyttövesiputkien uusiminen, korjaustöiden aloitus on suunnitteilla loppukesästä 2026. Asunnossa voi asua korjauksien aikana, korjaustyöt järjestetään niin, että niistä aiheutuu mahdollisimman vähän asumishaittaa.

Vuokrasopimus tehdään toistaiseksi voimassa olevaksi, jonka ensimmäinen irtisanomisaika 5 kk vuokrasopimuksen alkamisesta. Vakuus 250 euroa (luottotietomerkinnät voivat vaikuttaa vakuuden suuruuteen tai asunnon saantiin). Vesimaksu 25 €/hlö/kk. Vuokraan sisältyy DNA:n 50 M laajakaistayhteys. Vuokralainen tekee oman sähkösopimuksen ja sitoutuu ottamaan laajan koti- ja vastuuvakuutuksen. Taloyhtiö siirtyy vähitellen savuttomaksi. Uusien asukkaiden vuokrasopimukset kieltävät tupakoinnin huoneistoissa, huoneistojen parvekkeilla ja piha-alueilla. Huomioittehan, ettei kiinteistö ole vielä täysin savuton. Lemmikkieläimet sallittu.

Oikeudet muutoksiin pidätetään.

--------------------------------------------------------------------------------------------------------------

Honkaharjuntie 14a – Comfortable Living in Peaceful Kukkumäki

Honkaharjuntie 14a offers cozy and quiet homes in the green Kukkumäki neighborhood, just a short walk from Sairaala Nova hospital. The building has a variety of apartments, from studios to three-room homes. Every apartment includes a glazed balcony, adding extra comfort and a chance to enjoy fresh air throughout the year.

A location that makes everyday life easier: Jyväskylä city center is about three kilometers away. Nearby you’ll find a daycare, Kilpinen school, the Valteri learning and guidance center, and the Valorinne sports field. The area is great for outdoor activities and hobbies, and Keljo Shopping Center is just a couple of kilometers away with many stores and services.

Shared spaces for well-being and daily support: Residents have access to a free laundry room and a club room with exercise equipment – all designed to support a comfortable and practical lifestyle.

The property is scheduled for domestic water pipe replacement, with renovation work planned to begin in late summer 2026. The apartment can be lived in during the renovation, and the work will be organized to minimize any inconvenience to residents.

Rental terms: • Rental agreement is valid until further notice, with the first possible termination 5 months after the start date • Deposit: 250 € (credit history may affect the deposit amount or eligibility) • Water fee: 25 € per person per month • Rent includes a 50M internet connection from DNA • Tenant makes their own electricity contract • Tenant must have home and liability insurance

Pets are welcome. The property is gradually transitioning to a smoke-free environment. The lease agreements for new residents prohibit smoking inside the apartment, balcony, and in the apartment's yard area. Please note that the property is not completely smoke-free.

All rights reserved to make changes.

Perustiedot

Kaupunginosa
Kukkumäki
Kerros
1 / 3
Asuinpinta-ala
50 m²
Kokonaispinta-ala
50 m²
Huoneiston kokoonpano
2h+kk
Huoneita
2
Vapautuu
Heti vapaa
Parveke
Kyllä
Asunnossa sauna
Ei
Asumistyyppi
Vuokra
Lemmikkieläimet sallittu
Kyllä
Muut ehdot
Tupakointi kielletty. Lemmikit sallittu
Lisätiedot
Asukas tekee sähkösopimuksen itse ja sitoutuu ottamaan laajan kotivakuutuksen. Huoneiston omistaa: Fusion Holdco Finland 2 Oy

Hinta

Vuokra/kk
659 € / kk
Vakuus
250 €

Muut maksut

Vesimaksun lisätiedot
25,00 €/hlö/kk
Rahoitusmuoto
vapaarahoitteinen

Talon ja tontin tiedot

Uudiskohde
Ei
Taloyhtiön nimi
Honkaharjuntie 14a
Rakennuksen tyyppi
Kerrostalo
Rakennusvuosi
1977
Kerroksia
3
Hissi
Ei
Taloyhtiössä on sauna
Kyllä
Energialuokka
F
Energiatodistus
Kyllä

Tilat ja materiaalit

Yhteiset tilat
Yhteinen tila: Pesutupa.