1 097 € / kk50,5 m²

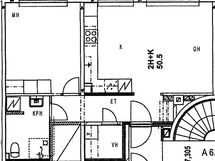
Lokkalantie 14, Munkkiniemi, Helsinki2h, avok, vh, kh

Vuokra/kk
1 097 € / kk
Asuinpinta-ala
50,5 m²
Huoneita
2
Kerros
3 / 8
Rakennusvuosi
1967
Rakennuksen tyyppi
Kerrostalo
Kaupunginosa
Munkkiniemi
Kaupunki
Helsinki

Munkkiniemi, 1.1.2026 vapautuva 50,5m2 kaksio rauhallisella sijainnilla hissitalon 3.krs, hyvin hoidetusta taloyhtiöstä, erinomaisen rauhallinen sijainti.

Huoneisto remontoitu linjasaneerauksen yhteydessä, mm. kylpyhuoneessa mukavuuslattialämmitys ja keittiössä laadukkaat kodinkoneet, tilava vaatehuone ja laminaattilattiat.

Loistavat ulkoilumaastot, meri ja julkiset palvelut sekä liikenneyhteydet kävelymatkan päässä.

Kiinnostuitko - täydennä ensin alustava, ei sitova asuntohakemus osoitteessa: https://www.vuokrahelsinki.fi/lomakkeet/ ja valitse välilehti "asuntohakemus". Näyttöaika sovitaan sopimuksen mukaan.

Ensimmäinen irtisanomisajan alkamispäivä 11kk sopimuksen alkamisesta, sopimussakko 2kk. Laaja koti- ja vastuuvakuutus. Ei tupakointia, lemmikit neuvoteltavissa. Puhtaat luottotiedot. Ei Airb'n'b. Vakuusmaksu 2kk vuokra (ei maksusitoumuksia).


AVAINSANAT

Ei huolta putkista, Ei suuria remontteja tulossa, Hyvät liikenneyhteydet, Palvelut lähellä

Perustiedot

Sijainti
Lokkalantie 14, 00330 Helsinki
Kaupunginosa
Munkkiniemi
Kohdenumero
1406648
Kerros
3 / 8
Asuinpinta-ala
50,5 m²
Tontin pinta-ala
1 729 m²
Kokonaispinta-ala
50,5 m²
Pinta-alan lähde
Yhtiöjärjestyksenmukainen pinta-ala
Huoneiston kokoonpano
2h, avok, vh, kh
Huoneita
2
Kunto
Hyvä
Kunnon lisätiedot
Hyvä
Lisätietoa vapautumisesta
01.01.2026
Keittiön varusteet
jääkaappi, pakastin, (korkeakiilto) kaapistot, keraaminen liesi, liesituuletin, astianpesukone. Kodinkoneet Bosch.
Parveke
Ei
Kylpyhuoneen varusteet
Peilikaappi (+allaskaappi), suihku, kääntyvät suihkuseinät, lattialämmitys, pesukoneliitäntä, kuivauspatteri
Säilytystilat
Kellarikomero, vaatehuone
Ikkunoiden suunta
itä, kaakko
Näkymät
kadulle, Näkymät Solnantielle
Tulevat remontit
ei tiedossa.
Tehdyt remontit
Taloyhtiön uudisrakennus, D-porras ja ullakkokerros, valmistunut 6/2019. v. 2016-17 linjasaneeraus (A, B, C-porras).
Asunnossa sauna
Ei
Asumistyyppi
Vuokra
Määräaikaisen vuokran tietoja
toistaiseksi voimassa oleva vuokrasopimus, johon määritellään ensimmäinen mahdollinen irtisanomisajan alkamispäivämäärä AhVl:ta poikkeavasti 5kk päähän sopimuksen alkamispäivästä, sopimussakkona 2kk vuokraa vastaava summa.
Palvelut
alueella (etäisyys n. 0.3 km), alueella (etäisyys n. 0.3 km), alueella (etäisyys n. 0.3 km)
Muut ehdot
Ensimmäinen irtisanomisajan alkamispäivä 11kk sopimuksen alkamisesta, sopimussakko 2kk. Laaja koti- ja vastuuvakuutus. Ei tupakointia sisätiloissa eikä parvekkeella (taloyhtiössä tupakointikielto). Lemmikkieläimet neuvoteltavissa. Puhtaat luottotiedot.
Lisätiedot
Taloyhtiön piha-alueella ja porrashuoneissa tallentava kameravalvonta 24/7. Vuokraan sisältyvää taloyhtiönettiä ei ole. Vuokrankorotus peruste ; elinkustannusindeksi tai 3% vuosittain vuokranantajan päätöksen mukaisesti, vuokran korotusajankohta 1.7. Laaja koti- ja vastuuvakuutus pidetään voimassa koko vuokrasuhteen ajan. Ei tupakointia, lemmikit neuvoteltavissa. Puhtaat luottotiedot. EI airb'n'b.. Huoneiston kk-vuokraan ei sisälly taloyhtiö nettiliittymää. . ei taloyhtiö nettiliittymää.
Osakeluettelo on siirretty huoneistojärjestelmään
Ei
Tiedustelut
sähköpostitse paivi.halkosalmi@kiinteistomaailma.fi

Hinta

Vuokra/kk
1 097 € / kk
Lisätietoa vakuudesta
2194

Muut maksut

Saunan kustannukset
18,00 EUR/kk
Vesimaksun lisätiedot
vesiennakkomaku 20€/hlö/kk ja vesitasauslasku vesimittarilukeman mukaisesti 2krt vuodessa.
Muut kustannukset
Saunavuoro 18€/kk, saunavuoro varaukset huoltoyhtiöstä..

Talon ja tontin tiedot

Uudiskohde
Ei
Taloyhtiön nimi
Asunto Oy Helsingin Lopinkulma
Rakennuksen tyyppi
Kerrostalo
Rakennusvuosi
1967
Rakennusvuoden lisätiedot
1967
Huoneistojen lukumäärä
84
Liiketilojen pinta-ala
107,5 m²
Liikehuoneistojen lukumäärä
2
Kerroksia
8
Hissi
Kyllä
Taloyhtiössä on sauna
Kyllä
Rakennusmateriaali
Kivi
Kattomateriaali
Huopa
Kattotyyppi
Tasakatto
Energialuokka
E
Kiinteistön antennijärjestelmä
Kaapeli-TV liittymä
Tontin koko
1 729 m²
Liikenneyhteydet
alueella (etäisyys n. 0.3 km)
Lämmitys
Kaukolämpö
Lisätietoja lämmityksestä
Kaukolämpö
Lisätietoja talosta
Siirry talosivulle
Tontin omistus
Oma

Tilat ja materiaalit

Pysäköintitilan kuvaus
autotallipaikkoja: 7, autohallipaikkoja: 22, piha-autopaikkoja: 7, lisätietoa: Vuokranantajan/taloyhtiön autopaikat vuokrataan ensisijaisesti taloyhtiössä asuville ja kaikki autopaikat ovat jonotuksella.
Yhteiset tilat
Sauna, väestönsuoja, ulkoiluvälinevarasto, kuivaushuone, irtainvarasto, pyöräsuoja, hissi (4kpl). Asukastupa.