945 € / kk46 m²

Paciuksenkatu 4, Meilahti, Helsinki2h+kk

Vuokra/kk
945 € / kk
Asuinpinta-ala
46 m²
Huoneita
2
Rakennusvuosi
1989
Rakennuksen tyyppi
Kerrostalo
Kaupunginosa
Meilahti
Kaupunki
Helsinki

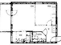
Valoisa ensimmäisen kerroksen kaksio parvekkeella viihtyisästä Meilahdesta. Tässä asunnoissa ikkunoista aukeaa näkymät lähiluontoon, palvelut ovat lähellä ja pohjaratkaisu on toimiva. Olohuoneessa on hyvin tilaan olohuoneen kalusteille, työpisteelle ja ruokaryhmälle. Parvekkeelle voi nauttia ulkoilmasta ja tila riittää pienelle istuinryhmälle.

Vaaleassa keittiösyvennyksessä on hyvin laskutilaa, ikkuna työtason yläpuolella sekä varaus mikrolle. Makuuhuoneeseen mahtuu parisänky seinää vasten tai sänky sekä työpiste ja säilytystilaa on runsaasti arjen tarpeisiin. Vaaleasta kylpyhuoneesta löytyy varaus pyykinpesukoneelle. Rapussa oleva hissi helpottaa arjen pyörittämistä ja asukkaiden käytössä on sauna, pesutupa, kuivaushuone, irtaimistovarasto, ulkoiluvälinevarasto ja askarteluhuone. Tässä kohteessa vesi sisältyy vuokraan.

Merellinen ja kaunis Meilahden alue tarjoaa loistavat ulkoilumahdollisuudet muun muassa läheisiltä Meilahdenpuiston ja Seurasaaren ulkoilualueilta. Lisäksi talon läheltä löytyy myös Meilahden liikuntakeskus monipuolisine palveluineen. Meilahden alueella ravintolat, kaupat ja palvelut ovat kävelymatkan sisällä ja Triplan ostoskeskuksen kattavat palvelut sijaitsevat lyhyen ratikkamatkan päässä. Alueelta on erinomaiset yhteydet ratikalla ja bussilla myös muualle Helsinkiin.

Asunto on vapaarahoitteinen ja vuokrataan vain henkilöasiakkaille. Asunnoissa ei ole vuokravakuutta. Vuokrasopimus on toistaiseksi voimassaoleva. Voit vuokrata asunnon myös lyhytaikaisesti esimerkiksi putkiremontin ajalle.

Asunnon voi saada vaikka sinulla olisi luottotietomerkintöjä. Hoitamaton asumiseen liittyvä velka voi olla este asunnon saamiselle.

Helsingin kaupungin vapaarahoitteiset vuokra-asunnot sijaitsevat ympäri Helsinkiä. Asunnot ovat useimmiten yksittäisiä asuntoja tavallisissa asunto-osakeyhtiöissä (esimerkiksi Hitas-taloissa). Asukasvalinnassa ei ole enimmäistulorajoja tai varallisuusrajoja. Asukasvalinta perustuu hakemusten saapumisjärjestykseen.

Vuokranantaja edellyttää, että vuokralaisella tulee olla koko vuokrasuhteen ajan voimassa oleva kotivakuutus. Lemmikit ovat sallittuja.

Asuntoa voit hakea osoitteesta https://hakemus.etampuuri.fi/kymp-vapaarahoitteinen/. Määritä haettavan asunnon tiedot (esim. huonelukumäärä, sijainti) sivulla "Haettavan asunnon tiedot" ja paina "Hae vapaita kohteita".

--------------------------- Bright ground one-bedroom apartment with a balcony in cozy Meilahti. In this apartment, the windows offer views over local nature, services are close by and the floor plan is functional. The living room has plenty of space for furniture, a workstation and a dining group. You can enjoy fresh air on the balcony and there is enough space for a small seating group.

The light kitchen recess has plenty of counter space, a window above the worktop and space for a microwave. The bedroom can accommodate a double bed against the wall or a bed as well as a workstation and there is plenty of storage space for everyday needs. There is space for a washing machine in the light-colored bathroom. The elevator in the staircase makes everyday life easier, and the residents have access to a sauna, laundry room, drying room, storage room for movable property, outdoor equipment storage and a craft room. In this location, water is included in the rent.

This location offers a great opportunity to enjoy both the pulse of the city and the peace of nature: restaurants, shops and services in the Meilahti area are within walking distance, and the comprehensive services of the Tripla shopping center are located a short tram ride away. Opportunities for recreation through exercise and outdoor activities are excellent, as the Meilahti sports park and centre are located right next to the building, and in addition to numerous green areas, the atmospheric Seurasaari island and its trails are also nearby. The area also has excellent connections by tram and and bus to the rest of Helsinki.

Perustiedot

Kaupunginosa
Meilahti
Asuinpinta-ala
46 m²
Huoneiston kokoonpano
2h+kk
Huoneita
2
Lisätietoa vapautumisesta
heti vapaa
Asunnossa sauna
Ei
Asumistyyppi
Vuokra
Lisätiedot
Tupakointi sallittu: Ei.

Hinta

Vuokra/kk
944,84 € / kk

Talon ja tontin tiedot

Rakennuksen tyyppi
Kerrostalo
Rakennusvuosi
1989
Rakennusvuoden lisätiedot
1989
Hissi
Kyllä
Taloyhtiössä on sauna
Kyllä
Lisätietoja lämmityksestä
Vesikeskuslämmitys
Lisätietoja talosta
Siirry talosivulle

Tilat ja materiaalit

Yhteiset tilat
Pesutupa.