1 006 € / kk49 m²

Korppaanmäentie 36, Pikku Huopalahti, Helsinki2h+kk

Vuokra/kk
1 006 € / kk
Asuinpinta-ala
49 m²
Huoneita
2
Rakennusvuosi
1991
Rakennuksen tyyppi
Kerrostalo
Kaupunginosa
Pikku Huopalahti
Kaupunki
Helsinki

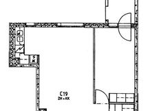
Valoisa ja tilava ensimmäisen kerroksen kaksio maatasoparvekkeella viihtyisästä Pikku Huopalahdesta. Tässä asunnoissa ikkunoista ja parvekkeelta aukeaa näkymät upeaan lähiluontoon ja piha-alueelle. Palvelut ovat lähellä ja pohjaratkaisu on toimiva. Olohuoneessa on hyvin tilaa olohuoneen kalusteille, työpisteelle ja ruokaryhmälle. Parvekkeelle voi nauttia auringosta, kuivata pyykkiä ja tilaa riittää pienelle istuinryhmälle.

Vaaleassa keittiösyvennyksessä on hyvin puupintaista laskutilaa, ikkuna sekä varaus mikrolle. Makuuhuoneeseen mahtuu parisänky seinää vasten ja säilytystilaa on vaatekaapeissa runsaasti arjen tarpeisiin. Kaappitilaa löytyy myös tilavasta eteisestä. Vaaleasta kylpyhuoneesta löytyy varaus pyykinkoneelle. Huoneistossa on astian- ja pyykinpesukoneliitäntä. Vesimaksu on 3,60 €/hlö/kk.

Tämä sijainti tarjoaa loistavan mahdollisuuden nauttia sekä kaupungin sykkeestä että luonnonrauhasta: Pikku-Huopalahden alueella ravintolat, kaupat ja palvelut ovat kävelymatkan sisällä. Triplan ostoskeskuksen kattavat palvelut sijaitsevat lyhyen ratikkamatkan päässä. Samalla puitteet virkistäytymiselle liikunnan ja ulkoilun parissa ovat erinomaiset. Viheralueiden lisäksi myös tunnelmallinen Seurasaari reitteineen ovat myös lähiseudulla. Alueelta on mainiot yhteydet ratikalla ja linja-autolla myös muualle Helsinkiin.

Asunto on vapaarahoitteinen ja vuokrataan vain henkilöasiakkaille. Asunnoissa ei ole vuokravakuutta. Vuokrasopimus on toistaiseksi voimassaoleva. Voit vuokrata asunnon myös lyhytaikaisesti esimerkiksi putkiremontin ajalle.

Asunnon voi saada vaikka sinulla olisi luottotietomerkintöjä. Hoitamaton asumiseen liittyvä velka voi olla este asunnon saamiselle.

Helsingin kaupungin vapaarahoitteiset vuokra-asunnot sijaitsevat ympäri Helsinkiä. Asunnot ovat useimmiten yksittäisiä asuntoja tavallisissa asunto-osakeyhtiöissä (esimerkiksi Hitas-taloissa). Asukasvalinnassa ei ole enimmäistulorajoja tai varallisuusrajoja. Asukasvalinta perustuu hakemusten saapumisjärjestykseen.

Vuokranantaja edellyttää, että vuokralaisella tulee olla koko vuokrasuhteen ajan voimassa oleva kotivakuutus. Lemmikit ovat sallittuja.

Asuntoa voit hakea osoitteesta https://hakemus.etampuuri.fi/kymp-vapaarahoitteinen/. Määritä haettavan asunnon tiedot (esim. huonelukumäärä, sijainti) sivulla "Haettavan asunnon tiedot" ja paina "Hae vapaita kohteita". ---------------------------------------------------------------

Bright and spacious groundfloor one-bedroom apartment with a ground-level balcony in the cozy Pikku Huopalahti. In this apartment, the windows and balcony has views of local nature and yard area. Services are close by and the floor plan is functional. The living room has plenty of space for furniture, a workstation and a dining group. You can enjoy the sun, dry laundry on the balcony and there is enough space for a small seating group.

The light kitchen recess has a wooden-surfaced counter space, a window and a space for a microwave. The bedroom can accommodate a double bed against the wall and there is plenty of storage space in the wardrobes for everyday needs. There is also closet space in the spacious hallway. There is a space for a washing machine in the bathroom. The apartment has a dishwasher and washing machine connection. The water fee is 3.60 €/person/month.

This location offers a great opportunity to enjoy both the pulse of the city and the peace of nature: restaurants, shops and services at the Pikku-Huopalahti area are within walking distance. The comprehensive services of the Tripla shopping centre are located a short tram ride away.

Perustiedot

Kaupunginosa
Pikku Huopalahti
Asuinpinta-ala
49 m²
Huoneiston kokoonpano
2h+kk
Huoneita
2
Lisätietoa vapautumisesta
heti vapaa
Asunnossa sauna
Ei
Asumistyyppi
Vuokra
Lisätiedot
Tupakointi sallittu: Ei.

Hinta

Vuokra/kk
1 006,46 € / kk

Talon ja tontin tiedot

Rakennuksen tyyppi
Kerrostalo
Rakennusvuosi
1991
Rakennusvuoden lisätiedot
1991
Hissi
Ei
Taloyhtiössä on sauna
Ei
Lisätietoja talosta
Siirry talosivulle