980 € / kk67 m²

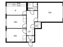
Haarniskatie 14 B, Puotila, Helsinki3h+k+kph+vh

Vuokra/kk
980 € / kk
Asuinpinta-ala
67 m²
Huoneita
3
Kerros
2 / 3
Rakennusvuosi
1961
Rakennuksen tyyppi
Kerrostalo
Kaupunginosa
Puotila
Kaupunki
Helsinki

Lähetä vapaamuotoinen vuokrahakemus sähköpostilla, jossa kerrot itsestäsi ja asunnon tarpeestasi: // Inquiries by e-mail, tell a little about yourself and your need for the apartment: jukka.kivela@asuntomyyjat.com

Viihtyisä koti palveluiden ja metroaseman lähellä! Asunto vapautuu 1.12.2025.

Tämä asunto sijaitsee rauhallisen Haarniskatien päässä, josta ei ole läpiajoa muille kaduille. Lähimmälle ruokakaupalle on matkaa 300 metriä ja kauppakeskus Itiksen ja Eastonin monipuoliset palvelut ovat vain kilometrin päässä. Alueen koulut ja päiväkoditkin ovat kävelymatkan etäisyydellä. Kulkuyhteydet ovat erittäin toimivat. Puotilan metroasemalle kävelee muutamassa minuutissa ja myös omalla autolla on helppo lähteä joka suuntaan pääkaupunkiseutua Itäväylää ja kehäteitä pitkin. Taloyhtiöllä on vuokrattavia autopaikkoja. Kodin lähellä on paljon kaunista luontoa ympärillä. Vartiokylänlahden lenkkipolut ja Puotilan uimaranta on alueen asukkaiden suosikkipaikkoja.

Taloyhtiön rakennukset seisovat omalla tontilla ja isoimmat saneeraukset on jo tehty. Vesikatto on uusittu 2023, julkisivun peruskorjaus 2022 ja perinteinen putkisaneeraus 2018, jonka yhteydessä asunnon kylpyhuone on uusittu. Talon asukkaiden yhteiskäytössä on saunaosasto, pesutupa ja urheiluvälinevarasto.

Tämä koti sopii mainiosti perheille. Erillinen keittiö on tänä päivänä harvinaista herkkua ja se on monen perheen toivelistalla. Tyylikkäässä kylpyhuoneessa on paikka pyykinpesukoneelle ja kääntyvä suihkuseinä pitää tilan siistinä. Tilaviin makuuhuoneisiin sopii parisänky ja työpöytä.

Ei hissiä.

Perustiedot

Sijainti
Haarniskatie 14 B, 00910 Helsinki
Kaupunginosa
Puotila
Kohdenumero
9445750
Kerros
2 / 3
Asuinpinta-ala
67 m²
Tontin pinta-ala
4 400 m²
Kokonaispinta-ala
67 m²
Pinta-alojen lisätiedot
yhtiöjärjestyksen mukainen
Huoneiston kokoonpano
3h+k+kph+vh
Huoneita
3
Kunto
Tyydyttävä
Lisätietoa vapautumisesta
01.12.2025
Keittiön varusteet
Lattiamateriaalit: laminaatti
Seinämateriaalit: maalattu
Työtaso: laminaatti
Varusteet: astianpesukone, mikroaaltouuni
Liesi: keraaminen
Jääkaappi ja pakastin: jääkaappi/pakastin
Kylpyhuoneen varusteet
Varustus: suihkuseinä, pesukone, pesukoneliitäntä, wc-istuin, suihku, peilikaappi.
Tulevat remontit
2024 Pihan kunnostus ja leikkipaikan uusinta. Parvekkeiden korjaukset 2024-2025. Palovaroittimien uusiminen 2027. Lukitusten uusiminen 2028
Tehdyt remontit
TALOYHTIÖSSÄ: 2000 Patteritermostaatit ja lämmityksen perussäätö uusittu 2000 Ulko-ovet uusittu 2001 A-talon autotallien ovet uusittu 2002 Sokkelit ja B-talon autotallien ovet maalattu 2003 Parvekkeet maalattu Kaapeli TV 2005 Putkistojen linjasulut uusittu 2006 Huoneistossa A 2 vuoto ja huoneistossa A 9 lämmitysveden vuoto 2007 Huoneistojen ikkunat ja parvekkeiden ovet uusittu 2009 Lämpimän käyttöveden putkivuoto A-talon kellarikäytävän katossa 2009 D 39 kylpyhuoneessa vuoto 2010 Rakennusten kattojen pinnoite ja kulkusillat uusittu 2010-2011 Porraskäytävien maalausremontti 2011 Lämpimän käyttöveden järjestelmään on asennettu Bauerin elektroninen vedenkäsittelylaite ja käyttövesijärjestelmään on asennettu Bauerin elektroninen yksikkö korroosien estämiseksi. 2013 Huoneiston D 43 viemärissä havaittu vuoto, joka korjattu. Vuoto aiheuttanut vesivahingon myös huoneistoihin D 42, D 38 ja D 39. vuonna 2012. Viemäreiden korjaus tehty sukitusmenetelmällä. 2014 Korjattu huoneiston A 3 kylpyhuoneen kylpyammeen viemärin tulviminen. 2015 Korjattu huoneiston A 3 lämmitysverkon putkivuoto. 2015 Korjattu huoneiston A 12 kylpyhuoneen käyttövesivuoto. 2016 Suoritettu viemäreiden sukituksen takuuaikaisia tarkastuksia. 2016 Lämmönsiirrin uusittu 2017 Korjattu huoneiston A 2 ja A 3 vesivauriot, jotka johtuivat Consti Oy:n viemärien pinnoitusurakan epäonnistumisesta, pinnotteiden irtoamisesta. 2017 Korjattu huoneiston A 9 kylpyhuoneen lattiakaivossa olevan vanhan poistetun kylpyammeen poistoputken huonosta tulppauksesta. 2017 Korjattu huoneiston B 24 kylpyhuoneen seinän kosteusvaurio. 2018 Perinteinen linjasaneeraus ja sen sisältö, toteutus Adison Oy. 2019 Pihan asfaltointi, Star-Asfaltti Oy. 2022 Julkisivun peruskorjaus, Suomen Saneeraustalo Oy. 2023 Vesikaton uusiminen, Peltiässät Oy. 2023 Parvekkeiden kuntotutkimus
Asumistyyppi
Vuokra
Vuokralaistyyppi
Päävuokralainen
Lemmikkieläimet sallittu
Kyllä
Muut ehdot
Tupakointi kielletty. Lemmikkieläimet sallittu. Vuokralainen sitoutuu pitämään kotivakuutuksen voimassa koko vuokrasuhteen ajan. Lemmikkieläimet sallittu tapauskohtaisesti
Tietoliikennepalvelut
laajakaista

Hinta

Vuokra/kk
980 € / kk
Lisätietoa vakuudesta
1-2 kk vuokraa vastaava
Vuokrankorotusperusteet
muu peruste: 0-5 % per vuosi
Vuokra-aika
Toistaiseksi voimassa oleva. Irtisanomisajan ensimmäinen mahdollinen alkamisajankohta 11 kuukauden kohdalla vuokrasopimuksen alkamisesta

Muut maksut

Saunan kustannukset
10,00 e / kk
Vesimaksun lisätiedot
oma mittari

Talon ja tontin tiedot

Uudiskohde
Ei
Taloyhtiön nimi
Asunto Oy Helsingin Kuusimäki
Rakennuksen tyyppi
Kerrostalo
Rakennusvuosi
1961
Huoneistojen lukumäärä
48
Kerroksia
3
Taloyhtiössä on sauna
Kyllä
Rakennusmateriaali
betoni
Kattomateriaali
Pelti
Kattotyyppi
Harjakatto
Energialuokka
F2018
Energiatodistus
Kyllä
Kiinteistön antennijärjestelmä
kaapeli-tv
Tontin koko
4 400 m²
Kiinteistönhoito
huoltoyhtiö
Isännöinti
Granlund Isännöinti Oy, Antti Kavonius, isannointi@granlund.fi, 0925006250
Kaavoitustiedot
Helsingin kaupunki: 09 310 1691tai https://kartta.hel.fi
Lämmitys
Kaukolämpö
Tontin omistus
Oma

Tilat ja materiaalit

Yhteiset tilat
sauna, talopesula, kuivaushuone, urheiluvälinevarasto, väestönsuoja, Huoneistokohtaiset varastot. Taloyhtiössä muuta: Autopaikkoja 16 kpl. Autotalleja 9 kpl, koot 20 - 33 m². Autopaikka 10 euroa/kk. At-vuokra 72 euroa/kk. At-vuokra 108 euroa/kk. Saunamaksu 10 euroa/kk. Ilmainen pesutupa samassa rapussa.
Pintamateriaalit
Lattia: Pesutiloissa: laatta. Olohuoneessa: laminaatti. Makuuhuoneessa: laminaatti. Seinät: Pesutiloissa: kaakeli. Olohuoneessa: maalattu. Makuuhuoneessa: maalattu.