- Vuokra/kk
- 1 323 € / kk
- Asuinpinta-ala
- 52,5 m²
- Huoneita
- 2
- Kerros
- 7 / 7
- Rakennusvuosi
- 1936
- Rakennuksen tyyppi
- Kerrostalo
- Kaupunginosa
- Etu-Töölö
- Kaupunki
- Helsinki
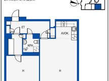
Kodikas ja valoisa seitsemännen kerroksen kaksio keskeisellä sijainnilla!
Tässä asunnossa on toimiva pohjaratkaisu. Keittiössä on astianpesukone, sekä kylpyhuoneessa liitännät pyykinpesukoneelle
Helsingin sydämessä, Etu-Töölössä, sijaitseva taloyhtiö tarjoaa asukkailleen ainutlaatuisen sijainnin kaupungin sykkeessä. Alue on erinomainen valinta niille, jotka arvostavat sijainnin keskeisyyttä, monipuolisia palveluita ja mahdollisuutta ulkoiluun ja virkistäytymiseen. Etu-Töölö tunnetaan rauhallisesta asumisestaan, mutta samalla se tarjoaa helpon pääsyn kaupungin vilinään ja kulttuurielämään. Lähialueelta löytyy lukuisia ravintoloita, kahviloita, kauppoja ja muita palveluita arkea sujuvoittamaan. Kulkeminen sujuu erinomaisten kulkuyhteyksien ansiosta näppärästi, olipa matkustustapa sitten julkinen liikenne, pyöräily tai oma auto.
Taloyhtiö on valmistunut vuonna 1936 ja peruskorjattu viiimeksi vuonna 2011. Taloyhtiöstä löytyy sekä asuinhuoneistoja että liiketiloja. Taloyhtiössä on saunaosasto sekä huoneistokohtaiset irtaimistovarastot kellarikerroksessa. Myös autohallipaikkoja saatavilla, tiedustele varaustilannetta!
Tässä taloyhtiössä on 57 asuinhuoneistoa. Taloyhtiön kaksioissa ja kolmioissa astianpesukone vakiovarusteluna. Asunnoissa keskitetty koneellinen poistoilmanvaihto. Kylpyhuoneissa on pyykinpesukoneliitäntä.
Vuokrasopimuksen ehdot:
- Vuokrasopimus tehdään toistaiseksi voimassa olevaksi, irtisanomisaika 1 kk. - Vakuus 1 kk vuokraa vastaava. - Ei erillistä vesimaksua. - Vuokralainen tekee oman sähkösopimuksen, sekä sitoutuu ottamaan kotivakuutuksen. - Lemmikkieläimet sallittu. - Taloyhtiössä on Telian kaapeliverkko ja 50M laajakaistayhteys sisältyy vuokraan. - Laaja tupakointi kielto kaikkiin uusiin vuokrasopimuksiin: tupakointi kielletty myös parvekkeilla ja taloyhtiön yhteisillä piha-alueilla, muualla kuin merkityllä tupakointipaikalla.
Pidätämme oikeuden muutoksiin.
Kiinnostuitko kohteesta? Jätä asuntohakemus!
Voit lukea lisää vastuullisuudesta Varman asunnoissa: https://www.varma.fi/vuokra-asunnot/ajankohtaista-vuokra-asunnoista/artikkelit/usein-kysyttya-varman-asuntojen-vastuullisuudesta/
Perustiedot
- Sijainti
- Mechelininkatu 18, 00100 Helsinki
- Kaupunginosa
- Etu-Töölö
- Kerros
- 7 / 7
- Asuinpinta-ala
- 52,5 m²
- Huoneiston kokoonpano
- 2H+K
- Huoneita
- 2
- Kunto
- Hyvä
- Lisätietoa vapautumisesta
- heti vapaa
- Asunnossa sauna
- Ei
- Asumistyyppi
- Vuokra
- Lemmikkieläimet sallittu
- Kyllä
- Lisätiedot
- Tupakointi sallittu: Ei.
Hinta
- Vuokra/kk
- 1 323 € / kk
- Lisätietoa vakuudesta
- 1323
Muut maksut
- Rahoitusmuoto
- Vapaa
Talon ja tontin tiedot
- Rakennuksen tyyppi
- Kerrostalo
- Rakennusvuosi
- 1936
- Rakennusvuoden lisätiedot
- 1936
- Kerroksia
- 7
- Hissi
- Kyllä
- Taloyhtiössä on sauna
- Kyllä
- Energialuokka
- F (2018)
- Energiatodistus
- Kyllä
- Kiinteistönhoito
- Kiinteistöhuolto Varonen Oy
- Lisätietoja talosta
- Siirry talosivulle