945 € / kk43 m²

Pyyntitie 1 C, Matinkylä, Espoo2 H + KT

Vuokra/kk
945 € / kk
Vapautuu
Heti vapaa
Asuinpinta-ala
43 m²
Huoneita
2
Kerros
2 / 9
Rakennusvuosi
2018
Rakennuksen tyyppi
Kerrostalo
Kaupunginosa
Matinkylä
Kaupunki
Espoo

KAMPANJAETU!: Ensimmäisen kuukauden vuokra 0€ + autopaikka 6kk ajaksi 0€. Edun saa 30.11.2025 mennessä allekirjoitettuihin uusiin vuokrasopimuksiin. Vuokrasopimuksen vähimmäiskesto 12 kk.

Asunto Oy Espoon Perho valmistui Matinkylään paraatipaikalle joulukuussa 2018.

Tässä yhdeksänkerroksisessa kerrostalossa on yhteensä 66 LähiTapiolan Mutkatonta kotia. Kodit ovat pääasiassa yksiöitä ja kaksioita, mutta yhdeksännestä kerroksesta löytyy myös kaksi isompaa asuntoa suurempien perheiden tarpeisiin. Kaikissa kodeissa on laminaattilattiat, tilavat kylpyhuoneet ja lasitettu tai ranskalainen parveke. Yhtiön yleiset tilat kuten talosauna ja irtaimistovarastot ovat kaikkien asukkaiden käytössä. Taloyhtiön kodit ovat savuttomia.

Taloyhtiö sijaitsee erinomaisella tontilla lähes kauppakeskus Ison Omenan takana. Kauppakeskuksesta löydät lukuisia ravintoloita, elokuvateatterin, lääkärikeskuksen, hypermarketteja ja lukuisia muita palveluita. Myös koulut, päiväkodit, oppilaitokset ja muut arkea helpottavat palvelut sijaitsevat Perhon lähikortteleissa.

Läheisestä Isosta Omenasta löydät metro- ja bussiterminaalin, josta kulkee useita linjoja eri puolille pääkaupunkiseutua. Metromatka Helsingin keskustaan kestää vain vajaa 20 minuuttia. Myös autoilijoille sijainti on keskeinen, koska kehäteitä pitkin pääsee sujuvasti moneen suuntaan. Autoilevan asukkaan on mahdollista myös vuokrata autopaikka yhtiön autohallista.

Tämä taloyhtiö on mukana Green homes -toiminnassa, jossa asukkaille tarjotaan tietoa vastuullisesta asumisesta sekä kiinteistön energiankulutuksesta ja päästöistä. Tiedot raportoidaan vuosittain porrashuoneiden ilmoitustauluilla. Voit lukea lisää Green homes -toiminnasta Mutkatonkoti.fi-sivuston Vastuullisuus-osiosta.

Tervetuloa löytämään kotisi Espoon Perhosta!

Perustiedot

Sijainti
Pyyntitie 1 C, 02230 Espoo
Kaupunginosa
Matinkylä
Kerros
2 / 9
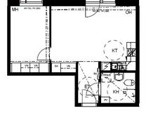
Asuinpinta-ala
43 m²
Kokonaispinta-ala
43 m²
Huoneiston kokoonpano
2 H + KT
Huoneita
2
Kunto
Hyvä
Vapautuu
Heti vapaa
Keittiön varusteet
Jääpakastinkaappi. Astianpesukone.
Parveke
Ei
Kylpyhuoneen varusteet
Peilikaappi. KH: Mukavuuslämmitys asunnon sähköstä. Pesukoneliitäntä.
Säilytystilat
Huoneistokohtainen verkkokellari.
Asunnossa sauna
Ei
Asumistyyppi
Vuokra
Palvelut
Sähköauton latauspiste, vuokrattava.
Muut ehdot
Savuton huoneisto. Lemmikit sallittu
Lisätiedot
Huoneiston omistaa: LÄHITAPIOLA ASUNTOSIJOITUS SUOMI KY
TV-palvelut
Kaapeli-TV
Tietoliikennepalvelut
Internet: 50 MT, sisältyy vuokraan

Hinta

Vuokra/kk
945 € / kk
Lisätietoa vakuudesta
Vakuus 1kk vuokra, sitoutumalla 12kk, 350 €.

Muut maksut

Vesimaksun lisätiedot
25 € / hlö / kk
Muut kustannukset
Vuokralainen tekee sähkösopimuksen energialaitoksen kanssa. Asukkaan vastuulla on ottaa oma kotivakuutus.
Rahoitusmuoto
Vapaarahoitteinen

Talon ja tontin tiedot

Uudiskohde
Ei
Taloyhtiön nimi
AS OY ESPOON PERHO
Rakennuksen tyyppi
Kerrostalo
Rakennusvuosi
2018
Kerroksia
9
Hissi
Kyllä
Taloyhtiössä on sauna
Kyllä
Energialuokka
B2018
Energiatodistus
Kyllä
Kiinteistönhoito
KOTIKATU OY, LÄNSIVÄYLÄ
Isännöinti
RETTA MANAGEMENT
Lämmitys
Kaukolämpö
Lisätietoja lämmityksestä
Kaukolämpö

Tilat ja materiaalit

Yhteiset tilat
Kerhohuone.
Pintamateriaalit
Laminaatti.
Kylpyhuoneen lattia
KH: Lattia laatoitettu.
Kylpyhuoneen seinät
KH: Keraaminen laatta.