931 € / kk62 m²

Kuuttikuja 4, Kaitaa, Espoo2h+kk+s

Vuokra/kk
931 € / kk
Vapautuu
13.01.2026
Asuinpinta-ala
62 m²
Huoneita
2
Kerroksia
1
Rakennusvuosi
1992
Rakennuksen tyyppi
Rivitalo
Kaupunginosa
Kaitaa
Kaupunki
Espoo

Länsiväylän eteläpuolelta eteläisestä Espoosta löytyy Kaitaan merellinen kaupunginosa. Kaitaa on kehittyvä alue, jonka asuntokanta lisääntyy tulevaisuudessa voimakkaasti. Luonnon helmaan kuitenkin pääsee helposti, sillä meri ja Hannusjärven virkistysalue sijaitsevat nurkan takana.

Kaikki tarvittavat palvelut kouluineen, päiväkoteineen ja kauppoineen löytyvät alueelta.

Kaitaalta matkanteko muualle pääkaupunkiseudulle sujuu metrolla.

Taloyhtiön yhteiset tilat ovat: pesula.

Tiesithän, ettemme peri vakuutta vuokrasopimukselle. Lisäksi lemmikit ovat tervetulleita kaikkiin asuntoihimme.

Kiinnostuitko asunnosta? Voit jättää asuntohakemuksen Vuokraa tästä -painikkeesta.

Jos sinulla on olemassa oleva asuntohakemus Espoon Asunnot Oy:lle, tätä kautta jätetty hakemus korvaa aikaisemman hakemuksesi.

Suuren kiinnostuksen vuoksi emme vastaa hakemustiedusteluihin. Otamme valittuun hakijaan yhteyttä ja sovimme mahdollisesta asuntoesittelystä.

Asuntoilmoitus poistuu Oikotieltä vasta, kun asuntoon on solmittu vuokrasopimus.

Tutustuthan asukasvalinnan perusteisiin ennen asuntohakemuksen täyttämistä:https://www.espoonasunnot.fi/hakijalle/asunnon-hakeminen

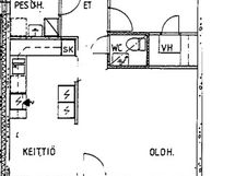
Rivitalon päädyssä sijaitseva asunto 1-tasossa, oma piha ja sauna.

Perustiedot

Sijainti
Kuuttikuja 4, 02260 Espoo
Kaupunginosa
Kaitaa
Kerroksia
1
Asuinpinta-ala
62 m²
Huoneiston kokoonpano
2h+kk+s
Huoneita
2
Vapautuu
13.01.2026
Parveke
Ei
Asunnossa sauna
Kyllä
Asumistyyppi
Vuokra
Lisätiedot
Tupakointi sallittu: Ei.
Tietoliikennepalvelut
50/10

Hinta

Vuokra/kk
930,89 € / kk

Muut maksut

Vesimaksun lisätiedot
Vesi sisältyy vuokraan
Rahoitusmuoto
Arava

Talon ja tontin tiedot

Uudiskohde
Ei
Taloyhtiön nimi
Kuuttikuja 4
Rakennuksen tyyppi
Rivitalo
Rakennusvuosi
1992
Rakennusvuoden lisätiedot
1992
Huoneistojen lukumäärä
40
Hissi
Ei
Taloyhtiössä on sauna
Ei
Energialuokka
D
Energiatodistus
Kyllä
Kiinteistönhoito
Alltime Suomi Oy
Lämmitys
Kaukolämpö
Lisätietoja lämmityksestä
Kaukolämpö
Lisätietoja talosta
Siirry talosivulle

Tilat ja materiaalit

Pysäköintitilan kuvaus
Autopaikkoja kohteessa: 53. Autopaikka: Autopaikka ilman lämmitystolppaa 15€/kk, Autopaikka lämmitystolpalla 20€/kk, Sähköautopaikka ulkona 20€/kk.