349 000 €104,5 m²

Lauritsankatu 17, Koivula, Turku3mh+o+k+askartelutila.+aula+khh+pk+ph+s+2xwc+kph/wc

Myyntihinta
349 000 €
Asuinpinta-ala
104,5 m²
Huoneita
3
Kerroksia
3
Rakennusvuosi
1952
Rakennuksen tyyppi
Paritalo
Kaupunginosa
Koivula
Kaupunki
Turku

Tyylillä remontoitu paritalo Koivulassa juuri valmistumassa

Tyylillä remontoitu paritalo Koivulassa juuri valmistumassa

Tämä upea paritalokaksikko valmistuu nyt marraskuun aikana. Sisätöitä tehdään hyvää vauhtia ja pihatöitä on aloitettu. Molemmat asunnot ovat myynnissä.

Tämä upea paritalo Turun Koivulassa tarjoaa ihanteellisen kodin perheelle, joka arvostaa tilaa, valoa ja rauhallista ympäristöä. Kolmikerroksinen koti on laajasti saneerattu, ja se huokuu modernia tyyliä yhdistettynä 1950-luvun viehätykseen.

Asunnon avarat ja valoisat tilat luovat viihtyisän ilmapiirin. Olohuoneesta avautuvat pariovet johtavat terassille, josta avautuu kaunis näkymä metsäiselle takapihalle – täydellinen paikka rentoutua ja nauttia luonnon rauhasta. Keittiö on varustettu nykyaikaisesti ja sen käytännöllisyys ilahduttaa niin arjen kiireissä kuin viikonlopun kokkailuhetkissä.

Kolme makuuhuonetta tarjoavat runsaasti tilaa perheelle, ja jokaisessa kerroksessa on oma wc, mikä lisää arjen mukavuutta. Yläkerran wc:n yhteydessä on myös suihku, mikä tuo lisää käytännöllisyyttä. Kellarikerroksessa sijaitseva askartelu/harrastetila tarjoaa monipuoliset mahdollisuudet harrastuksiin tai työtilaksi.

Kodin sijainti on erinomainen: rauhallinen asuinalue, joka on kuitenkin lähellä kaupungin palveluita ja hyviä liikenneyhteyksiä. Koivula on arvostettu alue, joka tarjoaa erinomaiset puitteet perhe-elämälle.

Tartu tilaisuuteen ja tee tästä kauniista kodista oma perheesi uusi tukikohta! Varaa pian oma esittelyaikasi ja tule ihastumaan.

___________________________________________

TANJA LAUTKANKARE Asuntomyyjä, KiLAT 040 809 2722 / tanja.lautkankare@ettalkv.fi

Kutsu minut maksuttomalle arviokäynnille sinun kotiisi ja ota askel kohti uusia kotiunelmia.

Etu tämän kohteen ostajalle

Tämän kohteen kauppoihin sisältyy täysin veloitukseton oikeusturvavakuutus, joka tuo mielenrauhaa ja turvaa uuden kodin hankintaan.

Lue lisää

Perustiedot

Sijainti
Lauritsankatu 17, 20740 Turku
Kaupunginosa
Koivula
Kohdenumero
80465720
Kerroksia
3
Asuinpinta-ala
104,5 m²
Tontin pinta-ala
979 m²
Kokonaispinta-ala
104,5 m²
Pinta-alojen lisätiedot
Pinta-alan peruste: Ei tarkistusmitattu. Pinta-alat saattavat tämän ikäisissä kohteissa (rekisteröity ennen 01.01.1992) poiketa olennaisestikin asuinrakennusten nykyisten mittaustapojen ja standardien (SFS 5139) mukaan laskettavasta asuintilojen pinta-alasta. Pinta-ala voi siis olla edellä mainittua pienempi tai suurempi. Asuinhuoneiston pinta-ala on saatu rakennuspiirustuksista.
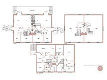
Piirustuksen mukaan yhden asunnon huoneistola on 104,5m2 ja kerrosala 120,1m2 kokonaisala 196,10m2


Koko rakennuksen: kellarin huoneistoala 0m2 kerrosala 0m2 kokonaisala 145,7m2
Koko rakennuksen: 1.krs huoneistoala 128m2 kerrosala 152,6m2 kokonaisala 152,6m2
Koko rakennuksen: ullakko huoneistoala 81m2 kerrosala 87,6m2 kokonaisala 93,9m2
Koko rakennuksen kerrosala sisältäen molemmat asunnot on laajennuksen jälkeen 240,2m2
Ja huoneistoala sisältäen molemmat asunnot on laajennuksen jälkeen 209m2.
Huoneiston kokoonpano
3mh+o+k+askartelutila.+aula+khh+pk+ph+s+2xwc+kph/wc
Huoneita
3
Kunto
Hyvä
Lisätietoa vapautumisesta
Sopimuksen mukaan.
Keittiön varusteet
Keittiön varusteet: Erillisuuni, liesituuletin, astianpesukone, liesi, jääkaappi, erillinen pakastin ja mikroaaltouuni. Liesi: Induktioliesi. Työtason materiaali: Laminaatti.
Terassin kuvaus
Olohuoneesta avautuu pariovien takaa terassi metsäiselle takapihalle.
Kylpyhuoneen varusteet
Pesutilojen varusteet: Suihku. Erillisen WC:n kuvaus: Asunnossa on jokaisessa kerroksessa wc. Yläkerran wc:n yhteydessä on myös suihku, käsienpesuallas ja allaskaappi, peili, Tilat laatoitettu.

Keskikerroksen wc:n lattia laattaa ja seinät maalattu. Käsienpesuallas ja allaskaappi ja peili.

Kellarikerroksen wc:n lattia laattaa ja seinät maalattu. Käsienpesuallas ja allaskaappi ja peili.
Tehdyt remontit
Kohde on laajasti saneerattu. Rakennus on valmistunut vuonna 1952 ja nyt saneerattu. Uusittu katto, julkisivu, LVIS, lämmönlähde, uudet ovet ja ikkunat, terassit, sisältä uusittu kaikki.
Asunnossa sauna
Kyllä
Saunan lisätiedot
Kiuas: Sähkökiuas
Asumistyyppi
Omistus
Vuokrattu
Ei
Kohde on
Kiinteistö
Kiinteistötunnus
853-35-13-1
Postitoimipaikka
Turku

Hinta

Myyntihinta
349 000 €
Kiinnitykset
Kiinnitykset: 444 147,56 €

Muut maksut

Muut kustannukset
Lisätietoja maksuista: Paritalossa on hallinnanjakosopimus joka määrittelee kustannusten jaon. Molemmat puolet maksavat omat kulut. Molemmilla on oma vesi- ja sähkömittari. Oma jätehuolto. Kiinteistön yhteiset kulut maksetaan puoliksi. Asuntojen sähkönkulutusta ei voida arvioida, kun asunnoissa ei ole asuttu saneeraukseen jälkeen.

Talon ja tontin tiedot

Uudiskohde
Ei
Rakennuksen tyyppi
Paritalo
Rakennusvuosi
1952
Rakennuksen käyttöönottovuosi
1952
Kerroksia
3
Rakennusmateriaali
Puu, betoni ja rappaus
Kattomateriaali
Pelti
Kattotyyppi
Harjakatto
Energialuokka
Myyjä hoitaa energiatodistuksen ennen kaupantekoa.
Energiatodistus
Ei lain edellyttämää energiatodistusta
Ilmastointijärjestelmä
Painovoimainen ilmanvaihto
Kiinteistön antennijärjestelmä
Antenni
Tontin koko
979 m²
Kaavoitustiedot
Turun kaupunki https://www.turku.fi/sites/default/files/document/kaavoitusohjelma-2025-2028.pdf
Kaavatilanne
Asemakaava
Lisätietoa rakennusoikeudesta
Kiinteistön rakennusoikeus on kaikki käytetty. Saneerauksen jälkeen vähäinen ylitys joka hyväksytty. Koko kiinteistön osalta 12,2m2 ja asuinrakennuksen osalta 48,2m2.
Lämmitys
Ilmavesilämpöpumppu
Lisätietoja lämmityksestä
Vesi-ilmalämpöpumppu
Tontin omistus
Oma

Tilat ja materiaalit

Muut tilat
Askartelu/harrastetila lattia laattaa ja seinät maalattu.
Keittiön lattia
Vinyyli
Keittiön seinä
Maali
Lisätietoja makuuhuoneen varusteista
Asunnossa on 3 kpl makuuhuoneita. Lattiat vinyyliä ja seinät maalattu.
Kylpyhuoneen lattia
Laatta
Kylpyhuoneen seinät
Kaakeli
Olohuoneen lattia
Vinyyli
Olohuoneen seinät
Maali

Tekniset tiedot

Vesi ja jätevesi
Vesijohto: Kunnallisvesi.
Viemäröinti
Kunnallinen viemäriverkosto.