33 646 €91 m²

Alaniemenkatu 12, Rahola, Tampere4h+k+s

Velaton hinta
33 646 €
Hoitovastike
1 188,73 € / kk
Asuinpinta-ala
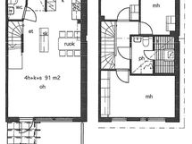
91 m²
Huoneita
4
Kerroksia
2
Rakennusvuosi
2002
Rakennuksen tyyppi
Rivitalo
Kaupunginosa
Rahola
Kaupunki
Tampere

Vapautumassa tammikuussa kaksitasoinen rivitaloasunto suuremmankin perheen tarpeisiin. Makuuhuoneet sijaitsevat omassa rauhassa yläkerrassa. Asumismukavuutta lisäävät wc sekä ylä- että alakerrassa. Asuntoon on tehty kylpyhuoneremontti v. 2016. Asunnon lattiat ovat laminaattia ja yläkerran kylpyhuone on laatoitettu. Tälle asunnolle on varattavissa myöskin yksi autopaikka. Asuntoon uusitaan lattia. Keittiöremontit asuntoihin alkaa loppuvuodesta 2026. Asunnon vastaanotto 16.1.2025.

Vuonna 2002 valmistuneet kaksitasoiset rivitaloasunnot sijaitsevat pientaloalueella Raholassa päättyvän kadun päässä. Lähellä päiväkoti ja alakoulu. Yläkoulu puolentoista kilometrin päässä. Tesoman monipuolisiin palveluihin vain kaksi kilometriä. Tesomalta löytyy mm. uimahalli, kirjasto, apteekki, terveysasema, liikuntakeskus, pankki ja kauppoja. Lielahteen ajaa alle kymmenessä minuutissa ja Tampereen keskustaan vartissa. Huoletonta asumista loistosijainnilla! Huoneistokohtaiset kylmät varastotilat asuntojen edessä ja lämpimät irtaimistovarastokomerot talousrakennuksessa. Piha-alueen leikkivälineet uusittu vuonna 2016. Asuntojen pesutilat remontoitu vuosien 2016 ja 2018 aikana. Seuraavaksi on suunnitteilla keittiöremontit kaikkiin asuntoihin v.2024-2025. Kiinteistö on savuton. Savuttomuus tarkoittaa, että tupakointi on kielletty koko kiinteistössä, sen huoneistoissa, parvekkeilla, piha-alueilla ja yhteisissä tiloissa.

Perustiedot

Sijainti
Alaniemenkatu 12, 33300 Tampere
Kaupunginosa
Rahola
Kerroksien lukumäärä
2
Asuinpinta-ala
91 m²
Kokonaispinta-ala
91 m²
Huoneiston kokoonpano
4h+k+s
Huoneita
4
Vapautuu
30.12.2025
Asunnossa sauna
Kyllä
Asumistyyppi
Asumisoikeus
Lisätiedot
Alkup. asomaksu: 20 554,68 € indeksikorotus: 13 091,37 €
Postitoimipaikka
TAMPERE

Hinta

Velaton hinta
33 646,05 €
Neliöhinta
369,74 € / m²

Vastikkeet

Hoitovastike
1 188,73 € / kk

Muut maksut

Vesimaksun lisätiedot
Vesimaksu 22,00 €/kk/hlö
Muut kustannukset
Vakuus: 2 377,46 €

Talon ja tontin tiedot

Uudiskohde
Ei
Rakennuksen tyyppi
Rivitalo
Rakennusvuosi
2002
Kerroksia
2
Taloyhtiössä on sauna
Ei
Energialuokka
D2007
Lämmitys
Kaukolämpö
Lisätietoja lämmityksestä
Kaukolämpö
Lisätietoja talosta
Siirry talosivulle