144 000 €75 m²

Pajaharjuntie 10 A, Vuorela, Siilinjärvi3h+k+s

Velaton hinta
144 000 €
Hoitovastike
413,01 € / kk
Asuinpinta-ala
75 m²
Huoneita
3
Kerros
1 / 1
Rakennusvuosi
1995
Rakennuksen tyyppi
Rivitalo
Kaupunginosa
Vuorela
Kaupunki
Siilinjärvi

1995 valmistuneesta taloyhtiöstä hyväkuntoinen ja viehättävä yksitasoinen rivitalokoti. Kodista löytyy kaksi hyvänkokoista makuuhuonetta, erillinen WC, kodinhoitotila/-huone, kylpyhuone, sauna, keittiö ja kivan valoisa olohuone, josta on käynti länteen päin avautuvalle piha-alueelle. Olohuoneesta löytyy ilmalämpöpumppu viilennystä tuomaan kesähelteille. Autolle on sähköpistokepaikka, josta ei mene erillistä maksua. Vapautuu sopimuksen mukaan.

Esittelemme tätä kotia yksityisesti, joten varaa oma esittelyaikasi!

Lisätiedot ja esittelyt:

Lassipekka Parviainen lassipekka.parviainen@lkvkiinteistoinssi.fi 044 700 8775

Katja Määttälä katja.maattala@lkvkiinteistoinssi fi 040 541 1452

Perustiedot

Kaupunginosa
Vuorela
Kohdenumero
21099605
Kerros
1 / 1
Asuinpinta-ala
75 m²
Tontin pinta-ala
3 805 m²
Kokonaispinta-ala
75 m²
Pinta-alojen lisätiedot
yhtiöjärjestyksen mukainen, isännöitsijäntodistuksen mukainen
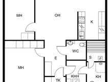
Huoneiston kokoonpano
3h+k+s
Huoneita
3
Kunto
Hyvä
Lisätietoa vapautumisesta
sopimuksen mukaan
Keittiön varusteet
Liesi: keraaminen. Työtasot: laminaatti. Kylmäsäilytys: jääkaappi/pakastin. Varustus: astianpesukone, kiinteät valaisimet, liesituuletin / suodatin.
Kylpyhuoneen varusteet
Erillisen WC:n kuvaus: Lattiat laattaa, seinät maalia. Varustus: lattiakaivo, peilikaappi, bidee-suihku.
Tulevat remontit
Asunto-osakeyhtiön hallituksebn kunnossapitotarvesuunnitelma 2025-2029: - Vesikatteiden pinnoitus /paikkamaalaus (tarpeen vaatiessa myöhemmin) - IV-kanavien nuohous 2029
Tehdyt remontit
TALOYHTIÖSSÄ: 2006 Ulkovarastojen maalaus 2009 Iv kanavien puhdistus ja termostaattiventtiilit, märkätilat 2011 Yläpohjien lisälämmön eristys 2012 Postilaatikot uusittu 2012-2017 Aitojen uusinta 2013 Vesikatteiden uusinta, räystäiden maalaus 2015 Lämmönsiirtimen uusinta, ulkovalaistuksen uusinta ( huoneistot ) 2016 Roskakatoksen kunnostus, ovien edustojen astinpellit/ uusinta 2018 Ulkovarastojen maalaus 2019 IV-kanavien puhdistus 2020 Auton lämmityskoteloiden kellokytkimien uusinta ap 5, 7, 8, 4 2021 Pysäköintialueen selvitys hybridi-/sähköautojen latausta varten (latauskartoitus) 2021 Auton lämmityskoteloiden kellokytkimien uusinta ap 1,4,9 2022 Kolmen lisäpistoketolpan rakentaminen parkkialueelle (tolpat, kaapelointi sekä pihan muokkaustyöt) 2024 Ulko-/terassiovien uusinta sekä lukitusjärjestelmän uusinta
Asunnossa sauna
Kyllä
Saunan lisätiedot
sähkökiuas
Asumistyyppi
Omistus
Kohde on
Osakehuoneisto

Hinta

Velaton hinta
144 000 €
Myyntihinta
144 000 €
Neliöhinta
1 920 € / m²

Vastikkeet

Hoitovastike
413,01 € / kk
Yhtiövastike yhteensä
413,01 € / kk

Muut maksut

Vesimaksun lisätiedot
oma mittari
Muut kustannukset
Muut maksut: Kylmävesi 5,60 €/m3 ja lämminvesi 13,70 €/m3. Lisäautopaikka 4 €/kk.

Talon ja tontin tiedot

Uudiskohde
Ei
Taloyhtiön nimi
Asunto Oy Siilinjärven Riihitonttu
Rakennuksen tyyppi
Rivitalo
Rakennusvuosi
1995
Huoneistojen lukumäärä
9
Kerroksia
1
Rakennusmateriaali
puu, tiili
Kattomateriaali
Peltikate
Kattotyyppi
Harjakatto
Energialuokka
D2018
Energiatodistus
Kyllä
Kiinteistön antennijärjestelmä
kaapeli-tv
Tontin koko
3 805 m²
Kiinteistönhoito
huoltoyhtiö. Kiinteistönhoidon lisätiedot: Lumityöt on ulkoistettu huoltoliikkeelle ja sen lisäksi talkootöilla mm.ruohonleikkuu kesällä.
Isännöinti
Retta Isännöinti Oy, Kuopio Koivisto Janne/ janne.koivisto@retta.fi Asemakatu 38-40 A 3. krs, 70110 KUOPIO
Kaavatilanne
Asemakaava
Lämmitys
Kaukolämpö
Tontin vuokra päättyy
27.10.2044
Maanvuokraaja
Siilinjärven kunta
Tontin omistus
Vuokralla

Tilat ja materiaalit

Pysäköintitilan kuvaus
sähköpistoke
Yhteiset tilat
urheiluvälinevarasto.
Pintamateriaalit
Lattia: Keittiössä: laminaatti. Pesutiloissa: laatta. Erillisessä WC:ssä: laatta. Olohuoneessa: laminaatti. Makuuhuoneessa: laminaatti. Saunassa: laatta. Kodinhoitohuoneessa: laatta. Seinät: Pesutiloissa: kaakeli. Erillisessä WC:ssä: maalattu. Saunassa: puu. Kodinhoitohuoneessa: kaakeli.
Olohuoneen varusteet
Olohuoneesta on käynti länteen päin avautuvalle takapihalle.