125 000 €124,5 m²

Torniontie 130, Turtola, Pelloet, oh, kt, rt, 4 mh, 2 vh, ph, s, wc + teollisuushalli ja ulkovarasto

Myyntihinta
125 000 €
Asuinpinta-ala
124,5 m²
Huoneita
6
Kerroksia
2
Rakennusvuosi
1959
Rakennuksen tyyppi
Omakotitalo
Kaupunginosa
Turtola
Kaupunki
Pello

Omakotitalo Tornionjoenrannassa Turtolassa

Tilava omakotitalokokonaisuus upealla joenrantatontilla Pellon Turtolassa.

Tämä ainutlaatuinen omakotitalokokonaisuus sijaitsee rauhallisessa ja kauniissa ympäristössä Tornionjoen rannalla, ja tarjoaa erinomaiset puitteet niin asumiseen kuin monenlaisiin käyttömahdollisuuksiin. Kiinteistöllä on runsaasti tilaa, ja se sopii erinomaisesti suuremmalle perheelle tai tilaa tarvitsevalle.

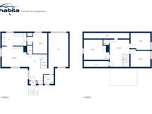
Kaksikerroksinen omakotitalo on tilava ja perinteinen rakennus, jossa on avarat asuintilat. Asuinkerrosten lisäksi talossa on iso kellaritila.

Huoltohalli nosto-ovilla ja sosiaalitiloilla on tilava ja tarjoaa loistavat mahdollisuudet erilaisiin korjaus-ym huoltotöihin. Hallissa on myös sosiaalitilat, jotka lisäävät sen käytettävyyttä ja monipuolisuutta.

Kauniit näkymät Tornionjoelle ja iso tilava tontti antavat tälle kodille paljon lisäarvoa.

Katso kohteen tarkemmat tiedot www.habita.com -sivustolta.

Perustiedot

Sijainti
Torniontie 130, 95645 Pello
Kaupunginosa
Turtola
Kohdenumero
969627
Kerroksia
2
Asuinpinta-ala
124,5 m²
Tontin pinta-ala
6 000 m²
Kokonaispinta-ala
164,5 m²
Pinta-alan lähde
Muu lähde
Huoneiston kokoonpano
et, oh, kt, rt, 4 mh, 2 vh, ph, s, wc + teollisuushalli ja ulkovarasto
Huoneita
6
Kunto
Tyydyttävä
Keittiön varusteet
Keraaminen liesi, Jääkaappipakastin, Liesituuletin, Astianpesukone
Parveke
Ei
Kylpyhuoneen varusteet
Suihku, Kaapisto, Allas, Peili
Säilytystilat
Kaapisto, Vaatehuone, Ulkovarasto
Näkymät
Piha, Maalaismaisema, Luonto, Jokimaisema
Kattoremontti
2015
Tehdyt remontit
2018 Lämmitys - Asennettu maalämmitys, 2015 Katto - Vesikate uusittu, 1987 Muu - Taloon tehty laajennos
Rannan pituus
50,00 m
Rannan omistus
Oma ranta
Asunnossa sauna
Kyllä
Asumistyyppi
Omistus
Kohde on
Kiinteistö
Postitoimipaikka
Turtola

Hinta

Myyntihinta
125 000 €

Muut maksut

Lämmityskustannukset
266.67
Keskimääräinen sähkönkulutus
1700 € / v
Kiinteistövero
549.25 € / v

Talon ja tontin tiedot

Uudiskohde
Ei
Rakennuksen tyyppi
Omakotitalo
Rakennusvuosi
1959
Rakennuksen käyttöönottovuosi
1959
Kerroksia
2
Hissi
Ei
Taloyhtiössä on sauna
Ei
Rakennusmateriaali
Puu
Perustus
Betoni
Kattomateriaali
Pelti
Kattotyyppi
Harjakatto
Energiatodistus
Ei lain edellyttämää energiatodistusta
Kunnallistekniikka
Vesi, Viemäri, Sähkö
Ilmastointijärjestelmä
Painovoimainen
Tontin koko
6 000 m²
Kaavatilanne
Yleiskaava
Maasto
Tasainen
Lämmitys
Maalämpö
Lisätietoja lämmityksestä
Maalämpö, Uuni- tai takkalämmitys, Patteri
Tontin omistus
Oma

Tilat ja materiaalit

Pysäköintitilan kuvaus
Pihapaikka, Autotalli, Autohalli
Pintamateriaalit
Laminaatti, Laatta