27 678 €52 m²

Pikisaarenkuja 3, Linnoitus, Lappeenranta2h+kt+s

Velaton hinta
27 678 €
Hoitovastike
708,04 € / kk
Asuinpinta-ala
52 m²
Huoneita
2
Kerros
2 / 5
Rakennusvuosi
2021
Rakennuksen tyyppi
Kerrostalo
Kaupunginosa
Linnoitus
Kaupunki
Lappeenranta

Tilava saunallinen kaksio odottaa uusia asukkaitaan! Tästä asunnosta löytyy kaikki: oma sauna, lasitettu parveke sekä makuuhuoneen yhteydestä tilava vaatehuone. Keittotila ja olohuone ovat valoisia ja avaraa yhteistä tilaa. Ilmoituksen kuvat ovat vastaavasta asunnosta.

Pikisaarenkuja 3 on vuonna 2021 valmistunut, kahdesta viisikerroksisesta talosta koostuva 47 asunnon asumisoikeuskohde Lappeenrannan historiallisessa Linnoituksessa. Asuntovalikoima ulottuu kompakteista yksiöistä tilaviin neljän huoneen perheasuntoihin.

Kohde sijaitsee noin kolmen kilometrin päässä keskustasta, erinomaisten ulkoilumaastojen ja sataman läheisyydessä. Pikisaaresta on sujuvat kulkuyhteydet kaikkialle Lappeenrantaan niin julkisilla kuin omalla autolla, pyörällä tai kävellen.

Kiinteistö on savuton. Savuttomuus tarkoittaa, että tupakointi on kielletty koko kiinteistössä, sen huoneistoissa, parvekkeilla, piha-alueilla ja yhteisissä tiloissa.

Perustiedot

Kaupunginosa
Linnoitus
Kerros
2 / 5
Asuinpinta-ala
52 m²
Kokonaispinta-ala
52 m²
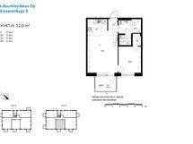
Huoneiston kokoonpano
2h+kt+s
Huoneita
2
Vapautuu
30.04.2026
Parveke
Kyllä
Parvekkeen lisätiedot
Lasitettu parveke
Asunnossa sauna
Kyllä
Asumistyyppi
Asumisoikeus
Lemmikkieläimet sallittu
Kyllä
Lisätiedot
Alkup. asomaksu: 23 337,00 € indeksikorotus: 4 252,14 € muutostyöt: 89,00 €
Postitoimipaikka
LAPPEENRANTA

Hinta

Velaton hinta
27 678,14 €
Neliöhinta
532,27 € / m²

Vastikkeet

Hoitovastike
708,04 € / kk

Muut maksut

Vesimaksun lisätiedot
Vesimaksu 20,50 €/kk/hlö
Muut kustannukset
Vakuus: 1 416,08 €

Talon ja tontin tiedot

Uudiskohde
Ei
Rakennuksen tyyppi
Kerrostalo
Rakennusvuosi
2021
Kerroksia
5
Hissi
Kyllä
Taloyhtiössä on sauna
Ei
Energialuokka
B2018
Lämmitys
Kaukolämpö
Lisätietoja lämmityksestä
Kaukolämpö
Lisätietoja talosta
Siirry talosivulle