384 912 €99 m²

Jokiniityntie 16 A 40, Keskusta, Kirkkonummi3h+kt+s+wc+yläkerta+2x parveke+LOFT!

Velaton hinta
384 912 €
Asuinpinta-ala
99 m²
Huoneita
3
Kerros
6 / 6
Rakennusvuosi
2026
Rakennuksen tyyppi
Kerrostalo
Kaupunginosa
Keskusta
Kaupunki
Kirkkonummi

Tämä asunto on nyt myynnissä!

🏡 Valoa, tilaa ja tyylikkyyttä! Tämä upea kaksikerroksinen Ihana koti Kirkkonummen Kruunun modernissa ja viihtyisässä kerrostaloyhtiössä tarjoaa loistavat puitteet elämälle. Avara ja toimiva pohjaratkaisu, suuret ikkunat ja huikea, lähes viiden metrin huonekorkeus tekevät kodista valoisan ja ilmavan. Vesikiertoinen lattialämmitys luo miellyttävän sisäilman ilman pattereita, joten sisustaminen on entistä helpompaa. Asunto Oy Kirkkonummen Kruunun asunnot valmistuvat lokakuussa 2026.

Nyt pääset vielä vaikuttamaan kodin sisustukseen ja viimeistelyyn yhdessä kanssamme. Tee kodistasi juuri sinun näköisesi!

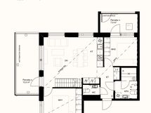
Asunnon erityispiirteet: ✨ Tyylikäs ja käytännöllinen avokeittiö ✨ Tilavat 13 m² ja 7m² parvekkeet – viihtyisät lisätilat vuoden ympäri ✨ Yläkerran korkeus kaksi metriä joka tuo vaihtoehtoja lisähuoneille ✨ Kokonaiskäyttöala 119m² (62,5 m² huoneistoala + yläkerta 36,5m² + parvekkeet yhteensä 20 m²) ✨ Huonejärjestystä muokattavissa tarpeiden mukaan ✨ Suuret lattiasta kattoon ulottuvat ikkunat – nauti luonnonvalosta aamusta iltapäivään ✨ Mahdollisuus valita pintamateriaalit – keittiö, lattiat ja kylpyhuone oman maun mukaan 🔥 Oma lasiseinäinen sauna – täydellisiin rentoutumishetkiin

Kirkkonummen Kruunu– laadukasta asumista erinomaisella sijainnilla Valtikka sijaitsee Jokiniityn alueella, aivan Kirkkonummen keskustan kupeessa, vehreässä puistokorttelissa. Kaikki keskustan palvelut mm. kaupat, ravintolat, urheilupaikat sekä kirjasto löytyvät pienen kävelymatkan päästä. Liikenneyhteydet ovat loistavat – Kirkkonummen juna-asema on kävelymatkan päässä josta pääset 40min Helsingin keskustaan ja lisäksi lähellä olevat bussipysäkit takaavat sujuvan arjen. Taloyhtiön pihalta voit ostaa myös autopaikan.

Kruunuun rakentuu 17 Ihanaa kotia. Ylimmissä kerroksissa on huikeat kaksikerroksiset loft asunnot, joiden huonekorkeus on lähes viisimetriä ja toisen kerroksen huonekorkeus on kaksi metriä. Kysy lisää näistä Ihanista kodeista Miikalta.

Ota yhteyttä ja varaa yksityisnäyttö:

Paavo Mikkonen 📲 +358 40 657 6851 📧 paavo.mikkonen@t2h.fi

Perustiedot

Kaupunginosa
Keskusta
Kohdenumero
60780349
Kerros
6 / 6
Asuinpinta-ala
99 m²
Kokonaispinta-ala
99 m²
Pinta-alojen lisätiedot
62,5 m2 + 36,5m2 yläkerta + parvekkeet 13m2 ja 7m2
Huoneiston kokoonpano
3h+kt+s+wc+yläkerta+2x parveke+LOFT!
Huoneita
3
Kunto
Uusi
Lisätietoa vapautumisesta
Muu ehto. Arvioitu valmistuminen 10/2026
Keittiön varusteet
avokeittiö saarekkeella
Parveke
Kyllä
Asunnossa sauna
Kyllä
Asumistyyppi
Omistus
Palvelut
ruokakauppa, kauppakeskus, päiväkoti, ala-aste, yläaste, lukio, posti, terveysasema, kirjasto. ulkoilureitit lähellä, puisto lähellä, koirapuisto, kuntosali, urheiluhalli, jäähalli, uimahalli, jalkapallokenttä, urheilukenttä, golfkenttä
Kohde on
Osakehuoneisto
Postitoimipaikka
Kirkkonummi
TV-palvelut
Kaapeli-TV
Tietoliikennepalvelut
Taloyhtiölaajakaista, Kiinteä laajakaistasaatavuus, Valokuitu, Sisäverkon kaapelointi

Hinta

Velaton hinta
384 911,90 €
Myyntihinta
239 374,09 €
Neliöhinta
3 888 € / m²
Velkaosuus
145 537,81 €
Valinnaisen vuokratontin lunastusosuus
34 472,80 €
Kohde on yhtiölainoitettu
Taloyhtiölainasta on vastuussa jokainen osakas. Jos lainaa koskevia pääomavastikkeita ei saada joidenkin asuntojen osalta muutoin perittyä, maksuvelvollisuus voi langeta viime kädessä muille osakkaille.

Valinnainen vuokratontti

Vuokratontin lunastusosuus
34 472,80 €
Lisätietoa tontin lunastuksesta

Huoneistokohtainen lunastusoikeus

Kohde sijaitsee valinnaisella vuokratontilla
Osakkaalla on oikeus lunastaa asunto-osakkeisiin kohdistuva tontin osuus taloyhtiölle.

Vastikkeet

Hoitovastike
300 € / kk
Pääomavastike
363,86 € / kk
Yhtiövastike yhteensä
777,61 € / kk

Muut maksut

Vesimaksun lisätiedot
Kulutuksen mukaan, ennakkomaksu. 25 € / hlö / kk
Muut kustannukset
Tontin vuokravastike: 113,75 € / kk. Yhtiölainan lyhennystapa on annuiteetti. Korko on laskettu 12kk Euribor-korolla + 0,8 % marginaalilla (tilanne 20.3.2025 yht. 3,179%). Laina-aika on 28 vuotta rakennusvaiheen päättymisestä. Ensimmäinen asumisvuosi on lyhennysvapaa. Lyhennykset 6kk välein, osakkeenostajilta ryhdytään keräämään vastiketta lainan lyhennystä varten puoli vuotta ennen ensimmäisen lyhennyksen erääntymistä. Yhtiö rakennetaan vuokratontille, johon on huoneistokohtainen lunastusoikeus.

Talon ja tontin tiedot

Uudiskohde
Kyllä
Taloyhtiön nimi
Asunto Oy Kirkkonummen Kruunu
Rakennuksen tyyppi
Kerrostalo
Rakennusvuosi
2026
Rakennuksen käyttöönottovuosi
2026
Kerroksia
6
Hissi
Kyllä
Taloyhtiössä on sauna
Kyllä
Rakennusmateriaali
Pääasiallinen rakennusmateriaali: Betoni
Kattomateriaali
Bitumikate
Kattotyyppi
Taitekatto
Energialuokka
B2018
Ilmastointijärjestelmä
Lämmöntalteenotto, Koneellinen poisto, Koneellinen tulo
Kiinteistönhoito
Huoltoyhtiö
Kaavoitustiedot
Asemakaava. Kirkkonummen kunta
Liikenneyhteydet
bussipysäkki, juna-asema, sujuvat yhteydet omalla autolla
Pihan kuvaus
esteettömät kulkuväylät, kierrätyspiste, lasten leikkipaikka, oleskelualueet
Lämmitys
Kaukolämpö
Lisätietoja lämmityksestä
Lämmitystapa: Kaukolämpö. Lämmönjakotapa: Vesikiertoinen lattialämmitys. Lattialämmitys: vesikiertoinen lattialämmitys
Tontin vuokra päättyy
30.03.2071
Maanvuokraaja
Suomen Osatontti II Ky / Hypo Pankki
Tontin omistus
Valinnainen vuokratontti
Kohde sijaitsee valinnaisella vuokratontilla
Osakkaalla on oikeus lunastaa asunto-osakkeisiin kohdistuva tontin osuus taloyhtiölle.

Tilat ja materiaalit

Pysäköintitilan kuvaus
Ulkoautopaikka sähköpistokkeella, Sähköauton latauspaikka. Yhtiöllä on yhteensä 17 autopaikkaa, joista 7 on lämmitystolpallisia autopaikkoja, 6 sähköauton hidaslatauspaikkoja auton lämmitys-mahdollisuudella ja 4 sähköauton latauspaikkoja. Autopaikoista osa sijaitsee yhtiön tontilla ja osa korttelin LPA tonteilla. Autopaikat myydään erillisinä osakkeina. Korttelin yhteiskäytössä on lisäksi 4 vieraspaikkaa, jotka sijaitsevat AH-tontilla.
Ominaisuudet
Sälekaihtimet.