99 000 €50 m²

Hämeenkatu 13-17 D, Tehdas, Hyvinkää2h, k, kph, vh, lasitettu parveke

Velaton hinta
99 000 €
Hoitovastike
230 € / kk
Asuinpinta-ala
50 m²
Huoneita
2
Kerros
5 / 6
Rakennusvuosi
1970
Rakennuksen tyyppi
Kerrostalo
Kaupunginosa
Tehdas
Kaupunki
Hyvinkää

Viihtyisä, remontoitu ja muuttovalmis kaksio Hyvinkään Tehtaan asuinalueelta.

Hiljattain saneerattu valoisa koti läheltä Hyvinkään keskustan kaikkia palveluita. Keittiöstä löytyy kaikki tarpeellinen ja ikkunan edessä on tilaa pienelle ruokapöydälle. Makuuhuoneeseen mahtuu sängyn lisäksi hyvin yöpöydät tai vaikka työpiste. Kylpyhuone on remontoitu. Lasitettu parveke. Asunnon kaikki pinnat on uusittu ja näistä viimeisimpänä parkettilattian hionta ja lakkaus (2025).

Autopaikkoja varattavissa!

Asunto Oy Hyvinkään Keskusta on oma tonttinen, vakavarainen yhtiö, jossa on 141 asuntoa ja 14 liiketilaa. Yhtiön maksuvalmius on tilikauden 2024 aikana ollut hyvä (lähde: tilikauden 2024 tilinpäätöksen toimintakertomus). Parhaillaan valmistumassa on laaja julkisivu-, piha- ja LVI-saneeraus, joka parantaa kiinteistön kuntoa ja asumisviihtyvyyttä.

Hämeenkadun varrella sijaitseva asuinalue tarjoaa hyvät palvelut ja sujuvat liikenneyhteydet aivan Hyvinkään keskustan kupeessa. Läheltä löytyvät kaupat, ravintolat ja kulttuuripalvelut sekä monipuoliset liikunta- ja ulkoilumahdollisuudet. Alueella yhdistyvät kaupungin kätevyys ja rauhallinen asuinympäristö, mikä tekee siitä viihtyisän paikan arkeen ja vapaa-aikaan.

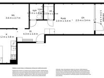
Yhtiöjärjestyksen mukaan 2h+k.

TIEDUSTELUT JA YKSITYISESITTELYVARAUKSET: Roni Haarakangas / 040 021 2645 tai roni.haarakangas@roof.fi

OTATHAN YHTEYTTÄ JA VARAAT OMAN ESITTELYAJAN! I can provide services also in English.

Get a roof. www.roof.f

Perustiedot

Sijainti
Hämeenkatu 13-17 D, 05800 Hyvinkää
Kaupunginosa
Tehdas
Kohdenumero
20304631
Kerros
5 / 6
Asuinpinta-ala
50 m²
Tontin pinta-ala
1,19 ha
Kokonaispinta-ala
50 m²
Pinta-alojen lisätiedot
yhtiöjärjestyksen mukainen, isännöitsijäntodistuksen mukainen Pinta-ala ei ole tarkistusmitattu.

Huoneiston pinta-ala on yhtiöjärjestyksen, isännöitsijäntodistuksen ja myyjän ilmoituksen mukaan 50,00 m2. Pinta-alaa ei ole tarkistusmitattu. Edellä mainittu pinta-ala saattaa tämän ikäisessä kohteessa poiketa olennaisestikin huoneiston nykyisen ja rakentamisaikaisen mittaustapojen ja standardien mukaan laskettavasta pinta-alasta. Huoneiston todellinen pinta-ala voi siis olla yhtiöjärjestyksessä, isännöitsijäntodistuksessa ja esitteessä mainittua pienempi tai suurempi.
Huoneiston kokoonpano
2h, k, kph, vh, lasitettu parveke
Huoneita
2
Kunto
Hyvä
Lisätietoa vapautumisesta
heti
Keittiön varusteet
Keittiöremontti 2023.
VARUSTUS: Jääkaappipakastin, sähköhella, astianpesukone, kaapistot, työtasot.

LATTIA: Parketti.
SEINÄT: Maalattu.
Parveke
Kyllä
Parvekkeen lisätiedot
Tyyppi: lasitettu.
Kylpyhuoneen varusteet
Pesutilojen kuvaus: KPH-Remontti 2023.
VARUSTUS: Suihku, lasinen suihkuseinä, kuivauspatteri, peilikaappi, allas, allaskaappi, pesukoneliitäntä.

LATTIA: Laatta.
SEINÄT: Laatta.
Säilytystilat
Kuvaus: Yhtiön hallinnassa on häkkikomerot, huoneiston numeron mukaan 1 kpl osoitettu asukkaalle.
Tulevat remontit
2024-2025: Kaukolämpölaitteet ja alueverkko (meneillään). Julkisivusaneeraus/vesikattojen uusiminen (meneillään). Piha-alueet /autopaikkojen lisäys (meneillään). 2029-2030: Linjasaneeraus. Hissit: Kunnon tarkkailu/uusiminen viimeistään linjasaneerauksen yhteydessä. Kunnossapitotarveselvityksessä mainitut kustannusarviot ovat alustavia arvioita ja todelliset kustannukset selviävät vasta urakan valmistuttua. Kustannukset voivat olla arvioitua pienemmät tai suuremmat. Lukijan on huomattava, että kunnossapitotarveselvitys on hallituksen näkemys kunnossapitotarpeista viiden vuoden aikana. Päätökset mahdollisesti käynnistettävien kunnossapitotöiden ja muutostöiden suunnittelusta, toteutuksesta sekä rahoituksesta tehdään yhtiökokouksessa erikseen. Kunnossapitotarveselvityksessä mainitut toimenpiteet saattavat aikaistua tai myöhentyä. Myyjä ei vastaa taloyhtiön myöhemmin päättämistä kunnossapito toimenpiteistä ja niistä aiheutuvista huoneistolle tulevista kustannuksista.
Tehdyt remontit
Isännöitsijäntodistuksen mukaan: 12/2023: Osakkeenomistaja Saneerauspalvelu Mäenpää Oy on ilmoittanut teettävänsä seuraavat muutostyöt: Keittiön hanan uusiminen sekä apk asennetaan. Kylpyhuoneen allaskaapin uusimiseen liittyvät allashanan irroitus-, ja takaisin asennus. Kylpyhuoneen peilikaappi uusitaan. Pesukoneelle oma vikavirtasuojattu pistorasia. Palovaroitin asennetaan. TALOYHTIÖSSÄ: 2024-: Julkisivu-, piha-, ja lvis- tekniikan saneeraus (Levyrappaus/parvekekaiteen ulkopuolen verhoilu. Julkisivuikkunoiden uusiminen, porrashuoneiden sisäänkäyntiovien uusiminen, vesikattojen uusiminen, kaukolämpölaitteiden uusiminen, lämmitysverkoston perussäätö, tonttivesijohtojen uusiminen. Sadevesiviemäröintien uusiminen, ilmanvaihtokoneiden uusiminen (as-rakennukset) Liiketilojen näyteikkunoiden uusiminen. Piha-alueen uusiminen, (autopaikat/latauspisteet, varusteet)). 2023: Väestönsuojat: tiiveyskokeet/huollot, varusteiden tarkastus ja täydennys. 2021: H – rappu pieliraot korjattu. F-rapun hissi porrasjakajan köysi uusittu. H-rapun hissikorille menevä kaapelointi uusittu. C-rapun hissin lukkorata uusittu. B-rapun hissin lukkorata uusittu. City Combi 60 putkituhkakupit 3 kpl. 2020: Ovipuhelin F-rappu. Peskukone Asko WMC 747 (C-talo). Parvekelasien huolto. 2019: Hissit Laite 10088370 / 183450101. Hissit Laite 10087466 / 179150101 ja 10087018 / 170580101. 2018: Pohja- ja tonttiviemäreiden painehuuhtelu. 2017: A+B talon ovipuhelinjärjestelmän uusiminen. 1. liikerak: oma sähkömittaus liiketiloille. A-talo pesukone. Lukoston uusiminen ( Sento ). 2016: C,D, E rappujen hissien jarrupyörät sorvattu, jarrukaaret, lautaset ja jouset uusittu. Palovaroittimien uusiminen (ylin krs/vintti). 2015: B+C talo ovipuhelinjärjestelmän uusiminen. 2013: Liikerakennusten vesikatteiden uusiminen. 2012: A-talo Talpet 80/800 mankeli. Ilmanvaihdon nuohous ja säätö (as+lh). 2011: G-rapun hissin korikaapeli uusittu. Yhtiön vesikalusteiden tarkastus ja korjaus. A-talo uima-altaan pumppu uusittu. B- talo pesukone Asko WMC 64 v. 2009-2010: Isomman liikeosan piha-alueen edustan kunnostaminen. Parvekkeiden korjaus ja lasittaminen, julkisivujen osittainen kunnostus. 2009: Kaikki hissit, konehuoneiden valaistusta lisätty. Sähkölaitteistojen määräaikaistarkastus liikeraken. kylmäkoneikko+ 3 kpl höyrystimiä C-talon kylmiö. 2006: Parvekkeiden kuntotutkimus. 2005: Uudet käytävämatot kaikkiin portaisiin. C-talon saunaosaston kunnostus. B-talon saunaosaston kunnostus. 2004: B-talon kylmäkompressorin uusiminen. Yleisten tilojen palovaroittimet. A-talon kylmiön kompressorin uusiminen. 2003: Ent. Sammon liiketilojen poistopuhaltimen uusiminen. B-talon uima-altaan kunnostus. B-talon suodatinlaitteiston uusiminen. Liikerakennuksen sisäkäytävän pinnoitteen uusiminen. A-talon saunaosaston kunnostus. A-talo, uusi lämpöjohtopumppu. 2002-2003: Patteriverkoston perussäätö. Vuosien 1998-2001 tehdyt remontit nähtävillä korjauspäiväkirjasta sekä myyntiesitteeltä, jotka on saatavilla välittäjältä.
Asumistyyppi
Omistus
Palvelut
Palvelut: Kauppakeskus Willan kattavat palvelut n. 220 m. Koulut: Lähialueella kouluja. Päiväkoti: Lähialueella päiväkoteja.
Lisätiedot
Muuta kauppaan kuuluvaa: Sälekaihtimet/rullaverhot, kaapistot.
Kohde on
Osakehuoneisto

Hinta

Velaton hinta
99 000 €
Myyntihinta
73 333,47 €
Lainaosuuden maksu
Kyllä
Neliöhinta
1 980 € / m²
Velkaosuus
25 666,53 €

Vastikkeet

Hoitovastike
230 € / kk
Pääomavastike
222 € / kk
Yhtiövastike yhteensä
452 € / kk
Lisätietoa vastikkeista

Yhtiövastike 452,00 €/kk koostuu:
Hoitovastike 230,00 €/kk (4,60 €/m2/kk).
Pääomavastike 222,00 €/kk (4,44 €/m2/kk).

Pääomavastike kohdistuu myytävää huoneistoa rasittavaan yhtiölainaosuuteen:
Julkisivu, piha ja lvis saneeraus / 25 666,53 € per 31.08.2025

Muut maksut

Vesimaksu
30 € / kk
Vesimaksun lisätiedot
henkilöluvun mukaan
Muut kustannukset
Muut maksut: Autopaikkavuokria ei peritä toistaiseksi urakan takia. Kylmän paikan vuokra 13,00 e/kk, tolpallinen paikka 16,00 €/kk. E-Parking laskuttaa autopaikkamaksun ja sähkön kulutuksen mukaan. Autotallivuokra 100,00 €/kpl. Pesutupamaksut 8,00 €/kk. Saunamaksut 15,00 €/kk.

Talon ja tontin tiedot

Uudiskohde
Ei
Taloyhtiön nimi
Asunto Oy Hyvinkään Keskusta
Rakennuksen tyyppi
Kerrostalo
Rakennusvuosi
1970
Huoneistojen lukumäärä
141
Liiketilojen pinta-ala
1 490,6 m²
Liikehuoneistojen lukumäärä
14
Kerroksia
6
Hissi
Kyllä
Taloyhtiössä on sauna
Kyllä
Rakennusmateriaali
betoni
Kattomateriaali
Huopakate.
Kattotyyppi
Tasakatto.
Energialuokka
D2018
Energiatodistus
Kyllä
Kiinteistön antennijärjestelmä
kaapeli-tv
Tontin koko
1,19 ha
Kiinteistönhoito
huoltoyhtiö. Kiinteistönhoidon lisätiedot: P. Kiinteistöpalvelut Oy
Isännöinti
Hyvinkään Tilikeskus Oy / Sari Lampén Kauppalankatu 2 B 19, 05800 HYVINKÄÄ p. 010 231 0390 asiakaspalvelu@hyvinkaantilikeskus.fi / sari.lampen@hyvinkaantilikeskus.fi
Kaavoitustiedot
Radan itäpuolinen liityntäpysäköinti ja Aseman koulunalue Asemakaavamuutoksen tavoitteena on tutkia mahdollisuutta uuden pysäköintilaitoksen sijoittamiseen Ratakadun kevyen liikenteen väylän ja pääradan väliselle alueelle sekä siihen liittyvien kulkuyhteyksien ja liikenteen järjestämiseen. Aseman koulun osalta tavoitteena on tutkia mahdollisuus uudisrakennuksen sijoittumiseen alueelle sekä voimassa olevan asemakaavan ajantasaistamiseen. Parantolankatu 10-12 Asemakaavamuutoksen tavoitteena on tutkia mahdollisuutta muuttaa keskeisellä ja kaupunkikuvallisesti arvokkaalla paikalla sijaitsevat omakotitontit kerrostalorakentamiseen. Mustamännistö-Ahdenkallio Asemakaavamuutoksen tavoitteina on asemakaavojen ajantasaistaminen ja mahdollistaa alueen täydennysrakentaminen kulttuuriympäristöarvot ja ominaispiirteet huomioiden. Hämeenkatu 24-26 Asemakaavamuutoksen laatiminen 2. kaupunginosan, Parantola, korttelin 109 osaan. Tavoitteena on tutkia mahdollisuus alueen tiivistämiseen sekä rakennusoikeuden ja kerrosluvun nostamiseen. Kauppalankatu 3-5 Kaavatyön tavoitteena on tutkia mahdollisuutta nykyisen rakennuskannan korvaavaan rakentamiseen (pääosin asumista) siten, että rakennusoikeuden lisääminen ja kerrosluvun korottaminen vastaavat ympäristön rakennuskantaa. Hangonsilta III Suunnittelun tarkoituksena on vanhan Hangonratapiha-alueen muuttaminen Keskustaajaman osayleiskaavan mukaisesti keskeisiltä osiltaan keskustanläheiseksi asuntoalueeksi. Lähialueella on käynnissä ja suunnitteilla useampi kaavamuutoshanke. Näistä urakoista voi aiheutua urakoinnin aikana rakennuspöly, -melu sekä liikennehaittaa. Ostajan tulee tutustua lähialueen kaavoitushankkeisiin huolellisesti. Lisätieta kaavoituksesta antaa: Hyvinkään kaupunki PL 86 / Kankurinkatu 4-6 05801 Hyvinkää p. 019 459 11 kirjaamo@hyvinkaa.fi
Kaavatilanne
Asemakaava
Liikenneyhteydet
Linja-autopysäkki n. 75 m. Hyvinkään juna-asema n. 750 m.
Lämmitys
Kaukolämpö
Tontin omistus
Oma

Tilat ja materiaalit

Pysäköintitilan kuvaus
autotalleja: 12. sähköpistokkeita: 64. piha-autopaikkoja: 10.
Yhteiset tilat
Taloyhtiössä muuta: Koneellinen poistoilmanvaihtojärjestelmä. Yhtiön välittömään hallintaan jäävät: A-talon pohjakerroksessa olevat sauna, 2 pesuhuonetta, 2 pukuhuonetta, uima-allasosasto, askarteluhuone, talouskellari, säilytyskomerot, urheiluvälinevarasto, lämpökeskus, talopesula, mankelihuone ja kuivaushuone B-talon pohjakerroksessa olevat sauna, 2 pesuhuonetta, 2 pukuhuonetta, uima-allasosasto, talouskellari, 2 urheiluvälinevarastoa, talopesula, mankelihuone ja kuivaushuone C-talon pohjakerroksessa olevat autotalli CT6 (14,0 m2) ja sauna, 2 pesuhuonetta, 2 pukuhuonetta, uima allasosasto, talouskellari, 3 urheiluvälinevarastoa, talopesula, mankelihuone ja kuivaushuone sekä kussakin talossa olevat väestönsuojat.
Muut tilat
Vaatehuone.
Lisätietoja makuuhuoneen varusteista
LATTIA: Parketti. SEINÄT: Maalattu.
Olohuoneen varusteet
LATTIA: Parketti. (2025). SEINÄT: Maalattu.